Mehrgenerationenhaus mit vier komfortablen Wohnungen
Haus
- Einfamilienhaus,
6710
Nenzing
Beschreibung der Immobilie
+ 5 Kfz Abstellplätze, davon 1 Überdachter
+ Jede Wohnung hat einen eigenen Gartenbereich
+ Nahversorger, Ärzte und Apotheke in der Nähe
+ Schulen und Kindergärten in der Nähe
+ Skigebiete und Naturpark "Nenzinger Himmel" in 30 Autominuten erreichbar
+ Geographische Nähe zur Schweiz, Liechtenstein und Deutschland
37 - 172 m² Wohnungen und Gartenanteil
Dieses Mehrgenerationenhaus bietet vier unterschiedlich große Wohnungen auf drei Ebenen mit durchdachter Raumaufteilung und hochwertiger Ausstattung. Alle Wohnungen verfügen über eigens zugewiesene Gartenflächen und ausreichend Parkmöglichkeiten.
Aufteilung der Wohnungen
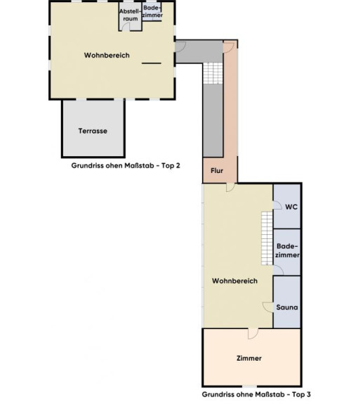
Top 1: ca. 93 m², Einheitenübersicht auf zwei Ebenen. Zusätzlich Terrasse mit Zugang zum Gartenanteil.
Top 2: ca. 172 m², erstreckt sich über drei Stockwerke. Inklusive großer Veranda, perfektioniert für gedeihliche Familienzeiten oder Home-Office-Bereiche. Eigenes Gartenareal.
Top 3: ca. 110 m², verteilt auf zwei Etagen. Eigenes Gartenstück und unmittelbarer Terrassen-/Loggiazugang.
Top 4: ca. 37 m², kompakte, gut nutzbare Einheit mit eigenem Gartenanteil.
Besondere Merkmale
Dachböden sind ausgebaut und in die Wohnfläche integriert, dadurch großzügige Höhen und zusätzliche Nutzungsmöglichkeiten (als Wohn- oder Arbeitsbereich nutzbar).Jedes Top hat einen zugewiesenen Parkplatz sowie ein eigenes Kellerabteil.
Gemeinschaftsbereiche: eine zentrale Waschküche steht allen Mietern zur Verfügung.
Grünflächen: Jede Wohnung besitzt einen eigenen Gartenanteil, ideale Privatsphäre und Erholung im Freien.
- 3,5% Grunderwerbsteuer
- 1,1% Grundbuchseintragung
- 3,0% Vermittlungsprovision zzgl. 20% MwSt.
- Vertragserrichtungskosten
- Beglaubigungskosten + Barauslagen
Die vielseitige und abwechslungsreiche Ferien- und Freizeitregion Nenzing ist im Sommer wie Winter ein beliebtes Ziel für Aktiv- und Erholungsurlauber. Weit über die Grenzen bekannt, der Naturpark "Nenzinger Himmel" mit seiner atemberaubenden Alpenflora und einer Vielzahl von Wandermöglichkeiten unter anderem ins benachbarte Liechtenstein und Schweiz. Alpinfans erreichen in nur 30 Minuten die Skigebiete Laterns oder Gurtis-Bazora.Im Umkreis von 1 km sind Nahversorger, Bildungseinrichtungen sowie Restaurants erreichbar.
| Angaben gemäß gesetzlichem Erfordernis: | |||
| Heizwärmebedarf: | 79.0 kWh/(m²a) | ||
| Klasse Heizwärmebedarf: | C | ||
| Faktor Gesamtenergieeffizienz: | 1.16 | ||
| Klasse Faktor Gesamtenergieeffizienz: | C | ||
Eckdaten
| Objektnr: | 2552_6113 |
| Art: | Haus - Einfamilienhaus |
| Land: | Österreich |
| Baujahr: | 1922 |
| Kaufpreis: | auf Anfrage |
| Provision: | 3.00 % |
| Wohnfläche: | 381,35 m² |
| Grundstücksfl.: | 702,00 m² |
| Stellplätze: | 5 |
| Keller: | 18,00 m² |
| Heizwärmebedarf: | C 79,00 kWh/m²a |
| fGEE: | C 1,16 |
Ausstattung
Parkplatz
Internet und TV
Information zur Internet und TV Versorgung hier
Ihre persönliche Beratung
Alfred Geisinger
RE/MAX Immowest
E a.geisinger@remax-immowest.at
T +43/5574/53434