PROVISIONSFREI!!! Große Wohneinheit in einem historischen Gebäude!

Wohnung - Etage, 8970 Schladming

Beschreibung der Immobilie

Großzügig geschnittene Wohnung in Massivbauweise im Westen der Skistadt Schladming - Unmittelbare Nähe zur Planai und den Reiteralm Bergbahnen!

Willkommen in einem kleinen Gewerbegebiet in Schladming, wo diese großzügige, renovierungsbedürftige Wohneinheit darauf wartet, zu neuem Leben erweckt zu werden.

Diese Liegenschaft bietet eine ideale Lage und Anbindung und äußerst gute Vermietungsmöglichkeit!

Seit 2019 wurde die Wohneinheit an ein Vorzeigeunternehmen in unserer Region vermietet und entsprechend als Mitarbeiterunterkunft genutzt!
Weitere Nutzungsmöglichkeiten sind die touristische Vermietung oder aber auch gerne Hauptwohnsitz.

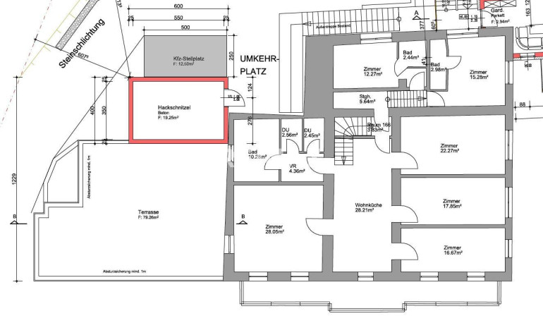
Die gesamte Wohneinheit erstreckt sich über grundsätzlich zwei Ebenen, bestehend aus kleiner Küche, Keller/Lagerraum, die Wohnung Top 4 im Obergeschoss und zwei weiteren Zimmer mit Bad im Halbstock und bietet insgesamt eine Wohn-/ und Nutzfläche von ca. 202m².
Zusätzlich besteht die Möglichkeit, eine ca. 80 m² große Westterrasse zu errichten. Die Einreichung hierfür samt positivem Baubescheid gibt es bereits.

Bei diesem Angebot entfallen die Maklerkosten, womit die PROVISIONSFREIHEIT gegeben ist.


Raumaufteilung:

Erdgeschoss/Halbstock:

- WC
- WC + Pissoir
- Küche
- beheizter Keller/Lagerraum

1.Obergeschoss / Wohnung Top 4:

- Vorraum
- Wohnraum ca. 28,21m²
- Zimmer 1 ca. 22,27m²
- Zimmer 2 ca. 17,85m²
- Zimmer 3 ca. 16,67m²
- Zimmer 4 ca. 28,05m²
- Vorraum 2
- Dusche
- Dusche
- Badezimmer/WC

+ Balkon südseitig
+ Option zur Errichtung Westterrasse (ca. 80m²)

1.Obergeschoss / Halbstock:

- Zimmer 5 + Bad ca. 18,26m²
- Zimmer 6 + Bad ca. 14,71m²



Nur wenige Autominuten trennen Sie vom Stadtzentrum Schladming, der Planai und der Reiteralm.

Dieses Objekt bietet ein enormes Potenzial für individuelle Gestaltung und Entwicklung.

Bushaltestelle Postbus bzw. City Bus in Fußnähe und auch der "Enns-Radweg" geht vor dem Haus vorbei.

Insgesamt und der Wohneinheit vertraglich zugehörig gibt es 6 KFZ-Abstellplätze im Freien, welche in weiterer Folge aber noch final hergestellt werden müssen.

Die berühmte Bergstadt Schladming - Austragungsort der Schi-WM 2013 - ist eine Wintersportmetropole mit Weltruf und im Feriendorf Rohrmoos heißt die Devise "vom Bett aufs Brett", denn hier befinden sich die zentralen Skiberge Planai und Hochwurzen direkt vor der Haustüre, ein riesiges Wintersport Eldorado erwartet Sie.
Abseits der Piste gibt es ein wunderschönes Langlauf Loipennetz, eine Rodelbahn, die Tag und Nacht in Betrieb ist, ein Erlebnisschwimmbad, Winterwanderwege, einen Eislaufplatz, die Indoor Sportangebote, Museen, Pferdeschlittenfahrten, Fackelwanderungen und vieles mehr. Im Sommer findet man ein riesiges Wanderwegenetz mit traumhaften Wasserlandschaften, Mountainbike Routen, Radwege, Klettern, Erlebnisbad, Golf und Minigolf, Rafting, Kulturangebote, Aktionsportarten etc. vor.

Für weitere Fragen bzw. Terminvereinbarungen rufen Sie bitte einfach an oder schreiben uns eine E-Mail.

PS: BITTE BEACHTEN SIE, DASS WIR AUFGRUND DER NACHWEISPFLICHT GEGENÜBER DEM EIGENTÜMER NUR ANFRAGEN UNTER ANGABE DER VOLLSTÄNDIGEN ANSCHRIFT SAMT TELEFONNUMMER BEARBEITEN KÖNNEN, DIESEN ANFORDERUNGEN NICHT GERECHT WERDENDE ANFRAGEN MÜSSEN LEIDER UNBEANTWORTET BLEIBEN!
Angaben gemäß gesetzlichem Erfordernis:
Heizwärmebedarf:97.0 kWh/(m²a)
Klasse Heizwärmebedarf:D
Faktor Gesamtenergieeffizienz:1.54
Klasse Faktor Gesamtenergieeffizienz:C

Eckdaten

Objektnr: 2445_2981
Art: Wohnung - Etage
Land: Österreich
Baujahr: ca. 1600
Zustand: Gepflegt
Kaufpreis: 679.000,00
Wohnfläche: 184,00 m²
Zimmer: 7
Bäder: 4
WC: 5
Balkone: 1
Terrassen: 1
Stellplätze: 6
Keller: 19,00 m²
Heizwärmebedarf:  D  97,00 kWh/m²a
fGEE:  C  1,54
Immobilie merken Exposé

Ausstattung

Zentralheizung, Parkplatz


Internet und TV

Information zur Internet und TV Versorgung hier


Immobilie anfragen


Ihre persönliche Beratung

RE/MAX Nature 1 in Liezen

Monika Perali

RE/MAX Nature 1 in Liezen

E m.perali@remax-nature.at

T +43361230262

H +43 3612 / 30 262-31

F +43 3612 / 30 291