NEUBAU-Residenzen für ZWEITWOHNSITZ oder TOURISTISCHE VERMIETUNG im Ortszentrum von Bad Aussee - von 45 bis 170m² mit Terrassen

Wohnung - Etage, 8990 Bad Aussee

Beschreibung der Immobilie

Über RE/MAX Nature in Bad Aussee angeboten werden Neubau-Residenzen mit Größen von 45 bis 170m² im Ortszentrum, mit Terrassen, Balkonen und Garagen,
diese „Ausseer Residenzen“, sind nicht nur eine Investition in eine Top-Immobilie, sondern garantieren auch ein besonderes Lebensgefühl.
Wir sind stolz darauf, Ihnen unsere Immobilien in dieser traumhaften Region präsentieren zu dürfen und laden Sie herzlich ein, Ihre Träume von einem Leben im Salzkammergut wahr werden zu lassen.

In der Ischlerstraße - in einem historisch bedeutsamen wie auch geschichtsträchtigem Gebäude - entstehen insgesamt 34 Wohnungen (höchste Widmungsklasse), geeignet zur Begründung eines Zweitwohnsitzes wie auch zur touristischen Vermietung, dazu 2 Geschäftslokale.
Nur mit Worten der Superlative kann man dieses beeindruckende Projekt im Herzen von Bad Aussee beschreiben!

Die Ausführung der Wohnungen und Geschäfte erfolgt auf höchstem bautechnischem und architektonischem Niveau, und sie sind vor allem barrierefrei gestaltet.
Natürlich wird der weit über die Grenzen des Ausseerlandes geschätzte Baustil, in einer traditionellen und charmanten Architektur, umgesetzt.
Regionale Materialien, eine abgestimmte Farbgebung und ein durchdachtes Design schaffen ein Zuhause, das sowohl modern als auch tief in der Tradition verwurzelt ist. Dabei bleibt der ursprüngliche Charakter des Bürgerhauses erhalten, während die neu entstehenden Wohnräume höchsten Ansprüchen an Komfort und Qualität gerecht werden.
Das Gebäude umfasst 4 Stockwerke, mit Lift und Garagen, sowie Carportplätze.

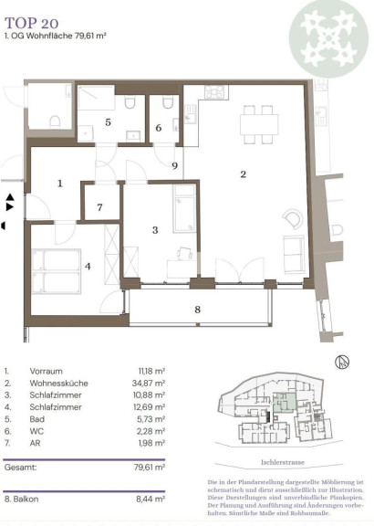
DIE HIER ZUM ANGEGEBENEN KAUFPREIS ANGEBOTENE EINHEIT NIMMT BEZUG AUF EINE WOHNUNGSGRÖSSE VON 45m² WOHNFLÄCHE!
Alternative Größen und die speziellen Varianten sowie die dazugehörigen Kaufpreise erhalten Sie auf Anfrage.

Lage des Projekts:
Zentral, im innersten Zentrum von Bad Aussee
Sehr gute, umliegende Infrastruktur (Geschäfte, Ämter, Kulinarik, Ärzte, etc.)
Öffentliche Anbindung (mit Bahn und Bus erreichbar)
Fußläufiges Erreichen verschiedener Geschäfte, Restaurants und der Annehmlichkeiten des Bad Ausseer Zentrums
Wenigen Auto-Minuten entfernt von idyllischen Bergen und Seen der Region

Garagen oder Carport-Plätze gegen Aufpreis verfügbar.
Verkauf über das österreichische Bauträgervertragsgesetz, also mit maximaler Sicherheit für Käufer!
Bruttopreise. Für Investoren ohne Ust. möglich.

Alle Detaildaten, Pläne, Energieausweis und Fotos finden sie unter www.remax.at/2445-3004
Gerne geben wir ihnen eine weiterführende, genaue Auskunft über dieses Projekt, bzw. vereinbaren wir eine gemeinsame Besichtigung der Örtlichkeit, bitte kontaktieren Sie uns dazu per E-Mail oder telefonisch.

Hinweis:
Bitte beachten Sie, dass wir aus Datenschutzgründen und der Nachweispflicht dem Eigentümer gegenüber nur Anfragen mit vollständiger Angabe von Namen, Adresse und Telefonnummer beantworten dürfen.
Änderungen und Irrtümer vorbehalten.
Alexander Reiter
Akad. Immobilienmakler

0664 3376252

Eckdaten

Objektnr: 2445_3004
Art: Wohnung - Etage
Land: Österreich
Baujahr: ca. 2026
Zustand: Erstbezug
Kaufpreis: 260.000,00
Provision: 3.00 %
Wohnfläche: 45,00 m²
Zimmer: 5
Bäder: 2
WC: 2
Balkone: 1
Terrassen: 1
Stellplätze: 2
Immobilie merken Exposé

Ausstattung

Zentralheizung, Personenaufzug, Parkplatz, Garage


Internet und TV

Information zur Internet und TV Versorgung hier


Immobilie anfragen


Ihre persönliche Beratung

RE/MAX Nature 1 in Liezen

Alexander Reiter

RE/MAX Nature 1 in Liezen

E a.reiter@remax-nature.at

T +4336123026222

F +43 3612 / 30 291