VERKAUFT!!! Perfekt aufgeteilte kleine Penthouse Wohnung
Wohnung
- Etage,
8967
Haus
Beschreibung der Immobilie
Dieses ideal aufgeteilte 3-Zimmer Appartement mit einer Wohnfläche von ca. 64m² liegt in einer im Jahr 2018 fertiggestellten Anlage an einem der besten und schönsten Plätze in der Alpenregion.
Bei der Architektur wurde ein spezielles Augenmerk auf die Kombination von alpenländischem Baustil und möglichst offenen, hellen Räumlichkeiten gelegt.
Nur wenige Minuten sind es bis zur Hauser Kaibling Talstation und nach Schladming zur Planai!
Lassen Sie Ihr Auto stehen, der Schibus geht direkt am Haus vorbei!
Zudem sind es nur wenige Schritte ins Freibad der Marktgemeinde Haus und auch der Golfclub Schladming-Dachstein ist in 2-3 Autominuten erreichbar!
Der Grundriss der hier angebotenen Wohnung ist sehr durchdacht, schön gelöst mit 2 Schlafzimmer und jeweils ein Badezimmer en suite!
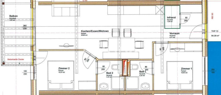
Raumaufteilung Appartement Top 13:
Vorraum/Garderobe, gemütlicher Koch / Wohn / Essbereich mit Ausgang auf den ca. 8m² großen Westbalkon, 2 Schlafzimmer ( Ein Schlafzimmer mit Ausgang auf den Balkon), 2 Bäder die an die Schlafzimmer angrenzen und als zusätzliches Highlight, eine eigene, qualitativ hochwertige Sauna im Appartement!
Alle Wohnräume sind mit edlen Parkettböden ausgestattet. Die Beheizung der Räume erfolgt mit einer energiesparenden Fußbodenheizung.
Der Wohnung zugehörig ist noch ein Aussenstellplatz und ein Kellerabteil!
Touristische Vermietung ist zulässig, eine Agentur würde den "FULL SERVICE" für den neuen Eigentümer mit Sicherheit gerne weiterführen!
Der Kaufpreis ist Netto - exkl. Mwst.! (Die Möglichkeit eines "Bruttokaufes" mit 460.000,- ist ebenso gegeben)
Wenn Sie Fragen haben oder eine Besichtigung wünschen rufen Sie uns gerne jederzeit an oder schreiben eine E-Mail!
Die steirische Marktgemeinde Haus im Ennstal liegt inmitten der bekanntesten Schiberge. Die 4-Berge-Schischaukel Haus-Planai-Hochwurzen-Reiteralm verbindet alle 4 Skigebiete miteinander, einzigartig nicht nur in Ski amadé sondern in ganz Österreich: 125 feine Pistenkilometer, 45 moderne Seilbahn- und Liftanlagen, leistungsfähige Beschneiungsanlagen, kulinarische Schmankerl auf 53 Skihütten, Angebote für Kids und Familien, Sportliche und Genießer - also Skivergnügen und Winterspaß pur. Zur Bestätigung der gegebenen Qualität wurde in den letzten Jahren die 4-Berge-Skischaukel von mehreren renommierten Medien zu den besten Skigebieten Österreichs bzw. Europas gewählt und Haus bildet den idealen Einstieg in die Skiregion
PS: BITTE BEACHTEN SIE, DASS WIR AUFGRUND DER NACHWEISPFLICHT GEGENÜBER DEM EIGENTÜMER NUR ANFRAGEN UNTER ANGABE DER VOLLSTÄNDIGEN ANSCHRIFT SAMT TELEFONNUMMER BEARBEITEN KÖNNEN, DIESEN ANFORDERUNGEN NICHT GERECHT WERDENDE ANFRAGEN MÜSSEN LEIDER UNBEANTWORTET BLEIBEN!
| Angaben gemäß gesetzlichem Erfordernis: | |||
| Heizwärmebedarf: | 32.0 kWh/(m²a) | ||
| Klasse Heizwärmebedarf: | B | ||
| Faktor Gesamtenergieeffizienz: | 0.63 | ||
| Klasse Faktor Gesamtenergieeffizienz: | A+ | ||
Eckdaten
| Objektnr: | 2445_3017 |
| Art: | Wohnung - Etage |
| Land: | Österreich |
| Baujahr: | ca. 2018 |
| Zustand: | Erstbezug |
| Möbliert: | Voll |
| Kaufpreis: | 420.000,00 € |
| Provision: | 3.00 % |
| Wohnfläche: | 64,09 m² |
| Zimmer: | 3 |
| Bäder: | 2 |
| WC: | 2 |
| Balkone: | 1 |
| Stellplätze: | 1 |
| Keller: | 3,00 m² |
| Heizwärmebedarf: | B 32,00 kWh/m²a |
| fGEE: | A+ 0,63 |
Ausstattung
Zentralheizung, Personenaufzug, Garage
Internet und TV
Information zur Internet und TV Versorgung hier
Ihre persönliche Beratung
Monika Perali
RE/MAX Nature 1 in Liezen
E m.perali@remax-nature.at
T +43361230262
H +43 3612 / 30 262-31
F +43 3612 / 30 291