Raumwunder-großes Einfamilienhaus mit Nebengebäuden, Garten und Wald
Haus
- Einfamilienhaus,
7203
Wiesen
Beschreibung der Immobilie
Der Grund und Boden
im Zentrum von Wiesen, ca. 2.863 m², davon ca. 1.120 m² Bauland, ca. 425 m² Garten, 458 m² Grünland, 860 m² Wald
Das Haus
1957 erbaut, 1974 erweitert, ca. 180 m² Wohnfläche auf zwei Etagen, 9 Zimmer, 2 Bäder, ca. 55 m² erhöhter Teilkeller mit WC, Waschbecken, Sauna und Tauchbecken (nie genutzt), ca. 40 m² überdachte Dachterrasse mit Weitblick, ca. 40 m² ausgebauter Dachboden
Erdgeschoss:
Küche 19,1 m²
Diele 12 m²
Wohnzimmer 29,2 m²
Schlafzimmer 16,5 m²
Durchgangszimmer 14,7 m²
Bad 2,9 m²
Speis 1,9 m²
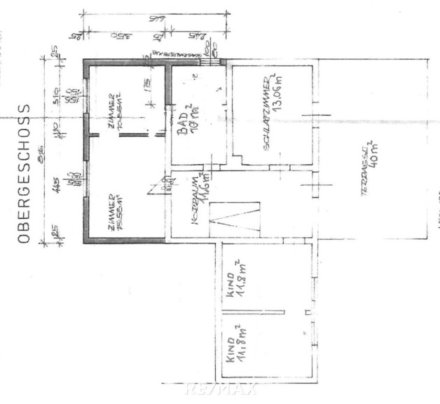
Obergeschoss:
Vorraum 11,6 m²
Bad 10 m²
Schlafzimmer 15,6 m²
Schrankzimmer 10,9 m²
Schlafzimmer 13,1 m²
Kinderzimmer 11,8 m²
Kinderzimmer 11,8 m²
Dachterrasse ca. 40 m²
Der Zustand
Heizung: Großer Kachelofen & Elektroradiatoren, Fenster & Außentüren: Kunststoff, ca. 25 Jahre alt, Altersentsprechender und funktionierender Zustand von Elektro und Sanitäreinrichtung, bewohnbar, jedoch sanierungsbedürftig
Die Nebengebäude
– Ca. 240 m² massiv gemauerte Nutzfläche
– Sehr guter Zustand
– Ausbaubarer Dachstuhl von 240 m²
– Ideal für Hobby, Atelier, Oldtimer oder Gewerbe
Der Garten & das Gelände
– auf klassischem burgenländischen Streckhof
– Zugang über Küche oder durch Garage/Nebengebäude durch große Tordurchfahrt
– Leichte Hanglage mit Panoramablick, große Linde mit natürlicher Verschattung und Kühlung
– Direkt angrenzender Wald mit Brennholznutzung
Die zukünftige Nutzung / Eignung
– Großfamilie, Mehrgenerationenhaus, Wohnprojekt
– Gewerbliche, landwirtschaftliche Nutzung oder Atelier/Kunstprojekt
– Investition für mehrere Wohneinheiten möglich
Die Infrastruktur und Entfernungen
1. Rathausplatz (Gemeindeamt) – ~200 m
2. Pest-/Dreifaltigkeitssäule – ~250 m
3. Pfarrkirche Hl. Geist – ~300 m
4. Volksschule & Kindergarten – ~400 m
5. Alte Pfarrkirche hl. Barbara – ~600 m
6. Festivalgelände Wiesen – ~700 m
7. Rosaliaradweg & Wanderwege – ab ~500 m
8. Aussichtsturm – ~3 km Fuß- oder Radweg
Der Ort
Die Vorzeigegemeinde Wiesen im Nordburgenland gilt als echtes Beispiel für Lebensqualität in ländlicher Umgebung. Eingebettet in sanfte Hügel, bietet der Ort eine Kombination aus intakter Natur, obstbaulich geprägter Kulturlandschaft und modernem Gemeindeleben. Besonders bekannt ist Wiesen für seinen Erdbeeranbau, der dem Ort ein charmantes, saisonales Flair verleiht. Das hier zu erwerbende Objekt war der traditionsreiche und in der Region bekannte Obsthof Kremser, sie erwerben also ein geschichtsträchtiges Anwesen.
Wiesen kann zudem auf eine reiche Festivalvergangenheit zurückblicken und machten die Gemeinde zu einem kulturellen Hotspot im Burgenland. Heute punktet der Ort mit einem aktiven Vereinsleben, kulturellen Veranstaltungen und touristischen Angeboten, die von sanftem Wandertourismus bis zu regionaler Kulinarik reichen.
Die Gemeinde ist schuldenfrei, hervorragend verwaltet und bietet eine hohe Lebensqualität mit einer starken Gemeinschaft, guter Infrastruktur und einem gepflegten Ortsbild. Wer naturnah, ruhig und dennoch mit Anschluss an das kulturelle Leben wohnen möchte, findet in Wiesen einen idealen Lebensmittelpunkt.
Nutzen Sie die Onilneterminbuchung für den 25.07.2025 oder vereinbaren Sie noch heute einen Besichtigungstermin ab dem 28.07.2025 und überzeugen Sie sich selbst von den Vorzügen dieses außergewöhnlichen Angebots! Ich freue mich darauf, Ihnen Ihr neues Zuhause persönlich vorzustellen.
Quellen:
Die Angaben zum Objekt basieren auf uns zur Verfügung gestellten Informationen und sind ohne Gewähr. Eine Haftung unsererseits ist hierfür ausgeschlossen. Detailfragen werden im Zuge von Besichtigungen besprochen, geklärt oder nachgereicht.
Kontaktdaten:
Wir bitten um Verständnis, dass wir aufgrund der Nachweispflicht gegenüber dem Eigentümer, nur Anfragen mit vollständigen Kontaktdaten (Name, Anschrift, Tel.-Nr., E-Mail) beantworten können.
Rücktritt:
Wir weisen auf Ihre 14-tägige Rücktrittsfrist (gemäß § 11 FAGG) hin. Vor Ablauf der 14-tägigen Rücktrittsfrist werden wir gerne für Sie tätig, wenn Sie gesetzeskonform (FAGG) uns ausdrücklich (am einfachsten per E-Mail) dazu auffordern.
| Angaben gemäß gesetzlichem Erfordernis: | |||
| Heizwärmebedarf: | 403.0 kWh/(m²a) | ||
| Klasse Heizwärmebedarf: | G | ||
| Faktor Gesamtenergieeffizienz: | 5.81 | ||
| Klasse Faktor Gesamtenergieeffizienz: | G | ||
Nur auf remax.at finden Sie neue RE/MAX Immobilien früher und vollständig, und mit der RE/MAX App sofort am Handy!
Eckdaten
| Objektnr: | 2275_7482 |
| Art: | Haus - Einfamilienhaus |
| Land: | Österreich |
| Baujahr: | ca. 1957 |
| Möbliert: | Voll |
| Alter: | Altbau |
| Kaufpreis: | 295.000,00 € |
| Provision: | 3.00 % |
| Wohnfläche: | 180,00 m² |
| Nutzfläche: | 470,00 m² |
| Grundstücksfl.: | 2.863,00 m² |
| Zimmer: | 9 |
| Bäder: | 2 |
| WC: | 2 |
| Stellplätze: | 5 |
| Keller: | 55,00 m² |
| Heizwärmebedarf: | G 403,00 kWh/m²a |
| fGEE: | G 5,81 |
Ausstattung
Kamin, Garage, Parkplatz, Sauna
Internet und TV
Information zur Internet und TV Versorgung hier
Ihre persönliche Beratung
DI (FH) Thomas Jank
RE/MAX P&I in Neusiedl/S.
E t.jank@remax-pi.at
H +43 677 640 73 200