Baugenehmigtes Wohnprojekt für 6 Wohnungen mit Terrassen, Garagen

Sonstige - Sonstige, 7072 Mörbisch am See

Beschreibung der Immobilie

Verkauf über ein geschlossenes Angebotsverfahren!

Zum Verkauf kommt dieses bereits baugenehmigte Projekt für den Abbruch und Neubau eines Mehrfamilienhauses zentral in Mörbisch am See gelegen. Ob Umsetzung als Eigentumswohnungen oder Mietwohnungen bleibt dem Käufer überlassen.


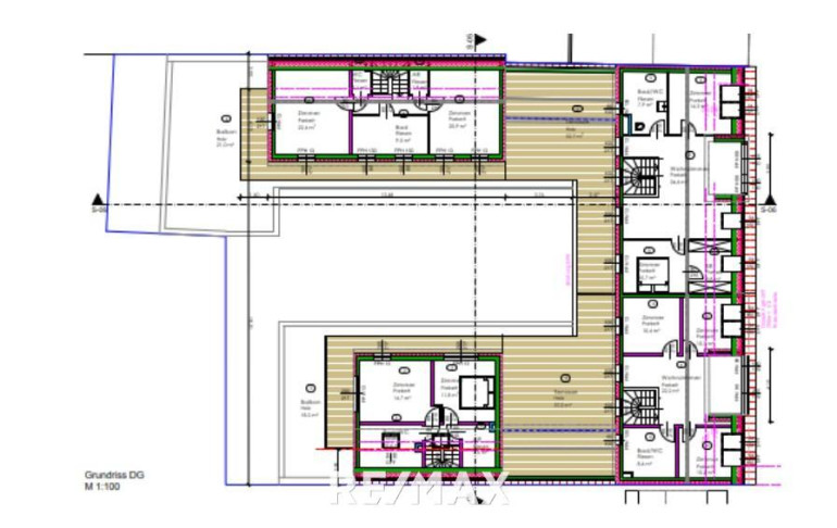
UMFANG DES PROJEKTES:
+ Abbruchgenehmigung ehemaliges Wohnhaus, Pension und Nebengebäude
+ Neubau in Massivbauweise mit EG, OG und ausgebauten DG
+ Im EG zwei Wohneinheiten mit Terrassen und Gärten
+ 8 überdachte Einstellplätze straßenseitig
+ 4 Maisonettwohnung mit Terrassen und Balkonen ab Obergeschoss

Habe ich Sie neugierig gemacht?
Fordern Sie jetzt die Planungsunterlagen, Genehmigungen und Einreichpläne an!


INFORMATIONEN ÜBER DAS GESCHLOSSENES ANGEBOTSVERFAHREN:
Sobald Sie alle Unterlagen geprüft haben und den Bestand besichtigt haben bekommen Sie eine Einladung zu dem geschlossenen Angebotsverfahren.

+ Jeder Interessent kann genau ein Angebot online abgeben.
+ Angebotspreise sind bis zum Ende der Angebotsfrist für niemanden Einsehbar
+ Angebotsfrist ab Start vier Wochen
+ Nach Angebotsfrist erhält der Verkäufer alle Angebote übermittelt.

LAGE:
Mörbisch am See ist eine idyllische Gemeinde im nördlichen Burgenland, direkt am Westufer des Neusiedler Sees gelegen und zählt etwa 2.378 Einwohner.

Die Gemeinde ist bekannt für ihre kulturellen Veranstaltungen, insbesondere die Seefestspiele Mörbisch, die jährlich im Juli und August auf einer beeindruckenden Seebühne stattfinden. Ein weiteres Highlight sind die historischen Hofgassen mit ihren charakteristischen Streckhöfen, die seit 2003 Teil des UNESCO-Weltkulturerbes sind und das traditionelle pannonische Ortsbild prägen.

Für Freizeitaktivitäten bietet Mörbisch ein vielfältiges Angebot: Vom großzügigen Seebad mit Badeinsel über Wassersportmöglichkeiten wie Segeln, Surfen und Stand-Up-Paddling bis hin zu Rad- und Wanderwegen rund um den See. Zudem ist die Region für ihren hochwertigen Weinbau bekannt, mit zahlreichen Heurigen, die lokale Weine und Spezialitäten anbieten.

Insgesamt verbindet Mörbisch am See auf harmonische Weise kulturelles Erbe, naturnahe Erholung und kulinarischen Genuss, was es zu einem begehrten Wohn- und Urlaubsort macht.

ENTFERNUNGEN VON DER IMMOBILIE:
- Lebensmittel: ca. 700 m
- Gemeindeamt: ca. 600 m
- Volksschule: ca. 900 m
- Kindergarten: ca. 700m
- Seebad Mörbisch: ca. 2,1 km
- Bus: ca. 1 Km
- Eisenstadt: ca. 19 Km
- Wien: ca. 59 km
- Flughafen Wien: ca. 33 km

SONSTIGES:
Die Angaben zum Objekt basieren auf uns zur Verfügung gestellten Informationen. Detailfragen werden im Zuge von Besichtigungen besprochen, geklärt oder nachgereicht.

Wir bitten um Verständnis, dass wir aufgrund der Nachweispflicht gegenüber dem Eigentümer, nur Anfragen mit vollständigen Kontaktdaten (Name, Anschrift, Tel.-Nr., E-Mail) beantworten können.

Wir informieren Sie darüber, dass wir bei diesem Objekt eine Doppelmaklertätigkeit ausüben. (§ 5 Abs. 3 MaklerG.)
Sie haben noch keine Finanzierung oder interessieren sich für ein Vergleichsangebot? Sprechen Sie uns an - wir arbeiten mit langjährigen Finanzierungspartnern zusammen und vermitteln Ihnen gerne einen kompetenten Finanzierungsberater, der Ihnen unverbindlich ein individuelles Angebot erstellt.

Dieses Angebot ist unverbindlich und einer Zwischenverwertung vorbehalten.
Nur auf remax.at finden Sie neue RE/MAX Immobilien früher und vollständig, und mit der RE/MAX App sofort am Handy!

Eckdaten

Objektnr: 2275_7554
Art: Sonstige - Sonstige
Land: Österreich
Kaufpreis: 350.000,00
Kaufpreis / m²: auf Anfrage
Provision: 3.00 %
Nutzfläche: 806,00 m²
Grundstücksfl.: 784,00 m²
Stellplätze: 8
Immobilie merken Exposé

Ausstattung

Parkplatz


Internet und TV

Information zur Internet und TV Versorgung hier


Immobilie anfragen


Ihre persönliche Beratung

RE/MAX Style

Andreas Batka

RE/MAX P&I in Neusiedl/S.

E a.batka@remax-pi.at

H +43 660 628 45 24