Räumlichkeiten mit Potential zum imposanten Büro - Ca. 120m2 im 1. Stock

Büro / Praxis - Bürofläche, 2410 Hainburg an der Donau

Beschreibung der Immobilie

Zur Vermietung gelangt eine Bürofläche mit ca. 120 m² Nutzfläche im 1. Obergeschoss eines historischen Bürgerhauses (Baujahr vor 1900) im Zentrum von Hainburg.
Die Immobilie überzeugt durch ihre großzügigen Altbauräume mit über 3 Metern Raumhöhe und klassischem Parkettboden.
Ideal geeignet für Rechtsanwälte, Steuerberater, Buchhalter oder ähnliche Dienstleistungen. Die Räumlichkeiten sind renovierungsbedürftig, bietet damit aber viel Gestaltungsspielraum für eine individuelle Nutzung.

Besonderheiten:
*Historisches Bürgerhaus mit Altbau-Charme.
*Großzügige Raumhöhen über 3 m.
*Geeignet für Dienstleister (Anwaltskanzlei, Steuerberatung, Buchhaltung, etc.).
*Renovierungsbedürftig – viel Gestaltungspotenzial.
*Aktuell leerstehend.

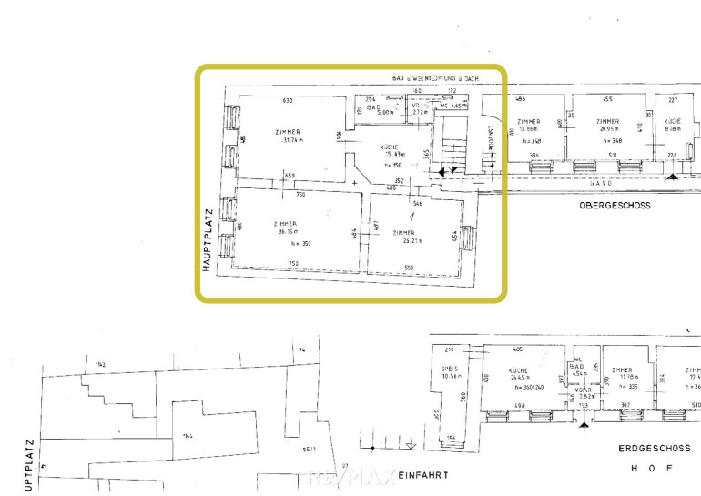
Raumaufteilung:
*Raum 1 (Vorzimmer) - Ca. 25 m2.
*Raum 2 (Fenster Richtung Hauptplatz) - Ca. 32m2.
*Raum 3 (Fenster Richtung Hauptplatz) - Ca. 36m2.
*Raum 4 (Fenster Richtung Innenhof) - Ca. 26m2.

Miete: VB € 700,-
Umfasst: Räumlichkeiten, unbewegliche Einrichtungsgegenstände, exkl. aller Betriebskosten (Kanalgebühren, Grundsteuer, Wasser, Abfallentsorgung, Strom, etc.).
Möbel/ Geräte können nach Bedarf dazugekauft/ gemietet werden!
Die Höhe der Miete und Kaution richtet sich nach der gewünschten Nutzung und Mietdauer.
Langfristige Mieter mit nachhaltigem Nutzungskonzept werden bevorzugt.
Kaution: 3 Bruttomonatsmieten.


Lagebeschreibung:
Die Lage kann man nur als hervorragend bezeichnen - mitten im Zentrum und doch ruhig gelegen! Direkt in der Hainburger Innenstadt am Hauptplatz. Durch die zentrale Lage ist eine gute Erreichbarkeit sowohl für Kunden als auch für Lieferanten gegeben. Nahversorgung, Gastronomie und Dienstleister befinden sich in unmittelbarer Umgebung.Vor allem die Verkehrsanbindung nach Wien/ Schwechat und die Slowakei (Bus und Schnellbahn) machen diese Stadt besonders interessant.
Nähere Informationen finden Sie unterwww.hainburg-donau.gv.at.
Die Bezirkshauptstadt Bruck an der Leitha ist ca. 10 km entfernt, Wien ist in 30 min per Auto oder auch per Zug erreichbar. Bratislava ist 20 km entfernt.

Rechtliche Hinweise!:
In Entsprechung des FAGG (Fern- und Auswärtsgeschäfte-Gesetz) und des VRUG (Verbraucherrechte-Richtlinie-Umsetzungsgesetz), ersuchen um Verständnis, dass wir von Ihnen VOR der Zusendung des Exposés die Bestätigung des sofortigen Tätigwerdens, sowie über die Aufklärung des Rücktrittsrechtes benötigen.
Darüber hinaus ist es uns leider nur mehr möglich Termine erst nach Erhalt einer schriftlichen Anfrage mit vollständigen Kontaktangaben (Name, Adresse, Telefon, Email) zu vereinbaren.
Dies gilt auch für die Weitergabe relevanter Informationen zu den Objekten.
Wir können kraft bestehenden Geschäftsgebrauchs als Doppelmakler tätig sein.
Wir ersuchen um Verständnis und freuen uns Sie demnächst als Kunde begrüßen zu dürfen.
Nur auf remax.at finden Sie neue RE/MAX Immobilien früher und vollständig, und mit der RE/MAX App sofort am Handy!

Eckdaten

Objektnr: 2275_7586
Art: Büro / Praxis - Bürofläche
Land: Österreich
Baujahr: ca. 1900
Alter: Altbau
Gesamtmiete: 700,00
Kaltmiete (netto): 700,00 €
Kaltmiete: 700,00 €
Nutzfläche: 119,00 m²
Bürofläche: 119,00 m²
Zimmer: 4
WC: 1
Immobilie merken Exposé

Ausstattung

Parkett


Internet und TV

Information zur Internet und TV Versorgung hier


Immobilie anfragen


Ihre persönliche Beratung

RE/MAX Limes

Alexander Schmied

RE/MAX P&I in Neusiedl/S.

E a.schmied@remax-pi.at

H +43 664 922 20 89