Wohnung mit großer Terrasse und schönem Ausblick in Waltendorf! *Provisisonsfrei*

Wohnung - Etage, 8042 Graz

Beschreibung der Immobilie

Den Blick in die Ferne schweifen lassen, den Lebensraum innerhalb und außerhalb der eigenen vier Wände genießen zu können - und das alles ohne Lärm und neidvollen Blicken der Gesellschaft durch intelligente Anordnung, Ausrichtung und Gestaltung der Gebäude.

Erleben Sie Ihr neues Zuhause mit höchsten gestalterischen Ansprüchen, gepaart mit innovativen, ökologisch vorauseilenden Lösungen und lauschen Sie dem abkühlenden Plätschern des hauseigenen Wasserfalls.

Es entstehen insgesamt 6 exklusive Wohneinheiten. Die Wohneinheiten verfügen über großzügige Wohnflächen und zeichnen sich durch zeitgemäße, intelligente Grundrisse aus. Jede Wohnung verfügt über eine private Freifläche in Form einer Terrasse, eines Balkons oder eines privaten Gartens. Im Inneren der Wohnungen treffen durchdachte Raumkonzepte auf die Verwendung von hochwertigen Materialien, was zu einer unvergleichlichen Wohnatmosphäre führt.

Die Häuser werden in Massivbauweise mit Vollwärmeschutz und begrünten Dächern errichtet. Die Fenster und Fenstertüren werden in Kunststoff-Alu mit 3-Scheiben-Isolierverglasung ausgeführt.

Beheizt wird die Wohnung mittels Fußbodenheizung und Luftwärmepumpe. Die Dachflächen der Carports werden zur Aufstellung einer Photovoltaik-Anlage genutzt.

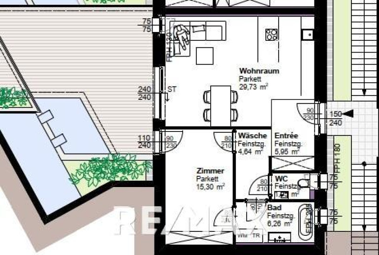
Raumkonzept dieser Wohnung:
- Entrée (ca. 5,95 m²)
- Vorraum (ca. 4,64 m²)
- Wohnen/Essen/Kochen (ca. 29,73 m²)
- Zimmer (ca. 15,30 m²)
- Bad (ca. 6,26 m²)
- Toilette (ca. 1,95 m²)
- Terrasse (ca. 31,67 m²)

Der Baubeginn erfolgt im Januar 2026. Die Fertigstellung ist ungefähr 12 Monate später. Ein überbauter Autoabstellplatz ist um € 10.000,-- erwerbbar.

Highlights:
- beste Wohnlage im Bezirk Waltendorf
- schöner Ausblick ins Grüne
- nur 6 Wohneinheiten
- beste Infrastruktur (Schulen, Kindergärten, Ärzte und Nahversorger)
- niedrige Betriebskosten – Heizung erfolgt mittels Erdwärmepumpe
- alle Wohnungen verfügen über großzügige Freibereiche und Terrassen
- teilweise überhohe Geschosse mit Raumhöhen bis zu 2,80 m
- Massivbauweise

Für weitere Informationen bzw. für die Vereinbarung eines Besichtigungstermins stehe ich Ihnen gerne zur Verfügung.

Bitte beachten Sie, dass wir aufgrund unserer Nachweispflicht dem Abgeber gegenüber nur Anfragen beantworten können, die Ihren Namen, die vollständige Anschrift und eine Telefonnummer enthalten.
Angaben gemäß gesetzlichem Erfordernis:
Heizwärmebedarf:42.5 kWh/(m²a)
Klasse Heizwärmebedarf:B
Faktor Gesamtenergieeffizienz:0.63
Klasse Faktor Gesamtenergieeffizienz:A+

Eckdaten

Objektnr: 1665_7761
Art: Wohnung - Etage
Land: Österreich
Baujahr: ca. 2026
Zustand: Gepflegt
Alter: Neubau
Kaufpreis: 349.150,00
Wohnfläche: 63,83 m²
Zimmer: 2
Bäder: 1
WC: 1
Terrassen: 1
Stellplätze: 1
Heizwärmebedarf:  B  42,50 kWh/m²a
fGEE:  A+  0,63
Immobilie merken Exposé

Ausstattung

Kabel/Satelliten-TV, Parkplatz


Internet und TV

Information zur Internet und TV Versorgung hier


Immobilie anfragen


Ihre persönliche Beratung

RE/MAX Classic in Graz

Mag. Georg Herzog

RE/MAX Classic in Graz

E herzog@remax-classic.at

T +43 316 296 000267

H +43 664 15 33 267

F +43 296 000-5