Attraktive Gewerbefläche mit vielseitigen Nutzungsmöglichkeiten
Halle / Lager / Produktion
- Produktion,
8020
Graz
Beschreibung der Immobilie
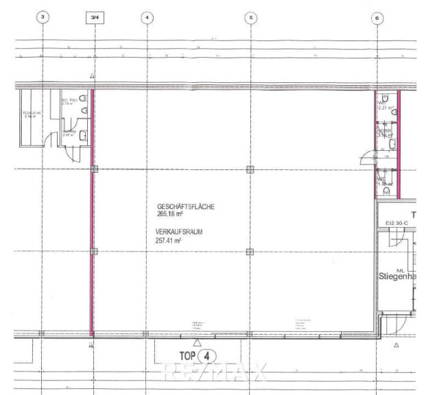
Diese Gewerbefläche mit ca. 265 m² befindet sich im Süden von Graz, im Stadtteil Straßgang und bietet viel Platz für Ihr Geschäftskonzept.
Die sichtbare Fläche besteht überwiegend aus einem großen Verkaufsraum ca. 257 m² und eignet sich ideal als Schauraum, Ausstellungsfläche oder Verkaufsraum.
Die Fläche lässt sich zudem flexibel gestalten, um sie optimal an Ihre Anforderungen anzupassen. Die Räumlichkeiten verfügen über Anschlüsse für eine Küche, zwei WC-Anlagen sowie einen Vorraum.
Beheizt wird das Objekt mittels Gaszentralheizung mit Deckenstrahlerplatten, die für ein angenehmes Raumklima sorgen.
Der großzügige Raum schafft eine helle, einladende Atmosphäre, die sich perfekt für den Kundenverkehr eignet.
Ausstattung & Highlights
• Glasfaseranschluss
• Automatische Schiebetür
• Torluftschleier
• Gaszentralheizung mit Deckenstrahlerplatten
• Klimaanlage vorhanden
• Gute Sichtbarkeit
• Kundenparkplätze direkt vor Ort
• Weitere Mitarbeiterstellplätze optional möglich
Lage
Das Objekt befindet sich in verkehrsgünstiger Lage in Graz mit optimaler Sichtbarkeit und Erreichbarkeit für Kunden.
Einkaufsmöglichkeiten, Gastronomie und Dienstleister liegen in unmittelbarer Umgebung.
Dank der guten Anbindung an das öffentliche Verkehrsnetz und das Grazer Straßennetz ist der Standort besonders attraktiv.
Fazit
Ein helles, großzügiges Gewerbeobjekt mit großem Potenzial – ideal für Unternehmen, die einen repräsentativen Verkaufsraum mit ausgezeichneter Erreichbarkeit suchen.
Für weitere Informationen bzw. für die Vereinbarung eines Besichtigungstermins stehe ich Ihnen gerne zur Verfügung.
Bitte beachten Sie, dass wir aufgrund unserer Nachweispflicht dem Abgeber gegenüber nur Anfragen beantworten können, die Ihren Namen, die vollständige Anschrift und eine Telefonnummer enthalten.
| Angaben gemäß gesetzlichem Erfordernis: | |||
| Miete | € | 4216,04 | zzgl 20% USt. |
| Betriebskosten | € | 583,35 | zzgl 20% USt. |
| Heizkosten | € | 119,32 | zzgl 20% USt. |
| Umsatzsteuer | € | 983,74 | |
| ------------------------------------------------------------------ | |||
| Gesamtbetrag | € | 5902,45 | |
| ------------------------------------------------------------------ | |||
| Heizwärmebedarf: | 82.88 kWh/(m²a) | ||
| Klasse Heizwärmebedarf: | C | ||
| Faktor Gesamtenergieeffizienz: | 0.76 | ||
| Klasse Faktor Gesamtenergieeffizienz: | A | ||
Eckdaten
| Objektnr: | 1665_7778 |
| Art: | Halle / Lager / Produktion - Produktion |
| Land: | Österreich |
| Baujahr: | ca. 2012 |
| Gesamtmiete: | 5.902,45 € |
| Kaltmiete (netto): | 4.216,04 € |
| Kaltmiete: | 4.799,39 € |
| Nutzfläche: | 265,16 m² |
| Heizwärmebedarf: | C 82,80 kWh/m²a |
| fGEE: | A 0,76 |
Internet und TV
Information zur Internet und TV Versorgung hier
Ihre persönliche Beratung
Waltraud Grabner
RE/MAX Classic in Graz
E gw@remax-classic.at
T +43 316 296 00010
H +43 664 12 88 007