Beschreibung der Immobilie
"Geschäft, Büro, Praxis mit Lager direkt im Zentrum von Mödling"
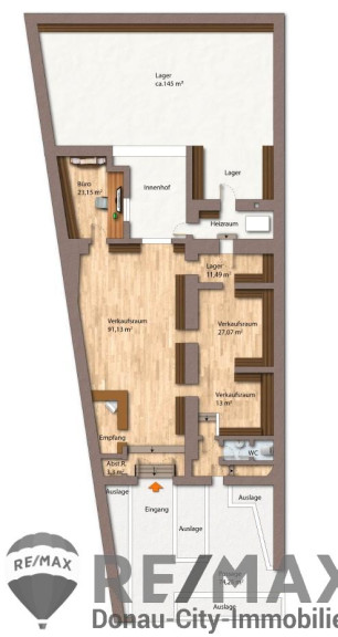
Dieses tolle Geschäftslokal liegt im Zentrum von Mödling und verfügt über ein Lager, eine Passage und einer riesigen Auslagefläche.
Raumaufteilung:
Verkaufsfläche/Büro, Abstellraum, Nebenräume, 1 WC, ca. 195m²
+ Lager mit Regalen ca. 145m² (beheizt)
+ Passage ca. 74m² mit ca. 30m² Auslagenfläche
+ Innenhof ca. 30m²
Die gesamte Nutzfläche beträgt somit ca. 410m² + Passage/Auslagen/Innenhof
Diese Räumlichkeiten sind Anhand der Lage und der riesigen Auslagenfläche, die einen enormen Werbe-Effekt haben, eine ideale Gelegenheit, Ihr Geschäftsideen in Mödlinger Hauptstraße zu verwirklichen.
Die Einkaufstadt Mödling, hat sich in den letzten Jahren zu einem wahren Schmuckstück verwandelt und es heist ja: "Fahr nicht fort, kauf im Ort"
Laut Statistik hat Mödling den kleinsten Leerstand bei den Geschäftsflächen in NÖ. Das die letzten 3 Jahre durchgehend.
Miete Netto. 2.627,50
20% Mwst 525,50
Miete Brutto 3.153,-
BK Akonto 600,- inkl. Mwst (beinhaltet, Gemeindeabgaben, Wasserabgaben, Passageabgaben an die Gemeinde, Wasserkosten, Rauchfangkehrer, Gebäudeversicherung, Winterdienst).
Gesamtmiete inkl. Mwst und BK Akonto 3.753,-
Dieses tolle Geschäftslokal liegt im Zentrum von Mödling und verfügt über ein Lager, eine Passage und einer riesigen Auslagefläche.
Raumaufteilung:
Verkaufsfläche/Büro, Abstellraum, Nebenräume, 1 WC, ca. 195m²
+ Lager mit Regalen ca. 145m² (beheizt)
+ Passage ca. 74m² mit ca. 30m² Auslagenfläche
+ Innenhof ca. 30m²
Die gesamte Nutzfläche beträgt somit ca. 410m² + Passage/Auslagen/Innenhof
Diese Räumlichkeiten sind Anhand der Lage und der riesigen Auslagenfläche, die einen enormen Werbe-Effekt haben, eine ideale Gelegenheit, Ihr Geschäftsideen in Mödlinger Hauptstraße zu verwirklichen.
Die Einkaufstadt Mödling, hat sich in den letzten Jahren zu einem wahren Schmuckstück verwandelt und es heist ja: "Fahr nicht fort, kauf im Ort"
Laut Statistik hat Mödling den kleinsten Leerstand bei den Geschäftsflächen in NÖ. Das die letzten 3 Jahre durchgehend.
Miete Netto. 2.627,50
20% Mwst 525,50
Miete Brutto 3.153,-
BK Akonto 600,- inkl. Mwst (beinhaltet, Gemeindeabgaben, Wasserabgaben, Passageabgaben an die Gemeinde, Wasserkosten, Rauchfangkehrer, Gebäudeversicherung, Winterdienst).
Gesamtmiete inkl. Mwst und BK Akonto 3.753,-
| Angaben gemäß gesetzlichem Erfordernis: | |||
| Miete | € | 2627,5 | zzgl 20% USt. |
| Umsatzsteuer | € | 525,5 | |
| ------------------------------------------------------------------ | |||
| Gesamtbetrag | € | 3153 | |
| ------------------------------------------------------------------ | |||
| Heizwärmebedarf: | 151.0 kWh/(m²a) | ||
| Klasse Heizwärmebedarf: | E | ||
| Faktor Gesamtenergieeffizienz: | 1.99 | ||
| Klasse Faktor Gesamtenergieeffizienz: | D | ||
Eckdaten
| Objektnr: | 1626_27562 |
| Art: | Einzelhandel - Ladenlokal |
| Land: | Österreich |
| Baujahr: | ca. 1920 |
| Zustand: | Gepflegt |
| Gesamtmiete: | 3.153,00 € |
| Kaltmiete (netto): | 2.627,50 € |
| Kaltmiete: | 2.627,50 € |
| Nutzfläche: | 410,00 m² |
| Verkaufsfläche: | 410,00 m² |
| WC: | 1 |
| Heizwärmebedarf: | E 151,00 kWh/m²a |
| fGEE: | D 1,99 |
Ausstattung
Gas, Etagenheizung
Internet und TV
Information zur Internet und TV Versorgung hier
Ihre persönliche Beratung
Peter Guttmann
RE/MAX Donau-City Immobilien
E pguttmann@remax-dci.at
H +43 699 121 09 303
F +43 1 699 11 12 - 13