"Seltene Gelegenheit: Aufgeschlossener Baugrund in Vösendorf!"

Grundstück - Baugrund Eigenheim, 2331 Vösendorf

Beschreibung der Immobilie

Seltene Gelegenheit: Aufgeschlossener Baugrund in Vösendorf!Der Verkauf wird über das neue *) digitale Angebotsverfahren / DAVE abgewickelt.DAVE - Digitales Angebotsverfahren! Die fairste Form der Preisfindung bei Immobilien!
Mehr Informationen finden Sie unter: DAVE – Das digitale Angebotsverfahren für Immobilien!
Ein Grundstück das Ruhe Geborgenheit Freude und Frieden schenkt.

Dieses traumhafte Grundstück mit 621,26 m² liegt in einer ruhigen Sackgasse von Vösendorf und bietet zahlreiche Gestaltungsmöglichkeiten. Ob Sie gemeinsam mit Schwester Bruder oder Freunden ein Mehrfamilienprojekt verwirklichen wollen oder lieber den Traum vom eigenen Einfamilienhaus mit bis zu 250 m² Wohnfläche umsetzen möchten – hier ist beides möglich.

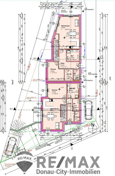
Ein vollständiger und genehmigungsfähiger Einreichplan gemäß Niederösterreichischer Bauordnung ist bereits vorhanden. Das Projekt entspricht der Gebäudeklasse 1 und sieht zwei Wohneinheiten vor. Moderne Haustechnik mit Wärmepumpe Photovoltaik und Fußbodenheizung ist eingeplant, wodurch ein nachhaltiges und energieeffizientes Wohnen gewährleistet wird.

Das Grundstück ist voll aufgeschlossen und somit sofort bebaubar. Es gilt Bauklasse 1 und 2.

Die Lage ist ein weiteres Highlight. In einer ruhigen Sackgasse ohne Durchzugsverkehr genießen Sie viel Privatsphäre und eine sonnige Ausrichtung, die Haus und Garten perfekt belichtet. Die Infrastruktur ist hervorragend. Nahversorger Schulen und Kindergärten befinden sich in unmittelbarer Nähe. Die Shopping City Süd erreichen Sie in wenigen Minuten. Dank der Badner Bahn und Busverbindungen sind Sie bestens an Wien angebunden. Über die Autobahnen A2 A23 und S1 gelangen Sie rasch in alle Richtungen.

Vösendorf selbst zählt zu den beliebtesten Wohnlagen im Süden Wiens. Die Gemeinde vereint ländliche Ruhe mit urbaner Nähe. Europas größtes Einkaufszentrum mit hunderten Geschäften Restaurants Kino und Entertainment liegt gleich ums Eck. Gleichzeitig bieten Grünflächen Spazierwege Sportmöglichkeiten und der Schlosspark vielfältige Erholungsräume. Familien profitieren von der ausgezeichneten Versorgung mit Schulen Kindergärten und Freizeiteinrichtungen.

Dieses sonnige und voll aufgeschlossene Grundstück ist flexibel bebaubar. Ob Doppelhaushälfte oder Einfamilienhaus – das Potenzial ist groß. Der Einreichplan ist fertig und Kontakte zu Bauträgern sind vorhanden. Gerne unterstützen wir Sie bei der Umsetzung.

Grundstücksdaten: Fläche lt. Grundbuch 621,26 m² Widmung Bauland-Wohngebiet Bauklasse 1 und 2 Bauweise gemäß Plan.

Richtpreis: € 319.000 *)*) Beim angegebenen Preis handelt es sich um einen Richtpreis, da der Preis vom Interessenten mit einem *) online erstellten Anbot definiert wird und kann abhängig von der jeweiligen Nachfrage, auch über diesem Preis zu liegen kommen. Die Zustimmung erfolgt ausschließlich vom Abgeber durch Gegenzeichnung des gestellten Anbotes!
Fazit: Ein Grundstück in Vösendorf bedeutet Wohnen in einer ruhigen Sackgasse mit Sonne Privatsphäre und bester Infrastruktur – und gleichzeitig die Vorzüge der Großstadt Wien in unmittelbarer Reichweite.

Der Vermittler ist als Doppelmakler tätig!

Eckdaten

Objektnr: 1626_27742
Art: Grundstück - Baugrund Eigenheim
Land: Österreich
Kaufpreis: 319.000,00
Provision: 3.00 %
Grundstücksfl.: 626,21 m²
Immobilie merken Exposé

Ausstattung

Kabel/Satelliten-TV


Internet und TV

Information zur Internet und TV Versorgung hier


Immobilie anfragen


Ihre persönliche Beratung

RE/MAX Mödling

Berin Kollmann

RE/MAX Donau-City Immobilien

E bkollmann@remax-dci.at

H +43 660 473 66 77