PROVISIONSFREIE NEUBAU-EIGENTUMSWOHNUNGEN IN NUSSDORF

Wohnung - Dachgeschoß, 1190 Wien

Beschreibung der Immobilie

In Nussdorf – Nähe Donau, Plachutta Nussdorf, Q19 Einkaufszentrum – entsteht ein kleines Objekt mit 45 Eigentums- und Anlegerwohnungen auf Eigengrund.

Die Wohnungen haben eine Größe zwischen ca. 38 und 100 m² mit ein bis vier Zimmern, modernen Grundrissen und Freiflächen (Loggia, Balkon oder Terrasse).

Die Beheizung der Wohneinheiten erfolgt durch die Fernwärme Wien oder eine Wärmepumpe über die Fußböden.

In der hauseigenen Tiefgarage entstehen weiters 10 Stellplätze.

Aufgrund der guten Infrastruktur (Bahnhof Nussdorf, U4-Heiligenstadt, Straßenbahnlinie D, Donau) eignen sich die Wohnungen auch bestens zum Vermieten.
Die Geschäfte des täglichen Bedarfs sind fußläufig schnell erreichbar (Billa Plus 220 m, Hofer 220m), Kindergarten, Schulen, Ärzte und Apotheke befinden sich innerhalb des 500m-Radius.
Mit den öffentlichen Verkehrsmitteln sowie mit dem Fahrrad erreicht man schnell auch das Zentrum und viele „Hot-Spots“ von Wien.
Für Sport- und Freizeitaktivitäten stehen zahlreiche Möglichkeiten zur Verfügung (z.B. Donaukanal, Krapfenwaldlbad, Spaziergänge und Radausflüge entlang des Stadtwanderweges, Heurige am Nussberg).


FACTS:
- Eigengrund
- 45 modern ausgestattete Wohnungen mit 1 bis 4 Zimmer;
- Freiflächen (Loggia, Balkon oder Terrasse)
- Zentralheizung mit Fernwärme Wien oder Wärmepumpe über Fußböden;
- Wärme- und Warmwassermengenzähler in jeder Wohnung
- Eichenparkettböden in den Aufenthaltsräumen; moderne Fliesen in den Nassräumen;
- Alle Sanitäranlagen und Waschmaschinenanschluss;
- Außenjalousien mit manueller Bedienung
- Vorbereitung einer Kühlmöglichkeit in den Dachgeschosswohnungen (Leerverrohrung);
- Tiefgaragen- und Fahrradabstellplätze;
- Bahnhof Nussdorf, U4-Heiligenstadt, Straßenbahnlinie D, Autobus 38A;
- Donau, Donaukanal, Nussberg, Krapfenwaldlbad, Plachutta Nussdorf, Beethoven-Museum;
- Nahversorgung (Lebensmittelgeschäfte, Kindergarten, Schulen, Ärzte.)
- Q19 Einkaufszentrum


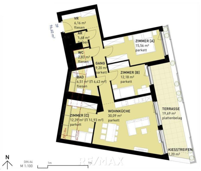
Beispielwohnung: Terrassen-Wohnung im Dachgeschoß mit ca. 97m²:
Vorzimmer; Abstellraum;
Badezimmer mit Dusche, Waschtisch und Waschmaschinenanschluss,
separates WC;
moderne Wohnküche mit ca. 30 m² mit Zugang zur ca. 20 m²-großen Terrasse;
drei Schlafzimmer mit ca. 16, 12 und 12 m²;
Terrasse mit ca. 20 m²


Kaufpreis: netto EUR 762.135.- für „Anleger“ bzw. EUR 819.500.- für „Eigennutzer“
(zuzüglich 3,5% Grunderwerbssteuer, 1,1% Grundbuchseintragungsgebühr/Befreiung bei dringendem Wohnbedürfnis, provisionsfrei für den Käufer, Vertragserrichtungskosten ca. 1,8% + USt., Notargebühren; ev. Finanzierungskosten);

ein Tiefgaragenplatz kann um EUR 39.000.- erworben werden.
Auf das wirtschaftliche Naheverhältnis zum Anbieter wird hingewiesen.
Wir informieren Sie darüber, dass wir bei diesem Objekt eine Doppelmaklertätigkeit ausüben (§ 5 Abs. 3 MaklerG).
Die Angaben beruhen auf Informationen der Eigentümer und/oder Dritter und sind daher ohne Gewähr. Änderungen vorbehalten.

Für weitere Beratungen und Finanzierungsvorschläge stehe ich gerne zur Verfügung.

Gerne informiere ich Sie auch über weitere Anleger- und Eigentumswohnungen und stehe für Finanzierungsberatung zur Verfügung.
Angaben gemäß gesetzlichem Erfordernis:
Heizwärmebedarf:29.9 kWh/(m²a)
Klasse Heizwärmebedarf:B

Für weitere Informationen oder Besichtigungen steht Ihnen Herr Mag. Johann Schandl unter 0676 601 99 63 oder office@remax-real-experts.at gerne zur Verfügung.
Qualität macht sicher!
RE/MAX Real Experts wurde bereits wiederholt von der Wirtschaftskammer für die hervorragende Betreuung mit dem Immy ausgezeichnet. Ihre Zufriedenheit ist unsere Aufgabe!

Nutzen Sie auch unser Service für Abgeber!
Schnellstmöglich zum besten Preis verkaufen durch unsere besonderen Vermarktungsaktivitäten!

Eckdaten

Objektnr: 1619_7803
Art: Wohnung - Dachgeschoß
Land: Österreich
Baujahr: 2026
Zustand: Erstbezug
Kaufpreis: 762.135,00
Wohnfläche: 97,00 m²
Zimmer: 4
Bäder: 1
WC: 1
Terrassen: 1
Heizwärmebedarf:  B  29,90 kWh/m²a
Immobilie merken Exposé

Ausstattung

Fußbodenheizung, Personenaufzug


Internet und TV

Information zur Internet und TV Versorgung hier


Immobilie anfragen


Ihre persönliche Beratung

RE/MAX Real Experts

Mag. Johann Schandl

RE/MAX Real Experts

E j.schandl@remax-real-experts.at

H +43 (0)676 601 99 63