Dein zu Hause im Tiroler Wipptal
Wohnung
- Etage,
6143
Matrei am Brenner
Beschreibung der Immobilie
Diese gepflegte 2-Zimmer-Wohnung befindet sich im zweiten Obergeschoss eines Mehrparteienhauses in Statz einem Ortsteil von Matrei am Brenner.
Durch die hervorragende Anbindung an Bahn und Autobahn ist Innsbruck in nur etwa 17 Kilometern schnell erreichbar, wodurch sich die Immobilie ideal für Singles oder Paare eignet,
die die Nähe zur Stadt schätzen, ohne auf das Landleben verzichten zu wollen.
Objektbeschreibung
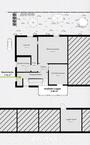
Die charmante Wohnung selbst, überzeugt mit einer durchdachten Raumaufteilung sowie einem einladenden Ambiente. Auf ca. 45,83 m² Wohnfläche laut vorhandenen Grundrissplan bietet sie alles, was man sich für ein gemütliches Zuhause wünscht. Der Wohnbereich schafft Platz zum Entspannen, das Schlafzimmer eine angenehme Rückzugsmöglichkeit.
Die praktische Küche mit Essbereich sorgt für Komfort im Alltag, während das Badezimmer mit Dusche und WC ausgestattet ist. Die Waschnische ist auf derselben Ebene im Treppenhaus gut erreichbar. Erwähnenswert ist außerdem die verglaste Loggia, welche früher mal ein Balkon war, die zusätzlichen Wohnraum und ein besonderes Wohlfühlambiente bietet. Abgerundet wird das Angebot durch einen Lagerraum, ein Kellerabteil, sowie einen eigenen Garten, welcher von der Wohnung aus nicht unmittelbar zugänglich ist, jedoch zu erholsamen Stunden im Freien einlädt.
Dank des gepflegten Gesamtzustands kann die Wohnung sofort und ohne Renovierungsaufwand bezogen werden.
Parkplätze
Dem Objekt ist kein Parkplatz zugeordnet, rund um das Haus stehen jedoch ausreichend Parkmöglichkeiten zur Verfügung.
Für nähere Informationen zur Immobilie fordern Sie bitte ein Exposé an.
Wir bitten Sie um Verständnis, dass wir unserer Nachweispflicht nachkommen müssen und wir Anfragen nur unter Angabe der vollständigen Kontaktdaten (Name, Adresse, Telefonnummer, Email) beantworten können!
Nicht alle Immobilien sind auf der Webseite zu sehen. Sie können uns gerne Ihren Suchwunsch bekannt geben.
| Angaben gemäß gesetzlichem Erfordernis: | |||
| Heizwärmebedarf: | 149.6 kWh/(m²a) | ||
| Klasse Heizwärmebedarf: | D | ||
| Faktor Gesamtenergieeffizienz: | 1.53 | ||
| Klasse Faktor Gesamtenergieeffizienz: | C | ||
Weitere interessante Objekte finden Sie unter http://www.remax-recon.at/
Eckdaten
| Objektnr: | 1613_11223 |
| Art: | Wohnung - Etage |
| Land: | Österreich |
| Baujahr: | ca. 1983 |
| Kaufpreis: | 190.000,00 € |
| Provision: | 3.00 % |
| Wohnfläche: | 45,83 m² |
| Zimmer: | 2 |
| Bäder: | 1 |
| WC: | 1 |
| Heizwärmebedarf: | D 149,00 kWh/m²a |
| fGEE: | C 1,53 |
Internet und TV
Information zur Internet und TV Versorgung hier
Ihre persönliche Beratung
Nico Raitmair
RE/MAX Recon
E officeibk1@remax-recon.at