Beschreibung der Immobilie
Sie sind auf der Suche nach einer gemütlichen Wohnung? Dann könnten Sie hier genau richtig sein!
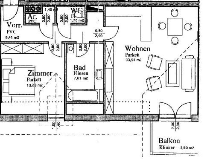
Diese sehr ruhige und helle Wohnung im 2. Stock eines Mehrparteienhauses verfügt über eine Wohnfläche von ca. 56,01 m² und ist wie folgt aufgeteilt:
- Vorraum
- Abstellraum
- WC
- Bad inkl. Badewanne
- Wohn-/Essbereich mit Küche
- Schlafzimmer
Ebenso verfügt die Wohnung über einen tollen Balkon, auf den Sie Zeit im Freien verbringen können.
Zugehörig zur Wohnung sind außerdem noch ein Kellerabteil und ein eigener Parkplatz.
Zögern Sie nicht lange und machen Sie sich selbst ein Bild vor Ort von dieser tollen Gelegenheit!
Bitte beachten Sie, dass wir aufgrund der Nachweispflicht gegenüber dem Eigentümer nur Anfragen mit vollständiger Angabe der Anschrift und Telefonnummer bearbeiten können.
Wir weisen darauf hin, dass alle Angaben nach bestem Wissen und Gewissen erstellt wurden.
Irrtümer, Druckfehler und Änderungen vorbehalten.
Für Auskünfte und Angaben die uns von Seiten der Eigentümer und Dritten zur Verfügung gestellt wurden, übernehmen wir keine Haftung.
Für Fragen steht Ihnen Herr Gattringer gerne unter der Nummer 0664 / 41 29 950 zur Verfügung! Gerne können Sie auch unverbindlich einen Besichtigungstermin vereinbaren.
Diese sehr ruhige und helle Wohnung im 2. Stock eines Mehrparteienhauses verfügt über eine Wohnfläche von ca. 56,01 m² und ist wie folgt aufgeteilt:
- Vorraum
- Abstellraum
- WC
- Bad inkl. Badewanne
- Wohn-/Essbereich mit Küche
- Schlafzimmer
Ebenso verfügt die Wohnung über einen tollen Balkon, auf den Sie Zeit im Freien verbringen können.
Zugehörig zur Wohnung sind außerdem noch ein Kellerabteil und ein eigener Parkplatz.
Zögern Sie nicht lange und machen Sie sich selbst ein Bild vor Ort von dieser tollen Gelegenheit!
Bitte beachten Sie, dass wir aufgrund der Nachweispflicht gegenüber dem Eigentümer nur Anfragen mit vollständiger Angabe der Anschrift und Telefonnummer bearbeiten können.
Wir weisen darauf hin, dass alle Angaben nach bestem Wissen und Gewissen erstellt wurden.
Irrtümer, Druckfehler und Änderungen vorbehalten.
Für Auskünfte und Angaben die uns von Seiten der Eigentümer und Dritten zur Verfügung gestellt wurden, übernehmen wir keine Haftung.
| Angaben gemäß gesetzlichem Erfordernis: | |||
| Heizwärmebedarf: | 100.0 kWh/(m²a) | ||
| Klasse Heizwärmebedarf: | C | ||
| Faktor Gesamtenergieeffizienz: | 2.12 | ||
| Klasse Faktor Gesamtenergieeffizienz: | D | ||
Für Fragen steht Ihnen Herr Gattringer gerne unter der Nummer 0664 / 41 29 950 zur Verfügung! Gerne können Sie auch unverbindlich einen Besichtigungstermin vereinbaren.
Eckdaten
| Objektnr: | 1033_26009 |
| Art: | Wohnung - Etage |
| Land: | Österreich |
| Baujahr: | ca. 1998 |
| Zustand: | Gepflegt |
| Möbliert: | Teil |
| Kaufpreis: | 179.000,00 € |
| Provision: | 3.00 % |
| Wohnfläche: | 56,01 m² |
| Zimmer: | 2 |
| Bäder: | 1 |
| WC: | 1 |
| Balkone: | 1 |
| Stellplätze: | 1 |
| Heizwärmebedarf: | C 100,00 kWh/m²a |
| fGEE: | D 2,12 |
Ausstattung
Gas, Zentralheizung, Parkplatz
Internet und TV
Information zur Internet und TV Versorgung hier
Ihre persönliche Beratung
Kurt Gattringer, MBA, akad. IM
RE/MAX Linz-City
E gattringer@remax-linz-city.at
T +43 732 660 26047
H +43 664 41 29 950
F +43 732 660 260 - 22