Nette 2 Zimmer Wohnung – Zentrum - ab sofort!

Wohnung , 8020 Graz,05.Bez.:Gries , Griesgasse 20

Lage der Immobilie

Die Wohnung befindet sich in unmittelbarer Nähe zur Innenstadt, die zu Fuß, mit dem Fahrrad oder mit dem Auto erreichbar ist. Da es sich im Innenhof befindet, ist es äußerst ruhig und ohne Lärm. Diese Gegend zeichnet sich durch ihre Nähe zu verschiedenen Annehmlichkeiten aus, darunter Geschäfte, Restaurants und öffentliche Verkehrsmittel.

Beschreibung der Immobilie

Nette 2 Zimmer Wohnung – Zentrum - ab sofort!

Mitten im Zentrum wartet eine sehr schöne 2 Zimmerwohnung auf Sie!

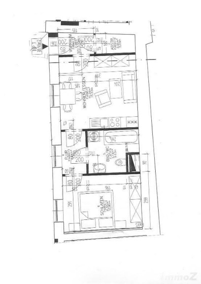
Aufteilung der Wohnung: beim Betreten der Wohnung gelangen Sie in den Flur, der direkt zum Abstellraum führt, dann betreten Sie rechts das Wohnzimmer, in dem sich die Küche mit Essbereich befindet.
Vom Wohnzimmer aus gelangt man weiter ins Badezimmer und ins Schlafzimmer.
Das Badezimmer verfügt über eine Badewanne und eine Toilette.

Das Gebäude liegt in einem Innenhof und ist daher sehr ruhig und Lärm frei.

Zentrales Warmwasser und Innenhoflage runden den Wohnkomfort ab! Das Wohnhaus befindet sich in unmittelbarer Nähe von dem Hotel Weitzer.

Parkmöglichkeiten befinden sich direkt vor dem Haus (blaue Zone).

Die Anbindung an den öffentlichen Verkehr ist optimal, ca. 3 Gehminuten entfernt liegt die Haltestelle Südtirolerplatz/Kunsthaus mit den Straßenbahnlinien 1,4,6 und 7. In 6 Gehminuten ist man direkt am Hauptplatz in der Innenstadt.

Einkaufsmöglichkeiten, Infrastruktureinrichtungen und Grünflächen sind ebenso in der Nähe (Spar, Apotheken, Restaurants, Ärzte/Fachärztezentrum ÖGK, Augarten, Murweg).

Die Miete von € 496,25 inkludiert Betriebskosten, die Heizung von ca. € 84,02 kommt noch extra hinzu.

Eckdaten

Objektnr: O2100166877
Art: Wohnung
Land: Österreich
Zustand: Gepflegt
Gesamtmiete: 496,25
Kaltmiete (netto): 340,00 €
Kaltmiete: 496,25 €
Provision: Provisionsfrei
Betriebskosten: 101,14 €
Wohnfläche: 38,90 m²
Gesamtfläche: 38,90 m²
Zimmer: 2
Heizwärmebedarf:  C  97,00 kWh/m²a
Immobilie merken Exposé

Ausstattung

Parkett, Fernwärme, Einbauküche, Badewanne, Kabel/Satelliten-TV


Internet und TV

Information zur Internet und TV Versorgung hier


Immobilie anfragen


Ihre persönliche Beratung

Adina Omic

Domizil Immobilientreuhänder GmbH

E adina.o@mundwerk-immobilien.at

H 06608199987