Gepflegte 3 Zimmerwohnung, 92 m², Sofortbezug

Wohnung , 1100 Wien

Lage der Immobilie

Nähe Puchsbaumpark

Beschreibung der Immobilie

Lage und Infrastruktur

Zum Verkauf gelangt eine überaus gepflegte Wohnung im 10. Wiener Gemeindebezirk in der Nähe des Puchsbaumparks. In der Nähe befinden Sich mehrere Geschäfte des täglichen Bedarfs, wie ein ETSAN Supermarkt an der Quellenstraße (2 Gehminuten), Billa und Spar an der Kudlichgasse (6-7 Gehminuten) und Lidl und Interspar an der Gudrunstraße (8-9 Gehminuten). Schulen, Kinderbetreuung und Arztpraxen sind ebenfalls in der direkten Umgebung situiert. Zum Naherholungsgebiet Laaer Wald und zum Böhmischen Prater spazieren Sie ca. eine Viertelstunde. 

Die Straßenbahnhaltestelle Schrankenberggasse (Linien 6 und 11) erreichen Sie in vier Gehminuten. Etwas weiter in die gleiche Richtung vorbei am Tenniszentrum Faradaygasse und am Kinderbad Gudrunstraße gelangen Sie zur Straßenbahnstation Absberggasse (Linie D), die u.a. zum Hauptbahnhof Wien führt. Die U1 Station Reumannplatz erreichen Sie in fußläufig in etwa 11 Minuten und kommen auf Ihrem Weg beim Amalienbad vorbei. Das Zentrum Wiens, den Stephansplatz, erreichen sie öffentlich mit der U1 in ca. 24 Minuten.

Objekt und Ausstattung

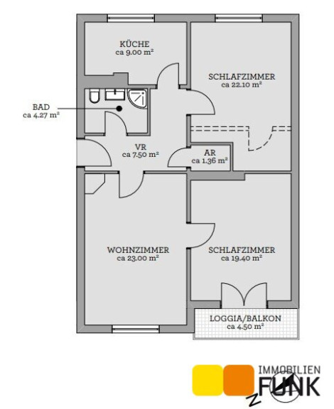
Die Wohnung befindet sich im 2. Liftstock eines im Jahre 1965 errichteten Wohnhauses und bietet Ihnen eine Wohnfläche von ca. 92,24 m². Sie betreten die Wohnung in einem ca. 7,5 m² großen Vorraum mit dunklen Bodenfliesen und der Garderobe. Geradeaus sorgt ein ca. 1,36 m² großer Abstellraum für zusätzlichen Stauraum. Linker Hand haben Sie Zugang zum ca. 4,27 m² großen Badezimmer mit WC, Eckdusche und Waschtisch. Das Badezimmer ist mit hellen Wand- und dunklen Bodenfliesen belegt. Über den Vorraum kommen Sie zur ca. 9 m² großen Küche mit Fenster und Ausblick ins Grüne. Die Küche ist komplett mit Markeneinbauküche, Miele Waschmaschine und Elektrogeräten ausgestattet. Neben der Küche betreten Sie das etwa 22,1 m² große Schlafzimmer mit großem Einbauschrank, begehbarer Garderobe und Fenster zum ruhigen Innenhof. Vom Vorraum aus rechts befindet sich das etwa 23 m² große Wohnzimmer und das zweite, ca. 19,4 m² große Schlafzimmer mit  sonniger Loggia/Balkon Richtung Westen. Die gesamte Wohnung ist mit Holztürstöcken und ansprechenden Innentüren ausgestattet. Geheizt wird mittels Gasetagenheizung. Ein ca. 3 m² großes Kellerabteil ist der Wohnung zugeordnet. 

HINWEIS: die Fotos der Möblierung von Wohnzimmer und der beiden Schlafzimmer sind KI- unterstützt erstellt und verstehen sich als Einrichtungsvorschläge, die nicht Kaufgegenstand sind. Die Einbauküche, Garderobe und der begehbare Schrank sind jedoch im Kaufpreis inkludiert, wie auf den Fotos zu sehen. Machen Sie sich doch selbst ein Bild- gerne führe ich Sie durch diese attraktive Wohnung.

Resümee

Eine sehr gepflegte Wohnung. Ruhige Wohnlage, gute Verkehrsanbindung. Perfekt geeignet für Familien und Freizeitsportler.

Noch nichts gefunden? Wir informieren Sie über geeignete Immobilienangebote noch vor allen anderen.
Legen Sie jetzt Ihren individuellen Suchagenten unter folgendem Link an. Wir schicken Ihnen passende Immobilien exklusiv vorab zu.
Suchagent anlegen - https://funk.service.immo/registrieren/de

Der Vermittler ist als Doppelmakler tätig.

Informationen und Besichtigungen

Herr Prok. Walter Mitterstöger, MA steht Ihnen gerne telefonisch unter +43 1 533 46 44-1 oder per E-Mail unter walter.mitterstoeger@funk.at zur Verfügung.
Immobilien Funk.success in real estate

Infrastruktur / Entfernungen

Gesundheit
Arzt <500m
Apotheke <500m
Klinik <1.000m
Krankenhaus <2.500m

Kinder & Schulen
Schule <500m
Kindergarten <500m
Universität <500m
Höhere Schule <2.500m

Nahversorgung
Supermarkt <500m
Bäckerei <500m
Einkaufszentrum <1.500m

Sonstige
Geldautomat <500m
Bank <500m
Post <500m
Polizei <1.000m

Verkehr
Bus <500m
U-Bahn <1.000m
Straßenbahn <500m
Bahnhof <1.000m
Autobahnanschluss <1.000m

Angaben Entfernung Luftlinie / Quelle: OpenStreetMap

Eckdaten

Objektnr: 4340
Art: Wohnung
Land: Österreich
Baujahr: 1965
Zustand: Gepflegt
Möbliert: Teil
Alter: Neubau
Kaufpreis: 299.000,00
Provision: 10.764,00 € inkl. 20% USt.
Betriebskosten: 179,42 €
MwSt Gesamt: 20,10 €
Wohnfläche: 92,24 m²
Nutzfläche: 92,24 m²
Zimmer: 3
Bäder: 1
WC: 1
Keller: 3,00 m²
Heizwärmebedarf:  B  39,60 kWh/m²a
fGEE:  D  2,12
Immobilie merken Exposé

Ausstattung

Gas, Etagenheizung, Einbauküche, Personenaufzug, Westbalkon


Internet und TV

Information zur Internet und TV Versorgung hier


Immobilie anfragen


Ihre persönliche Beratung

Dr. Funk Immobilien GmbH & Co KG

Prok. Walter Mitterstöger

Dr. Funk Immobilien GmbH & Co KG

E walter.mitterstoeger@funk.at

T +43 1 533 46 44-1

H +43 664 88 73 99 35

F +43 1 533 46 44-4