Perfekt geschnittene 2-Zimmer-Wohnung – modern, hell und nachhaltig
Wohnung
,
1050
Wien
,
Kettenbrückengasse 1
Beschreibung der Immobilie
Das Projekt
Das historische Ensemble in der Kettenbrückengasse 1 steht für ein neues Verständnis von modernem Wohnen. Hier verschmelzen Architektur, Raum und Individualität zu einem außergewöhnlichen Lebenskonzept.
Offene Grundrisse und großzügige Raumstrukturen schaffen Freiraum für persönliche Entfaltung und kreative Gestaltung. Jeder Wohnraum bietet die ideale Bühne, um dem eigenen Stil Ausdruck zu verleihen und die eigene Wohnvision zu realisieren.
Ausstattung
Ehrliche Materialien, klare Linien und großzügige Flächen prägen das Design. Die Ausstattung vereint Ästhetik, Funktionalität und Nachhaltigkeit und schafft ein harmonisches Gesamtbild, das Ruhe und Beständigkeit ausstrahlt.
Natürliche Farben, hochwertige Haptik und durchdachte Details bilden ein zeitloses Interieur – reduziert auf das Wesentliche und perfekt abgestimmt.
Annehmlichkeiten:
- Edler Echtholzparkettboden und Fußbodenheizung
- Design-Ausstattung in den Bädern
- Elektrisch steuerbarer Sonnenschutz
- Moderne technische Features für höchsten Wohnkomfort
Highlights
- 32 exklusive Eigentumswohnungen
- Wohnflächen von ca. 35 bis 152 m²
- 1 bis 4 Zimmer
- Eigengärten, Balkone, Loggien, Terrassen und Dachterrassen
- Hochwertige Designer-Ausstattung
- Zentrale Lage beim Wiener Naschmarkt
- Ausgezeichnete Infrastruktur und urbanes Lebensgefühl
Lage
Dank des vielseitigen Angebots in der unmittelbaren Umgebung bietet diese Lage den wohl größten Luxus des urbanen Lebens: die Freiheit, jeden Tag nach den eigenen Vorstellungen zu gestalten. Der spannende Mix aus modernen Design-Locations und traditionsreichen Häusern schafft eine besondere Atmosphäre und prägt das lebendige Stadtbild.
Zahlreiche Vorteile der Lage:
- Zentrale Position im beliebten 5. Wiener Gemeindebezirk Margareten
- Nur wenige Schritte vom Naschmarkt entfernt
- Hervorragende öffentliche Anbindung
- Lebendiges Viertel mit zahlreichen Lokalen und Cafés
- Vielfältiges Angebot an Kunst, Kultur und Freizeitmöglichkeiten
- Zahlreiche Museen in unmittelbarer Nähe
Öffentliche Verkehrsanbindung:
- Bus: 59A, 13A, 12A
- Straßenbahn: Linie 1
- U-Bahn: U4 – Station Kettenbrückengasse
Sie denken über den Verkauf Ihrer Immobilie nach?
Wir erzielen für Sie den bestmöglichen Preis – professionell, diskret und effizient.
Auf Wunsch kümmern wir uns auch um Finanzierung, Versicherung und alle weiteren Schritte.
Jetzt unverbindlich anfragen!
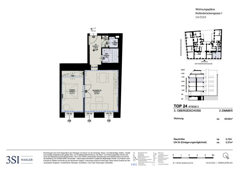
Top 2.24
die moderne 2-Zimmer-Wohnung befindet sich im 3. Obergeschoss und bietet eine Wohnfläche von ca. 49 m². Dank der gut geplanten Raumaufteilung und hochwertigen Ausstattung überzeugt sie mit Komfort, Funktionalität und einem angenehmen Wohnambiente – ideal für Singles oder Paare.
Raumaufteilung:
- Vorraum (ca. 5,5 m²)
- Abstellnische (ca. 1 m²)
- WC (ca. 1 m²)
- Badezimmer mit Badewanne, Handwaschbecken und Waschmaschinenanschluss (ca. 4 m²)
- Wohnküche (ca. 22,5 m²)
- Schlafzimmer (ca. 14 m²)
Nachhaltigkeit & Wohnkomfort
Das Gebäude verbindet zeitlose Architektur mit modernster Nachhaltigkeit. Diese gelungene Kombination aus Tradition, Innovation und Energieeffizienz wurde mit dem DGNB GOLD Nachhaltigkeits-Vorzertifikat ausgezeichnet – ein Zeichen für höchste Qualitäts- und Umweltstandards.
Nachhaltige Highlights:
- Photovoltaikanlage und Fernwärmeversorgung für energieeffizientes Wohnen
- Innovatives Raumklimakonzept für ein gesundes Wohnklima
- Modernste Sicherheitsstandards für maximalen Komfort
Der Verkaufspreis für Eigennutzer beträgt EUR 549.000,00
Der Verkaufspreis für Anleger beträgt EUR 511.100,00. zzgl. 20% USt.
Nebenkosten
Der guten Ordnung halber halten wir fest, dass, sofern im Angebot nicht anders vermerkt, bei erfolgreichem Abschlussfall eine Provision anfällt, die den in der Immobilienmaklerverordnung BGBI. 262 und 297/1996 festgelegten Sätzen entspricht – das sind 3 % des Kaufpreises zzgl. 20% USt. Diese Provisionspflicht besteht auch dann, wenn Sie die Ihnen überlassenen Informationen an Dritte weitergeben. Letztlich weisen wir darauf hin, dass wir als Doppelmakler tätig sind und ein familiäres/wirtschaftliches Naheverhältnis zwischen der 3SI Makler GmbH und der Verkäuferin besteht.
Die Vertragserrichtung und Treuhandabwicklung ist gebunden an die Schönherr Rechtsanwälte GmbH, Schottenring 19, 1010 Wien. Die Kosten betragen 1,5 % des Kaufpreises zzgl. 20 % USt. sowie Barauslagen und Beglaubigung. Bei Fremdfinanzierung erhöht sich das Honorar auf 1,8 % vom Kaufpreis zzgl. Barauslagen und Beglaubigung.
Wir weisen darauf hin, dass zwischen dem Vermittler und dem zu vermittelnden Dritten ein familiäres oder wirtschaftliches Naheverhältnis besteht.
Der Vermittler ist als Doppelmakler tätig.
Infrastruktur / Entfernungen
Gesundheit
Arzt <100m
Apotheke <225m
Klinik <100m
Krankenhaus <675m
Kinder & Schulen
Schule <250m
Kindergarten <150m
Universität <250m
Höhere Schule <375m
Nahversorgung
Supermarkt <250m
Bäckerei <150m
Einkaufszentrum <575m
Sonstige
Geldautomat <275m
Bank <475m
Post <75m
Polizei <400m
Verkehr
Bus <100m
U-Bahn <350m
Straßenbahn <425m
Bahnhof <375m
Autobahnanschluss <3.400m
Angaben Entfernung Luftlinie / Quelle: OpenStreetMap
Eckdaten
| Kaufpreis: | 549.000,00 € |
| Fläche: | 48,63 m² |
| Zimmer: | 2 |
Basisdaten zur Immobilie
| Objektnr: | 21371 |
| Art: | Wohnung |
| Land: | Österreich |
| Baujahr: | 2024 |
| Zustand: | Erstbezug |
| Alter: | Altbau |
| Kaufpreis: | 549.000,00 € |
| Kaufpreis / m²: | auf Anfrage |
| Provision: | 3% des Kaufpreises zzgl. 20% USt. |
| Betriebskosten: | 123,22 € |
| MwSt Gesamt: | 12,32 € |
| Wohnfläche: | 48,63 m² |
| Nutzfläche: | 48,63 m² |
| Gesamtfläche: | 48,63 m² |
| Zimmer: | 2 |
| Bäder: | 1 |
| WC: | 1 |
| Heizwärmebedarf: | C 91,60 kWh/m²a |
| fGEE: | C 1,40 |
Ausstattung
Fliesen, Parkett, Alternativ, Fernwärme, Fußbodenheizung, Wohnküche / offene Küche, Personenaufzug, Badewanne
Internet und TV
Information zur Internet und TV Versorgung hier
Ihre persönliche Beratung
Gerhard Klein
3SI Makler GmbH
g.klein@3si.at
+43 1 607 58 58 - 50
+43 699 128 700 88
F +43 1 607 55 80
