Erstbezug! DG-Maisonette mit Terrasse - Nähe Kutschkermarkt
Wohnung
- Maisonette,
1180
Wien
Beschreibung der Immobilie
Eckdaten
| Kaufpreis: | 985.000,00 € |
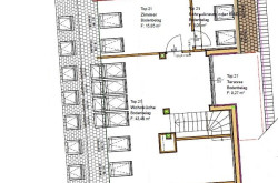
| Fläche: | 100,00 m² |
| Zimmer: | 3 |
Basisdaten zur Immobilie
| Objektnr: | 141/84379 |
| Art: | Wohnung - Maisonette |
| Land: | Österreich |
| Kaufpreis: | 985.000,00 € |
| Provision: | 3% |
| Wohnfläche: | 100,00 m² |
| Zimmer: | 3 |
| Bäder: | 1 |
| WC: | 1 |
| Terrassen: | 1 |
| Heizwärmebedarf: | C 66,10 kWh/m²a |
| fGEE: | C 1,39 |
Internet und TV
Information zur Internet und TV Versorgung hier
Ihre persönliche Beratung
Veronika Vollmann
Rustler Immobilientreuhand
vvollmann@rustler.eu
+43 676 834 34667
+43 676 834 34 667
