Erstbezug! Dachgeschosswohnung mit Freifläche in bester Lage - Nähe Kutschkermarkt
Wohnung
- Dachgeschoß,
1180
Wien
Beschreibung der Immobilie
Eckdaten
| Kaufpreis: | 580.000,00 € |
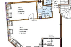
| Fläche: | 57,61 m² |
| Zimmer: | 2 |
Basisdaten zur Immobilie
| Objektnr: | 141/84380 |
| Art: | Wohnung - Dachgeschoß |
| Land: | Österreich |
| Kaufpreis: | 580.000,00 € |
| Provision: | 3% |
| Wohnfläche: | 57,61 m² |
| Zimmer: | 2 |
| Bäder: | 1 |
| WC: | 1 |
| Heizwärmebedarf: | C 66,10 kWh/m²a |
| fGEE: | C 1,39 |
Internet und TV
Information zur Internet und TV Versorgung hier
Ihre persönliche Beratung
Veronika Vollmann
Rustler Immobilientreuhand
vvollmann@rustler.eu
+43 676 834 34667
+43 676 834 34 667
