Attraktive Anlegerwohnung mit Schlossbergblick – Retro-Flair in Toplage von Graz
Wohnung
,
8010
Graz
,
Münzgrabenstraße 205
Lage der Immobilie
In unmittelbarer Nähe der Liegenschaft befinden sich diverse Lebensmittelgeschäfte, Restaurants, Drogeriemärkte, Bank, Apotheke und auch das Shopping-Center „Murpark“, erreichen Sie innerhalb kürzester Zeit fußläufig. Die Verkehrsanbindung vor Ort ist ein Hit, denn in nur wenigen Minuten erreichen Sie die Straßenbahnlinie 4 und die Haltestelle der Linie 66. Zudem erreichen Sie innerhalb kürzester Zeit den Grazer-Ostbahnhof und die Autobahnauffahrt Graz-Ost. Eine große Auswahl an Freizeitaktivitäten steht Ihnen in dieser Umgebung zur Verfügung; ein Fitnesscenter, die Merkur Arena, die Grazer Stadthalle mit dem Messezentrum, oder der beliebte ORF Park. Dies sind nur einige der abwechslungsreichen Möglichkeiten, die Ihnen hierorts geboten werden.Beschreibung der Immobilie
Der Balkon bietet einen atemberaubenden Blick auf den Schlossberg und den Schöckl – ein Anblick, den Sie jeden Tag genießen können!
Das Besondere an dieser Wohnung ist ihr Originalzustand aus den 70er Jahren, der Retro-Liebhaber begeistern wird, völlig unbeschädigt oder abgewohnt. Die Original-Kastenparkettböden in Buche-Ahorn und Fliesen aus vergangener Zeit, verleihen der Wohnung einen unverwechselbaren Charme und eine warme Atmosphäre.
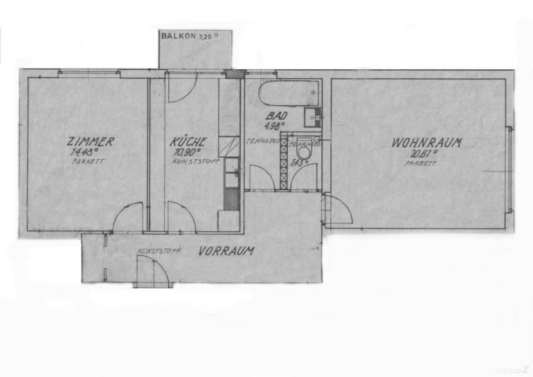
Die Raumaufteilung umfasst einen Vorraum, ein Badezimmer mit separatem WC, eine Küche mit Balkon, ein Schlafzimmer sowie ein großzügiges Wohnzimmer.
Das Haus selbst wurde komplett generalsaniert, inklusive Fassade, Fenster und Balkone, sodass Sie sich auf ein modernes und gepflegtes Wohnumfeld freuen können.
Ein geräumiges Kellerabteil bietet Ihnen zusätzlichen Stauraum für Ihre persönlichen Gegenstände.
Die Wohnung ist derzeit auf 3 Jahre befristet vermietet – eine ideale Gelegenheit für Anleger, die Wert auf sofortige Mieteinnahmen und planbare Erträge legen. Die bestehende Vermietung sorgt für eine stabile Einnahmensituation und macht das Objekt besonders interessant für Investoren mit Weitblick.
Kostenangaben zzgl. Heizkosten (bisher ca. € 83,- inkl. 20% MwSt.). Diese werden nach tatsächlichem Bedarf abgerechnet.
Nutzen Sie diese einzigartige Gelegenheit und kaufen Sie diese charmante Wohnung mit Retro-Flair! Vereinbaren Sie noch heute einen Besichtigungstermin und lassen Sie sich von ihrem einzigartigen Charme überzeugen.
Weitere Informationen
Reichert Immobilien agiert als Doppelmakler und vertritt die Interessen von Käufer- und Verkäuferseite gleichermaßen.
Eckdaten
| Objektnr: | O2100166919 |
| Art: | Wohnung |
| Land: | Österreich |
| Baujahr: | 1970 |
| Möbliert: | Teil |
| Alter: | Neubau |
| Kaufpreis: | 155.000,00 € |
| Provision: | 3 % zzgl. 20% MwSt. vom Gesamtkaufpreis |
| Betriebskosten: | 219,11 € |
| Wohnfläche: | 63,00 m² |
| Gesamtfläche: | 63,00 m² |
| Zimmer: | 2 |
| Balkone: | 1 |
| Keller: | 4,50 m² |
| Heizwärmebedarf: | C 57,31 kWh/m²a |
Ausstattung
Parkett, Fernwärme, Einbauküche, Personenaufzug, Badewanne, Kabel/Satelliten-TV
Internet und TV
Information zur Internet und TV Versorgung hier
Ihre persönliche Beratung
Elisabeth Preitler
Reichert Immoblien GmbH. & Co KG
E e.preitler@reichert-immobilien.at
H +43 676 / 6215664
