Helle 2-Zimmer-Wohnung mit Balkon in Fohnsdorf
Wohnung
,
8753
Fohnsdorf
Lage der Immobilie
Diese Wohnung befindet sich in zentraler und zugleich ruhiger Lage von Fohnsdorf. Geschäfte, Apotheke, Ärzte sowie Kindergarten und Schulen sind in wenigen Minuten erreichbar. Die umliegenden Städte Judenburg, Zeltweg und Knittelfeld liegen nur eine kurze Autofahrt entfernt.
Die Umgebung bietet zahlreiche Freizeitmöglichkeiten, darunter Spazier- und Radwege sowie die nahe gelegene Therme Aqualux. Eine gute Lage für alle, die eine ruhige Wohnumgebung mit praktischer Nähe zu den Einrichtungen des täglichen Bedarfs schätzen.
Beschreibung der Immobilie
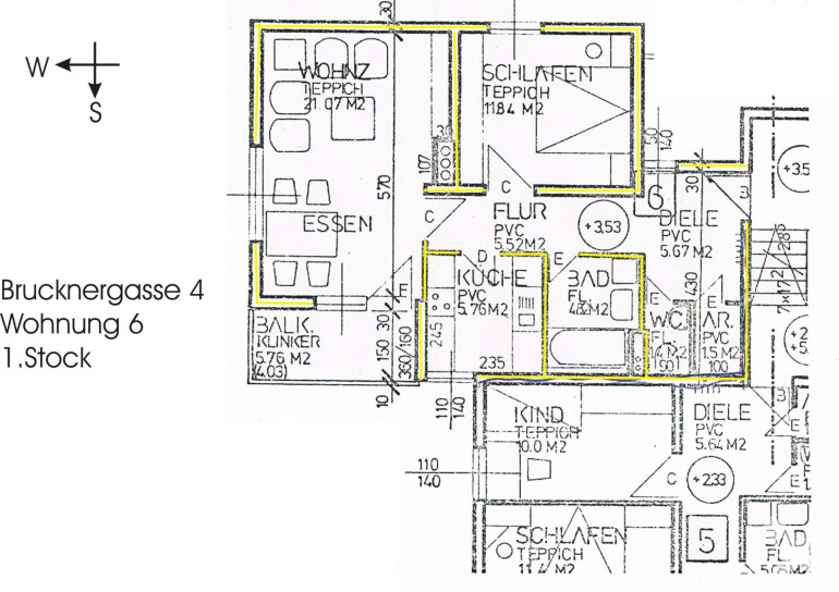
Diese Wohnung befindet sich im 1. Stock eines Mehrparteienhauses in zentraler und zugleich ruhiger Lage von Fohnsdorf. Sie bietet eine Wohnfläche von ca. 57,54 m² und einen nach Süden ausgerichteten Balkon, der für angenehme Sonnenstunden sorgt.
Raumaufteilung:
- Ess- und Wohnzimmer: 21,07 m²
- Schlafzimmer: 11,84 m²
- Küche: 5,76 m²
- Bad: 4,82 m²
- WC: 1,40 m²
- AR: 1,50 m²
- Flur: 5,52 m²
- Diele: 5,67 m²
- Balkon (südseitig): 5,76 m²
Die Wohnung eignet sich gut für Singles und Paare die eine ruhige Lage mit Nähe zu den Einrichtungen des täglichen Bedarfs suchen.
Überzeugen Sie sich selbst und vereinbaren Sie einen Besichtigungstermin!
Eckdaten
| Gesamtmiete: | 570,00 € |
| Fläche: | 57,54 m² |
| Zimmer: | 2 |
Basisdaten zur Immobilie
| Objektnr: | 0005004768 |
| Art: | Wohnung |
| Land: | Österreich |
| Gesamtmiete: | 570,00 € |
| Kaltmiete (netto): | 370,00 € |
| Kaltmiete: | 547,02 € |
| Betriebskosten: | 112,76 € |
| Heizkosten: | 64,26 € |
| Wohnfläche: | 57,54 m² |
| Nutzfläche: | 57,54 m² |
| Gesamtfläche: | 57,54 m² |
| Zimmer: | 2 |
| Bäder: | 1 |
| WC: | 1 |
| Balkone: | 1 |
| Keller: | 9,00 m² |
Internet und TV
Information zur Internet und TV Versorgung hier
Ihre persönliche Beratung
Frank Leitgab
Raiffeisen Steiermark
frank.leitgab@rlbstmk.at
22741
+43 664 855 02 44
