Lage der Immobilie
Nahe Nußdorfer StraßeBeschreibung der Immobilie
Diese kleine und feine Altbauwohnung eines gepflegten Hauses steht ab sofort zum Kauf.
Wir bitten um eine schriftliche Anfrage, am besten über den "Anfragebutton". Wir danken für Ihr Verständnis.
Anfragen werden von uns üblicherweise binnen 12h beantwortet.
Aufgrund der mitgesendeten Unterlagen und Links, landen wir leider oft im Spam-Filter.
Bitte kontrollieren Sie diesen auf Mails von alfred(at)kiesling-immobilien.at.
Die schöne 1-Zimmer-Wohnung eignet sich ideal als Stadtwohnung sowie als Wohnung für Singles oder Studenten!
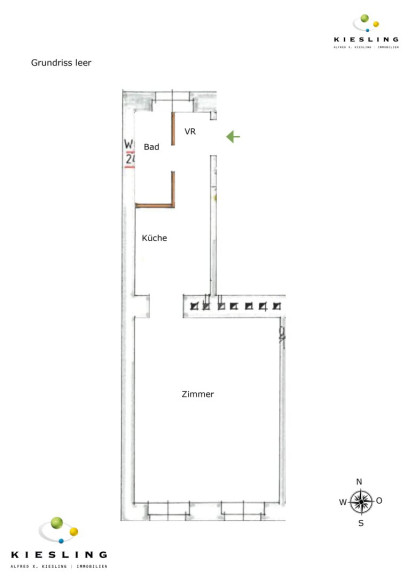
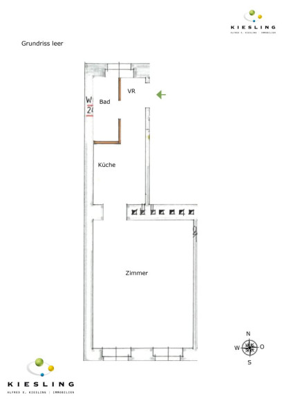
Sie befindet sich 3. Liftstock ist folgendermaßen aufgeteilt über:
- Vorraum
- Badezimmer mit WC
- Küche
- Zimmer
- Abstellraum am Gang mit Waschmaschinenanschluss
- Kellerabteil
Der kleine Vorraum mit Fenster führt Sie zum Badezimmer und durch die Küche zum Wohn-Ess-Schlafzimmer. Das Badezimmer ist modern hergerichtet und lichtdurchflutet. Hier befindet sich ein Waschbecken, WC und eine Dusche. Die Küche ist ausgestattet mit Herd, Ofen, Waschbecken und Kühlschrank. Das Zimmer ist südseitig ausgerichtet, ist hell und einladend. Hier haben Sie die Möglichkeiten, ihren feinen Wohlfühlbereich nach Belieben einzurichten! Ausblick haben Sie auf die gegenüberliegenden schönen Altbauten.
Am Gang, direkt gegenüber der Eingangstüre, befindet sich ein Abstellraum mit Waschmaschinenanschluss, welcher der Wohnung zugeordnet ist.
Der Lift bringt Sie in den dritten Stock.
Lagebeschreibung:
Die Liegenschaft auf welcher sich die Wohnung befindet, ist in einer überdurchschnittlich guten Lage und weist eine gute Verkehrsanbindung, Nahversorgung sowie Infrastruktur auf. Genauere Information können Sie dem Lageprofil nach Ihrer Anfrage.
Die Anbindung an den öffentlichen Verkehr ist gut. In nur wenigen Gehminuten erreichen Sie die U-Bahnstation Nußdorfer Straße.
Straßenbahn: 37, 38 Nußdorfer Straße rd. 380m
Bus: 37A, 40A Sternwartestraße r. 220m
U-Bahn: U6 Nußdorfer Straße rd. 300m
Lokalbahnhof: S40 Franz-Josefs-Bahnhof rd. 1km
Nahversorgung, Infrastruktur und ärztliche Versorgung:
Die Nahversorgung ist fußläufig sehr gut gesichert.
Bäckerei, Supermarkt, Drogerie: rd. 230m - 320m
Trafik, Bank, Postfiliale: rd. 210-600m
Div. ärztliche Versorgung: Allgemeinmediziner rd. 90m, Zahnarzt rd. 220m, Apotheke rd. 270m, Tierarzt rd. 400m
Restaurants, Bars und Lokale befinden sich ebenfalls in naher Gehweite 20m-400m
Die Vorschreibung der Hausverwaltung beläuft sich auf € 117,96 und gliedert sich folgendermaßen auf:
Betriebskosten € 58,87 netto zzgl. 10% Ust (€ 5,88) gesamt € 64,76 brutto
Betriebskosten Lift € 16,08 netto zzgl. 10% Ust (€ 1,61) gesamt € 17,69 brutto
Rücklage € 35,51 netto zgl. 0% Ust gesamt €35,51 brutto
Der Rücklagenstand per November 2025 beträgt ca. € 48.000,-
Bei Vertragsabschluss (Schriftform vorausgesetzt) fallen folgende Kosten bar an:
Kaufpreis 168.000,00 €
Eintragungsgebühr 1.848,00 €**
Grunderwerbssteuer 5.880,00 €
Provision 6.048,00 €
Gesamt* 181.776,00 €
*zzgl. Vertragserrichtung & Durchführung
**Eintragungsgebühr ist derzeit abgeschafft (bis 06/2026). Voraussetzung: es wird Hauptwohnsitz im neuen Eigenheim für zumindest 5 Jahre begründet
Ein Energieausweis mit der Klasse B mit einem Heizwärmebedarf von 27,57 kWh/m2a wurde übergeben. Es wird ausdrücklich festgehalten, dass vom Verwmittler keine Haftung für die Richtigkeit und die Höhe des Energieausweises übernommen wird. Der tatsächliche Energieverbrauch ist abhängig vom individuellen Nutzerverhalten.
Wir weisen darauf hin, dass zwischen dem Vermittler und dem zu vermittelnden Dritten ein familiäres oder wirtschaftliches Naheverhältnis besteht.
Der Vermittler ist als Doppelmakler tätig.
Infrastruktur / Entfernungen
Gesundheit
Arzt <500m
Apotheke <500m
Klinik <500m
Krankenhaus <1.000m
Kinder & Schulen
Schule <500m
Kindergarten <500m
Universität <500m
Höhere Schule <500m
Nahversorgung
Supermarkt <500m
Bäckerei <500m
Einkaufszentrum <2.000m
Sonstige
Geldautomat <500m
Bank <500m
Post <500m
Polizei <1.000m
Verkehr
Bus <500m
U-Bahn <500m
Straßenbahn <500m
Bahnhof <500m
Autobahnanschluss <1.500m
Angaben Entfernung Luftlinie / Quelle: OpenStreetMap
Eckdaten
| Objektnr: | 3729 |
| Art: | Wohnung |
| Land: | Österreich |
| Kaufpreis: | 168.000,00 € |
| Betriebskosten: | 58,87 € |
| MwSt Gesamt: | 7,50 € |
| Wohnfläche: | 32,45 m² |
| Zimmer: | 1 |
| Bäder: | 1 |
| WC: | 1 |
| Heizwärmebedarf: | D 79,00 kWh/m²a |
Ausstattung
Fliesen, Parkett, Einbauküche, Personenaufzug, Dusche
Internet und TV
Information zur Internet und TV Versorgung hier
Ihre persönliche Beratung
Alfred Xaver Kiesling
Alfred X. Kiesling - Immobilien
Alfred@kiesling-immobilien.at
0664 16 45 458
+ 43 664 16 45 45 8
