Grundstück in beliebter Hanglage in Klaus mit Altbestand
Grundstück
- Baugrund Eigenheim,
6833
Klaus
,
Bruderhof 12
Lage der Immobilie
In Klaus, am begehrten Bruderhof 12, erwartet Sie ein Grundstück, das Ruhe, Privatsphäre und Weitblick vereint. Die sonnige Hanglage bietet eine unvergleichliche Aussicht über das Rheintal – ein Ort, an dem man die Seele baumeln lassen kann. Trotz der idyllischen Ruhe genießen Sie hier eine hervorragende Infrastruktur: Einkaufsmöglichkeiten, Schulen, Kindergarten und Apotheke sind nur wenige Minuten entfernt. Freizeitmöglichkeiten wie Wander- und Radwege, nahegelegene Berg- und Skigebiete, sowie gemütliche Gastronomiebetriebe laden zum Genießen ein. Eine gute Anbindung an den öffentlichen Verkehr und die Autobahn garantiert Mobilität und kurze Wege – ideal für Familien und Berufstätige mit gehobenem Anspruch. Hier verbinden sich Natur und Komfort zu einer einmaligen Wohnlage in einer der begehrtesten Regionen Vorarlbergs.Beschreibung der Immobilie
Ihr Platz für Visionen & Wohnträume
Willkommen auf ca. 910 m² Lebensqualität. Ein Grundstück, das Raum für Ideen schafft.
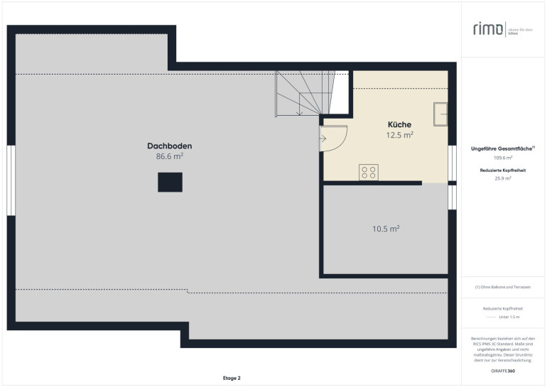
Das Anwesen ist mit einem Altbestand aus dem Jahr 1966 bebaut. Dieser befindet sich in einem renovierungsbedürftigen Zustand, überzeugt jedoch mit einem durchdachten Grundriss und großzügigem Platzangebot für individuelle Gestaltungsmöglichkeiten.
Details & Highlights:
- Gesamtgröße: ca. 910 m²
- Unter- & Obergeschoss: je ca. 106 m²
- Dachgeschoss: ca. 106 m², perfekt für eine Wohnflächenerweiterung
- Kellergeschoss (UG): ca. 106 m², mit direktem Zugang zum großen Garten (ca. 686 m²)
- Dienstbarkeitsrecht am Rand des Grundstücks – keine relevante Beeinträchtigung der Nutzung
- PV-Anlage vorhanden
(Dokumente zur DBK liegen vor)
Hier trifft Panoramalage auf Gestaltungsfreiheit. Ob, modernes Familienhaus oder stilvoller Rückzugsort: Dieses Grundstück bietet die Basis für Ihr persönliches Traumdomizil.
Das Wichtigste auf einen Blick
- Toplage in Klaus – Bruderhof mit einzigartiger Aussicht
- Altbestand mit Ausbaupotenzial
- Grundstücksgröße: ca. 910 m²
- UG + OG je ca. 106 m²
- DG ca. 106 m² – ideal für Ausbau
- Großer Garten mit Südwest-Ausrichtung
- Dienstbarkeitsrecht vorhanden, ohne Einschränkung der Nutzung
- PV-Anlage vorhanden
Ihr Ort zum Ankommen, Wohlfühlen und Träumen – gestalten Sie Ihr exklusives Zuhause in einer der besten Lagen von Klaus!
Unsere Angaben beziehen sich auf die Auskünfte des Eigentümers. Irrtum und Änderungen vorbehalten.
Die Maße und Angaben der Grundrisse sind ungefähre Angaben. Sie dienen nur zur Veranschaulichung.
Ein Energieausweis wurde beauftragt.
Noch nichts gefunden? Wir informieren Sie über geeignete Immobilienangebote noch vor allen anderen.
Legen Sie jetzt kostenlos Ihren individuellen Suchagenten unter folgendem Link an. Wir schicken Ihnen passende Immobilien exklusiv vorab zu.
Suchagent anlegen
Hinweis gemäß Energieausweisvorlagegesetz: Ein Energieausweis wurde vom Eigentümer bzw. Verkäufer, nach unserer Aufklärung über die generell geltende Vorlagepflicht, sowie Aufforderung zu seiner Erstellung noch nicht vorgelegt. Daher gilt zumindest eine dem Alter und der Art des Gebäudes entsprechende Gesamtenergieeffizienz als vereinbart. Wir übernehmen keinerlei Gewähr oder Haftung für die tatsächliche Energieeffizienz der angebotenen Immobilie.
Der Vermittler ist als Doppelmakler tätig.
Infrastruktur / Entfernungen
Gesundheit
Arzt <950m
Apotheke <1.475m
Krankenhaus <5.825m
Kinder & Schulen
Schule <500m
Kindergarten <550m
Höhere Schule <2.675m
Universität <9.600m
Nahversorgung
Supermarkt <950m
Bäckerei <450m
Einkaufszentrum <4.725m
Sonstige
Bank <425m
Geldautomat <425m
Post <850m
Polizei <2.675m
Verkehr
Bus <275m
Bahnhof <2.050m
Autobahnanschluss <2.225m
Flughafen <8.825m
Angaben Entfernung Luftlinie / Quelle: OpenStreetMap
Eckdaten
| Kaufpreis: | 749.000,00 € |
| Fläche: | 910,00 m² |
Basisdaten zur Immobilie
| Objektnr: | 5681/584 |
| Art: | Grundstück - Baugrund Eigenheim |
| Land: | Österreich |
| Baujahr: | 1966 |
| Zustand: | Sanierungsbeduerftig |
| Alter: | Altbau |
| Kaufpreis: | 749.000,00 € |
| Provision: | 3% des Kaufpreises zzgl. 20% USt. |
| Grundstücksfl.: | 910,00 m² |
| Bäder: | 1 |
| WC: | 1 |
| Stellplätze: | 2 |
| Garten: | 686,00 m² |
Ausstattung
Parkett, Fliesen, Öl, Einbauküche, Bad mit Fenster, Badewanne, Garage, Parkplatz
Internet und TV
Information zur Internet und TV Versorgung hier
Ihre persönliche Beratung
Daniel Marte
Rimo Immobilien GmbH
info@rimo.at
+43 5522 39303 28
