Vermietete Moderne 3-Zimmer Eigentumswohnung inkl. Carportabstellplatz in Leibnitz!
Wohnung
,
8430
Leibnitz
,
Schubert Straße 39
Lage der Immobilie
Zuhause, in der wunderschönen Südsteiermark! Die hervorragende Infrastruktur und die vielen verschiedenen Freizeitmöglichkeiten machen Leibnitz zu einem Ort der Begegnung. In unmittelbarer Nähe Ihrer modern designten Erstbezugswohnung befinden sich sämtliche Lebensmittelläden, Trafik, Bank und das Einkaufszentrum "Weinland" sowie Bars und Restaurants. In nur wenigen Gehminuten, erreichen Sie den Bahnhof und die Bushaltestelle der Linie 613, 615 und 616. Sportbegeisterte dürfen sich am Motorikpark-Gamlitz, dem Naturparkzentrum Grottenhof sowie am Sulmsee richtig austoben. Ebenso steht Ihnen ein großzügiges Angebot an Lauf- und Wanderwegen sowie die Freizeitoase "Ankerpunkt" für erholsame Stunden zur Verfügung. Die unzähligen Buschenschänke der südsteirischen Weinstraße bieten Ihnen gaumenfreudige Kulinarik und alles was das Herz begehrt.Beschreibung der Immobilie
Im Weiteren sind der zeitgemäße Grundriss, die Ausrichtung der Wohnung welche für angenehme Lichtverhältnisse sorgt sowie eine Fußbodenheizung nur einige der vielen Vorteile, die dieses Zuhause zu bieten hat.
Hier gelingt es Ihnen, sich ein Stückchen Natur nach Hause zu holen – und zwar auf Ihrer schönen Dachterrasse. Freuen Sie sich auf rund 8 Quadratmeter Nutzfläche unter freiem Himmel mit Blick in die Natur.
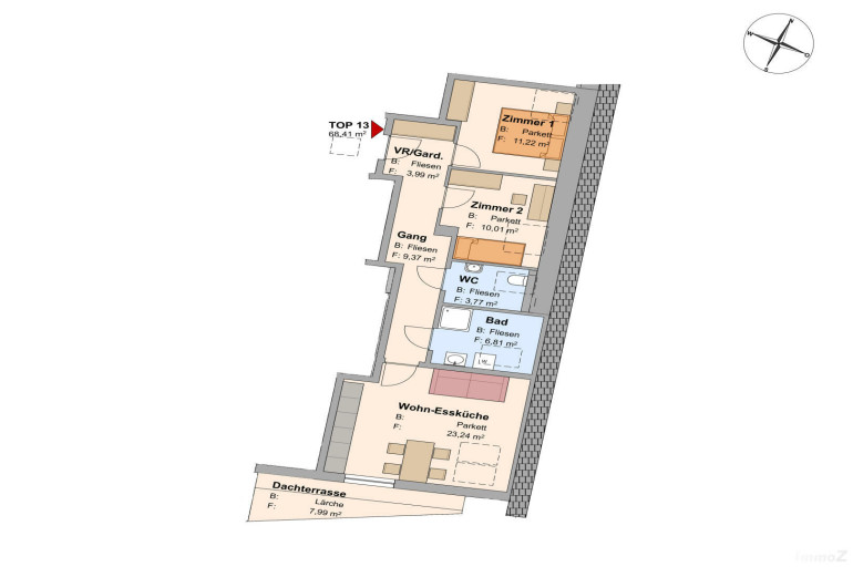
Der äußerst gut durchdachte Grundriss teilt sich wie folgt auf:
Vorraum, Gang, Badezimmer mit ebenerdiger Dusche, WC mit Gästewaschbecken, zwei getrennt begehbare Schlafzimmer, Wohn - Essküche mit Zugang zur südlich ausgerichteten Dachterrasse.
Mit einem fix zugeteilten Carportabstellplatz findet selbst Ihr PKW ein eigenes Zuhause.
Ein Kellerersatzraum steht Ihnen ebenfalls für mehr Stauraum zur Verfügung.
Überzeugt?
Dann vereinbaren Sie gleich Ihren unverbindlichen Besichtigungstermin und lassen Sie sich von uns ausführlich beraten!
****Das bereits bestehende Landes-Darlehen muss mit übernommen werden. Die Rückzahlung erfolgt monatlich.****
Heizkosten
Kostenangaben zzgl. Heizkosten. Diese werden nach tatsächlichem Bedarf abgerechnet.
Wichtiger Hinweis!
Die Wohnung ist derzeit vermietet und könnte Ihnen bis dorthin zur Eigennutzung oder als Anlage dienen! Es wird ausdrücklich ersucht, von unangemeldeten Besuchen Abstand zu nehmen!
Weitere Informationen
Reichert Immobilien agiert als Doppelmakler und vertritt die Interessen von Käufer- und Verkäuferseite gleichermaßen.
Eckdaten
| Objektnr: | O2100166996 |
| Art: | Wohnung |
| Land: | Österreich |
| Baujahr: | 2022 |
| Alter: | Neubau |
| Kaufpreis: | 249.000,00 € |
| Provision: | 3 % zzgl. 20% MwSt. vom Gesamtkaufpreis |
| Betriebskosten: | 126,00 € |
| Wohnfläche: | 68,00 m² |
| Gesamtfläche: | 68,00 m² |
| Zimmer: | 3 |
| Terrassen: | 1 |
| Stellplätze: | 1 |
| Keller: | 2,50 m² |
| Heizwärmebedarf: | B 37,40 kWh/m²a |
| fGEE: | B 0,93 |
Ausstattung
Parkett, Gas, Zentralheizung, Wohnküche / offene Küche, Personenaufzug, Dusche, Bad mit Fenster, Kabel/Satelliten-TV, Carport
Internet und TV
Information zur Internet und TV Versorgung hier
Ihre persönliche Beratung
Elisabeth Preitler
Reichert Immoblien GmbH. & Co KG
E e.preitler@reichert-immobilien.at
H +43 676 / 6215664
