Exklusive Maisonette-Dachgeschosswohnungen im Erstbezug – Stilvoll wohnen in zentraler Lage des 9. Bezirks
Wohnung
- Maisonette,
1090
Wien
Lage der Immobilie
Dieses anspruchsvolle Wohnprojekt befindet sich im Herzen des 9. Bezirks, eingebettet zwischen der Nussdorfer Straße und der Liechtensteinstraße. Diese hervorragende Lage bietet eine ideale Anbindung an die öffentlichen Verkehrsmittel, mit den U-Bahn-Linien U4 (Spittelau) und U6 (Nussdorfer Straße) sowie den Straßenbahnlinien 1, 33, 37, 38 und den Buslinien 35A und 37A. Das Stadtzentrum Wiens und bekannte Hotspots wie Schwedenplatz, Karlsplatz und Wien Mitte sind schnell zu erreichen.Beschreibung der Immobilie
Lassen Sie Sich von unserer 360°- 3D Besichtigung überzeugen - Von der Parkbank, vom Sofa oder auch vom Bett, gemütlich über Handy, Tablett, Computer oder Ihrem Internetfähigen Fernseher.
360°- 3D Besichtigung Link:
https://my.matterport.com/show/?m=HKkpgsUrpTC
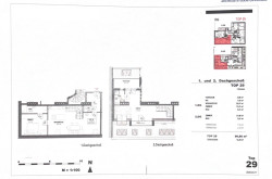
Zum Verkauf stehen drei stilvolle Dachgeschosswohnungen, die soeben fertiggestellt wurden und Erstbezug-Charakter bieten. Die Wohnflächen reichen von etwa 53 m² bis 101 m² und verteilen sich auf 2 bis 3 Zimmer. Besonders attraktiv: Fast alle Einheiten verfügen über großzügige Außenflächen in Form von Terrassen oder Balkonen ab 6,5 m², die ein luftiges und großzügiges Wohngefühl schaffen. Die Wohnungen erstrecken sich über zwei Ebenen im Maisonette-Stil, was für einen modernen und eleganten Wohncharakter sorgt.
Die schlüsselfertig übergebenen Wohnungen glänzen mit einer Vielzahl hochwertiger Ausstattungsmerkmale:
-
Fußbodenheizung und Kühlung durch eine energieeffiziente Luftwärmepumpe
-
Hochwertiges Parkett in den Wohnräumen und großformatige Fliesen in den Nassbereichen
-
Weiße, elegante Innentüren und schalldichte Sicherheits-Wohnungstüren
-
Isolierverglaste Kunststofffenster für optimalen Lärmschutz
-
Modern ausgestattete Küchen und hochwertige Sanitäreinrichtungen
Highlights:
-
Wohnen in einem charmanten Gründerzeithaus
-
Attraktive zentrale Lage mit erstklassiger Verkehrsanbindung
-
Perfekt für Kulturliebhaber: Volksoper und weitere kulturelle Hotspots in der Nähe
-
Vielfältige Freizeit- und Naherholungsmöglichkeiten in der Umgebung
Dieses außergewöhnliche Angebot kombiniert modernes Wohnen mit klassischem Charme – lassen Sie sich diese Gelegenheit nicht entgehen! Kontaktieren Sie uns für weitere Informationen oder zur Vereinbarung eines Besichtigungstermins.
"BITTE BEACHTEN SIE, DASS WIR AUFGRUND DER NACHWEISPFLICHT GEGENÜBER DEM EIGENTÜMER NUR ANFRAGEN MIT VOLLSTÄNDIGER ANGABE DER ANSCHRIFT UND ANGABEN ZUR PERSON (NAME, TELEFON, E-MAIL) BEARBEITEN KÖNNEN."
Hinweis gemäß Energieausweisvorlagegesetz: Ein Energieausweis wurde vom Eigentümer bzw. Verkäufer, nach unserer Aufklärung über die generell geltende Vorlagepflicht, sowie Aufforderung zu seiner Erstellung noch nicht vorgelegt. Daher gilt zumindest eine dem Alter und der Art des Gebäudes entsprechende Gesamtenergieeffizienz als vereinbart. Wir übernehmen keinerlei Gewähr oder Haftung für die tatsächliche Energieeffizienz der angebotenen Immobilie.
Wir weisen darauf hin, dass zwischen dem Vermittler und dem zu vermittelnden Dritten ein familiäres oder wirtschaftliches Naheverhältnis besteht.
Der Vermittler ist als Doppelmakler tätig.
Infrastruktur / Entfernungen
Gesundheit
Arzt <500m
Apotheke <500m
Klinik <500m
Krankenhaus <1.500m
Kinder & Schulen
Schule <500m
Kindergarten <500m
Universität <500m
Höhere Schule <1.000m
Nahversorgung
Supermarkt <500m
Bäckerei <500m
Einkaufszentrum <2.000m
Sonstige
Geldautomat <500m
Bank <500m
Post <500m
Polizei <500m
Verkehr
Bus <500m
U-Bahn <500m
Straßenbahn <500m
Bahnhof <500m
Autobahnanschluss <1.500m
Angaben Entfernung Luftlinie / Quelle: OpenStreetMap
Eckdaten
| Kaufpreis: | 803.000,00 € |
| Fläche: | 96,60 m² |
| Zimmer: | 3 |
Basisdaten zur Immobilie
| Objektnr: | 55344 |
| Art: | Wohnung - Maisonette |
| Land: | Österreich |
| Baujahr: | 2023 |
| Zustand: | Erstbezug |
| Kaufpreis: | 803.000,00 € |
| Provision: | 3% des Kaufpreises zzgl. 20% USt. |
| Wohnfläche: | 96,60 m² |
| Zimmer: | 3 |
| Bäder: | 2 |
| WC: | 2 |
| Terrassen: | 2 |
Ausstattung
Fliesen, Parkett, Fußbodenheizung, Personenaufzug, Nordbalkon, Südbalkon, Dusche, Kabel/Satelliten-TV
Internet und TV
Information zur Internet und TV Versorgung hier
Ihre persönliche Beratung
Philipp Stummer
Real Immo Wien Immobilientreuhand - Inh. Gerald Frank
stummer@realimmo.wien
+4315120488
+4366499651213
