Lage der Immobilie
U2 ASPERNSTRASSEBeschreibung der Immobilie
-
TOP-LAGE MIT AUSGEZEICHNETER INFRASTRUKTUR:
Die U2 Aspernstraße ist in nur 2–3 Minuten zu Fuß erreichbar, das Klinikum Donaustadt und der Campus Donaustadt nur eine Station entfernt (3 Min. Fahrzeit) bzw. 10 Minuten zu Fuß.
Ideal für Eigennutzer, die umweltfreundlich und ohne Stau mit den Öffis unterwegs sind, sowie für Investoren, die von hoher Mietnachfrage durch Studierende und medizinisches Personal profitieren möchten.
-
PROJEKT:
In der Nähe der U2-Station „Aspernstraße“ wurden 16 topmoderne Neubauwohnungen mit großzügigen Außenflächen (Terrassen/Balkone/Gärten) sowie 10 Tiefgaragen-Stellplätzen errichtet und stehen ab sofort zum Verkauf.
Die 2- bis 3-Zimmer-Wohnungen sind so konzipiert, dass sie weder zu groß (und damit zu teuer) sind, noch zu klein wirken – vielmehr bieten sie ausreichend Platz und gleichzeitig großzügige Außenflächen wie Balkone, Terrassen und Gärten.
Damit finden Eigennutzer ein gemütliches Zuhause und Anleger eine perfekte Geldanlage (kaufen und vermieten), die durch die U2 "Aspernstraße" zahlreiche Wohnungssuchende anzieht – insbesondere aus dem Donauspital-Umfeld und der UNI-Campus-Klientel.
Das Gebäude (Baujahr 2024/25) überzeugt durch hochwertige Ausstattung, modernes Design und zeitgemäße Technik, die höchsten Wohnkomfort garantieren.
-----------------------------
-
WOHNUNGEN:
-----------------------------
GARTENWOHNUNGEN:
-
TOP 1: Verkauft!
-
TOP 2: Verkauft!
-
TOP 3: Verkauft!
-
TOP 4: Verkauft!
-----------------------------
1. STOCK:
-
TOP 5: Verkauft!
-
TOP 6: ca. 47,50 m² (2 Zimmer) + Balkon ca. 7,57 m², Kaufpreis: EUR 329.000
-
TOP 7: Verkauft!
-
TOP 8: Verkauft!
-
TOP 9: Verkauft!
-----------------------------
1. DACHGESCHOSS:
-
TOP 10: Verkauft!
-
TOP 11: Verkauft!
-
TOP 12: Verkauft!
-
TOP 13: Verkauft!
-
TOP 14: Verkauft!
-----------------------------
2. DACHGESCHOSS:
-
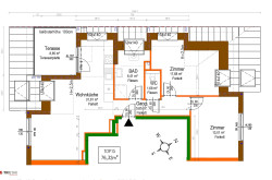
TOP 15: ca. 76,32 m² (3 Zimmer) + Terrasse ca. 9 m², Kaufpreis: EUR 499.000
-
TOP 16: ca. 85 m² (3 Zimmer) + Terrasse ca. 11 m², Kaufpreis: EUR 549.000
-----------------------------
-
EIGENNUTZER/ANLEGER:
Die angegebenen Kaufpreise gelten für Eigennutzer. Anlegerpreise sind ebenfalls verfügbar!
-----------------------------
-
TIEFGARAGENPLÄTZE:
Haben Sie genug von Schmutz und Kratzern durch Straßenparken?
Wir haben die perfekte Lösung für Sie: 10 PKW-Stellplätze stehen Ihnen optional (Gegen Aufpreis) zur Verfügung.
-
PKW-Tiefgaragenplatz 1: EUR 30.000
-
PKW-Tiefgaragenplatz 2: Verkauft!
-
PKW-Tiefgaragenplatz 3: Verkauft!
-
PKW-Tiefgaragenplatz 4: Verkauft!
-
PKW-Tiefgaragenplatz 5: Verkauft!
-
PKW-Tiefgaragenplatz 6: Verkauft!
-
PKW-Tiefgaragenplatz 7: EUR 30.000
-
PKW-Tiefgaragenplatz 8: Verkauft!
-
PKW-Tiefgaragenplatz 9: Verkauft!
-
PKW-Tiefgaragenplatz10: Verkauft!
-----------------------------
-
SYMBIOSE AUS KOMFORT UND LUXUS:
Für ein gemütliches Raumklima sorgt eine Fußbodenheizung, welche von einer effizienten Luft/Wasser-Wärmepumpe versorgt wird.
Zur hochwertigen Ausstattung gehören Eichenparkettböden, Vorbereitung für Klimaanlage, Kunststoff-Alu-Fenster mit 3-fach Isolierverglasung und mit integriertem Sonnenschutz.
----------------------------------------------------
-
HINWEIS:
Die Möblierung auf einzelnen Bildern wurde mittels KI (künstlicher Intelligenz) generiert und dient ausschließlich der Veranschaulichung.
----------------------------------------------------
-
VERMITTLUNGSPROVISION / DOPPELMAKLERTÄTIGKEIT:
Der Ordnung halber wird darauf hingewiesen, dass die Vermittlungsprovision 3 % des Kaufpreises zuzüglich 20 % USt. (insgesamt 3,6 %) beträgt und mit Zustandekommen des vermittelten Rechtsgeschäfts (Annahme des Kaufanbots ohne aufschiebende Bedingungen durch den Verkäufer) fällig wird. Der Makler ist als Doppelmakler tätig.
NEU! • Erstbezug • 2–3 Zimmer • Terrasse • Nähe U2 • 1220 Wien
Wir weisen darauf hin, dass zwischen dem Vermittler und dem zu vermittelnden Dritten ein familiäres oder wirtschaftliches Naheverhältnis besteht.
Der Vermittler ist als Doppelmakler tätig.
Eckdaten
| Kaufpreis: | 499.000,00 € |
| Fläche: | 76,32 m² |
| Zimmer: | 3 |
Basisdaten zur Immobilie
| Objektnr: | 26823 |
| Art: | Wohnung - Dachgeschoß |
| Land: | Österreich |
| Baujahr: | 2023 |
| Zustand: | Erstbezug |
| Alter: | Neubau |
| Kaufpreis: | 499.000,00 € |
| Kaufpreis / m²: | auf Anfrage |
| Provision: | 3% des Kaufpreises zzgl. 20% USt. |
| Wohnfläche: | 76,32 m² |
| Gesamtfläche: | 85,32 m² |
| Zimmer: | 3 |
| Bäder: | 1 |
| WC: | 1 |
| Terrassen: | 1 |
| Heizwärmebedarf: | B 25,20 kWh/m²a |
| fGEE: | A+ 0,63 |
Ausstattung
Fliesen, Parkett, Fußbodenheizung, Personenaufzug, Südbalkon, Bad mit Fenster, Dusche, Tiefgarage
Internet und TV
Information zur Internet und TV Versorgung hier
Ihre persönliche Beratung
TRISTAR Immobilien
TRISTAR Immobilien
tristar@tristar.at
+43 676 901 73 74
