NEU! • Ziegelmassiv • Garten + Terrasse • Keller • PKW inkl.
Haus
- Doppelhaushälfte,
3400
Klosterneuburg
Beschreibung der Immobilie
- PROJEKT:
Zum Verkauf gelangen 6 Doppelhaushälften, welche SCHLÜSSELFERTIG und in TOP Baumeisterqualität (100% Zigelmassiv!) hergestellt sind!
Die unverwechselbaren Doppelhäuser (Baujahr: 2024-2025) erfüllen alle technischen und konstruktiven Standards zeitgemäßen Bauens, bieten durchdachte Grundrisse und entsprechen allen Bedürfnissen des modernen Wohnens!
______
- KELLER + ERDGESCHOSS + OBERGESCHOSS + GARTEN + TERRASSE + PKW STELLPLATZ:
______
HAUS 1: Gesamtfläche: ca. 292,57 m2
- Wohnnutzfläche: ca.121,32 m², 5 ZIMMER
- Gartenfläche: ca. 98,10 m²
- Terrassenfläche (EG): ca. 18,15 m²
- Terrassenfläche (DG): ca. 11,63 m²
- PKW Garagenplatz: ca. 28 m²
- AR 5,69 m²
- Technikraum ca. 10 m²
- Kaufpreis: EUR 999.000 (Schlüsselfertig!)
______
HAUS 2: Gesamtfläche: ca. 307 m2
- Wohnnutzfläche: ca.120,05 m², 5 ZIMMER + KELLER mit Fußbodenheizung
- Gartenfläche: ca. 126 m²
- Terrasse EG: ca. 22 m²
- Terrasse DG: ca. 12,58 m²
- PKW Parkplatz ca. 12,50 m²
- Keller: ca. 18 m²
- Technikraum: ca. 8,63 m²
- Kaufpreis: EUR 999.000 (Schlüsselfertig!)
______
HAUS 3: Gesamtfläche: ca. 231 m2
- Wohnnutzfläche: ca.135 m², 5 ZIMMER
- Gartenfläche: ca. 48,40 m²
- Terrasse EG: ca. 14,57 m2
- Terrassen DG: ca. 14,24 m² + 6,60 m²
- PKW Parkplatz ca. 12,50 m²
- Kaufpreis: EUR 919.000 (Schlüsselfertig!)
______
HAUS 4: Gesamtfläche: ca. 255,65 m2
- Wohnnutzfläche: ca. 139,09 m², 5 ZIMMER
- Gartenfläche: ca. 67,22 m2
- Terrassenfläche (EG): ca. 16,22 m²
- Terrassenfläche (DG): ca. 20,62 m²
- PKW Parkplatz ca. 12,50 m²
- Kaufpreis: EUR 919.000 (Schlüsselfertig!)
______
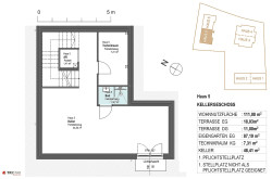
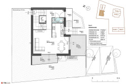
HAUS 5: Gesamtfläche: ca. 308,30 m2
- Wohnnutzfläche: ca.111,08 m², 4 ZIMMER + KELLER mit Fußbodenheizung
- Keller ca. 56 m²
- Gartenfläche: ca. 87,19 m2
- Terrassen EG: ca. 18,03 m2
- Terrasse DG: ca. 11 m²
- PKW Parkplatz ca. 25 m²
- Kaufpreis: EUR 899.000 (Schlüsselfertig!)
______
HAUS 6: Gesamtfläche: ca. 336 m2
- Wohnnutzfläche: ca. 111,78 m², 4 ZIMMER + 49,11 m² KELLER (mit Fußbodenheizung)!
- Keller ca. 49,11 m²
- Gartenfläche: ca. 116 m2
- Terrassen EG: ca. 23,35 m2
- Terrasse DG: ca. 11 m²
- PKW Parkplatz ca. 25 m²
- Kaufpreis: EUR 899.000 (Schlüsselfertig!)
______
- 6 PKW STELLPLÄTZE:
Für jedes Haus, steht ein PKW STELLPLATZ zu Verfügung (Eigentum!) und ist bereits im Kaufpreis inkludiert!
______
- KEIN BAURECHT, KEINE PACHT:
Sie erwerben hier IHR EIGENHEIM und EIGENTUMSGRUND!
______
- GEMÜTLICH UND HOCHWERTIG:
Für ein gemütliches Raumklima sorgt eine Fußbodenheizung, welche von einer höchst effizienten LUFT/WASSER WÄRMEPUMPE (Warmwasseraufbereitung ohne Schadstoffausstoß!)versorgt wird.
So gibt keine sperrigen und störenden Heizkörper und somit steht Ihnen für die Gestaltung Ihrer Wohnbereiche mehr Platz zur Verfügung!
Weiters zählen zur hochwertigen Ausstattung: KLIMAANLAGE, Eichenparkettböden, keramischer Fliesen-Belag/Feinsteinzeug, Garten mit Rollrasen, etc.
______
- ZIEGELMASSIV - QUALITÄT, DIE GENERATIONEN ÜBERDAUERT!
Die Ziegelbauweise kombiniert Tradition mit modernen Vorteilen. Dank ihrer hohen Wärmespeicherkapazität und den speziellen Eigenschaften von Ziegeln, wie Poren und Luftkammern, wird ein herausragender Wärmeschutz mit Top U-Werten erreicht. Dies sorgt für ein stets angenehmes Raumklima, wobei Ziegel überschüssige Feuchtigkeit aufnehmen und wieder abgeben können. Die Beschaffenheit des Ziegels bietet zudem exzellenten Schallschutz und Brandsicherheit.
Im Vergleich zu trendigen, „exotischen" Materialien ist die Ziegelmassivbauweise deutlich langlebiger und stellt somit eine überlegene Geldanlage und Investition für die Zukunft dar.
______
TOP LAGE:
Ein detailliertes LAGEEXPOSÉ (65 Seiten!) erfolgt umgehend nach Anfrage!
______
-
VERMITTLUNGSPROVISION / DOPPELMAKLERTÄTIGKEIT:
Der Ordnung halber wird darauf hingewiesen, dass die Vermittlungsprovision 3 % des Kaufpreises zuzüglich 20 % USt. (insgesamt 3,6 %) beträgt und mit Zustandekommen des vermittelten Rechtsgeschäfts (Annahme des Kaufanbots ohne aufschiebende Bedingungen durch den Verkäufer) fällig wird. Der Makler ist als Doppelmakler tätig.
NEU! • Ziegelmassiv • Garten + Terrasse • Keller • PKW inkl.
Hinweis gemäß Energieausweisvorlagegesetz: Ein Energieausweis wurde vom Eigentümer bzw. Verkäufer, nach unserer Aufklärung über die generell geltende Vorlagepflicht, sowie Aufforderung zu seiner Erstellung noch nicht vorgelegt. Daher gilt zumindest eine dem Alter und der Art des Gebäudes entsprechende Gesamtenergieeffizienz als vereinbart. Wir übernehmen keinerlei Gewähr oder Haftung für die tatsächliche Energieeffizienz der angebotenen Immobilie.
Wir weisen darauf hin, dass zwischen dem Vermittler und dem zu vermittelnden Dritten ein familiäres oder wirtschaftliches Naheverhältnis besteht.
Der Vermittler ist als Doppelmakler tätig.
Eckdaten
| Kaufpreis: | 899.000,00 € |
| Fläche: | 111,08 m² |
| Zimmer: | 5 |
Basisdaten zur Immobilie
| Objektnr: | 27285 |
| Art: | Haus - Doppelhaushälfte |
| Land: | Österreich |
| Baujahr: | 2024 |
| Zustand: | Erstbezug |
| Alter: | Neubau |
| Kaufpreis: | 899.000,00 € |
| Kaufpreis / m²: | auf Anfrage |
| Provision: | 3% des Kaufpreises zzgl. 20% USt. |
| Wohnfläche: | 111,08 m² |
| Nutzfläche: | 308,30 m² |
| Gesamtfläche: | 308,30 m² |
| Zimmer: | 5 |
| Terrassen: | 3 |
| Stellplätze: | 2 |
| Garten: | 87,19 m² |
| Keller: | 56,00 m² |
Ausstattung
Parkett, Fliesen, Fußbodenheizung, Ostbalkon, Südbalkon, Bad mit Fenster, Badewanne, Dusche, Parkplatz
Internet und TV
Information zur Internet und TV Versorgung hier
Ihre persönliche Beratung
TRISTAR Immobilien
TRISTAR Immobilien
tristar@tristar.at
+43 676 901 73 74
