• NEU! • 6 EXKLUSIVE DG-WOHNUNGEN MIT WIENBLICK • SOFORT BEZIEHBAR • EIGENTUM • SIEBENBRUNNENPLATZ • 1050 WIEN •
Wohnung
- Dachgeschoß,
1050
Wien
Lage der Immobilie
SIEBENBRUNNENPLATZBeschreibung der Immobilie
-
6 EXKLUSIVE DACHGESCHOSSWOHNUNGEN MIT WIENBLICK:
Zum Verkauf gelangen 6 neu ausgebaute, topmoderne Dachgeschosswohnungen, die ab sofort bezugsfertig sind.
Die Wohnungen befinden sich in der Nähe des legendären Siebenbrunnenplatzes im 5. Wiener Gemeindebezirk und überzeugen durch eine ausgezeichnete Infrastruktur sowie ideale Verkehrsanbindung.
Der Dachgeschossausbau wurde in einem wunderschönen Wiener Eckaltbau realisiert. Im Zuge dessen wurden die allgemeinen Teile des Hauses (Fassade, Stiegenhaus, Hofseite, Keller und Aufzug) umfassend modernisiert bzw. saniert. Die Wohnungen bieten großzügige Terrassen, lichtdurchflutete Räume und einen fantastischen Ausblick über Wien.
------------------------------
-
ÜBERBLICK
------------------------------
- Top 28: VERKAUFT!
- Top 29: VERKAUFT!
- Top 30: VERKAUFT!
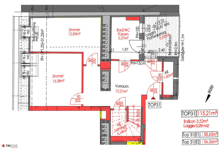
- Top 31: Wohnfläche ca. 115,21 m² + Terrasse ca. 3,52 m² + Loggia ca. 5,97 m², EUR 849.000
- Top 32: Wohnfläche ca. 123,19 m² + Loggia/Terrasse ca. 5,50 m², EUR 949.000
- Top 33: Wohnfläche ca. 75,58 m² + Terrasse ca. 8,50 m², EUR 599.000
----------------------------------------------------
-
AUSSTATTUNG
Diese fünf topmodernen Dachgeschosswohnungen überzeugen durch eine hochwertige Ausstattung mit Fokus auf Qualität, Design und Funktionalität.
- Böden/Wände: Eichen-Landhausdiele in Wohnräumen, Keramikfliesen (120x120 cm, grau) in Sanitär, wasserbeständige Latexfarbe.
- Türen/Fenster: WK-3-Sicherheitstüren mit 4-fach-Verriegelung, weiße Innentüren, Alu-Fenster/Terrassentüren mit 3-fach-Verglasung, Schallschutz, elektrische Rolläden. VELUX-Dachfenster mit Klappfunktion, Außenrollos. mit Solar-Antrieb!
- Sanitär: Fußbodenheizung in Bädern, Wand-WC (Tiefspüler), Handwaschbecken (43x34 cm), Waschtisch (120x46 cm), Chrom-Armaturen, Duschkopf, Mischer, Handbrause.
- Heizung/Warmwasser: Luft-Wärmepumpe mit Fußbodenheizung, Bad-Heizkörper, öffentliche Versorgung.
- Elektro/Multimedia: Schalter (weiß matt) mit Steckdosen, Netzwerk/Koax/Jalousie, Video-Sprechanlage, Internet-Vorbereitung.
- Klima: Mono-Split-Klimaanlage für Luftkühlung.
- Sonstiges: Lüftung mit Filtern, Sonnenschutz, WPC-Terrassendielen (dunkelgrau), pulverbeschichtete Geländer, WLAN-Thermostate, Unterputz-Touch-Radio.
----------------------------------------------------
-
HINWEIS:
Die Möblierung auf einzelnen Bildern wurde mittels KI (künstlicher Intelligenz) generiert und dient ausschließlich der Veranschaulichung.
----------------------------------------------------
VERMITTLUNGSPROVISION / DOPPELMAKLERTÄTIGKEIT:
Der Ordnung halber wird darauf hingewiesen, dass die Vermittlungsprovision 3 % des Kaufpreises zuzüglich 20 % USt. (insgesamt 3,6 %) beträgt und mit Zustandekommen des vermittelten Rechtsgeschäfts (Annahme des Kaufanbots ohne aufschiebende Bedingungen durch den Verkäufer) fällig wird. Der Makler ist als Doppelmakler tätig.
• NEU! • 6 EXKLUSIVE DG-WOHNUNGEN MIT WIENBLICK • SOFORT BEZIEHBAR • EIGENTUM • SIEBENBRUNNENPLATZ • 1050 WIEN •
Wir weisen darauf hin, dass zwischen dem Vermittler und dem zu vermittelnden Dritten ein familiäres oder wirtschaftliches Naheverhältnis besteht.
Der Vermittler ist als Doppelmakler tätig.
Eckdaten
| Objektnr: | 27370 |
| Art: | Wohnung - Dachgeschoß |
| Land: | Österreich |
| Baujahr: | 2024 |
| Zustand: | Erstbezug |
| Alter: | Altbau |
| Kaufpreis: | 849.000,00 € |
| Kaufpreis / m²: | auf Anfrage |
| Provision: | 3% des Kaufpreises zzgl. 20% USt. |
| Wohnfläche: | 115,21 m² |
| Gesamtfläche: | 124,46 m² |
| Zimmer: | 3 |
| Bäder: | 1 |
| WC: | 1 |
| Terrassen: | 1 |
| Heizwärmebedarf: | B 47,00 kWh/m²a |
| fGEE: | A+ 0,65 |
Ausstattung
Parkett, Fliesen, Fußbodenheizung, Personenaufzug, Westbalkon, Dusche, Bad mit Fenster
Internet und TV
Information zur Internet und TV Versorgung hier
Ihre persönliche Beratung
TRISTAR Immobilien
TRISTAR Immobilien
E tristar@tristar.at
H +43 676 901 73 74
