Beschreibung der Immobilie
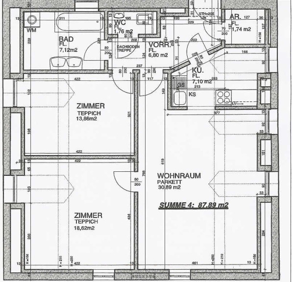
Diese großzügige Wohnung liegt im 3. OG der ehemaligen Stiftsbrauerei und teilt sich in Vorraum, Abstellraum, Küche großes Wohnzimmer und 2 Schlafzimmer auf.
Bad mit Badewanne und Doppelwaschbecken, WC. Kein Lift vorhanden!
Der Immobilienmakler erklärt, dass er – entgegen dem in der Immobilienwirtschaft üblichen Geschäftsgebrauch des Doppelmaklers – einseitig nur für den Vermieter tätig ist.
Infrastruktur / Entfernungen
Gesundheit
Apotheke <1.000m
Arzt <3.500m
Kinder & Schulen
Schule <500m
Kindergarten <1.500m
Nahversorgung
Supermarkt <1.000m
Bäckerei <500m
Einkaufszentrum <9.500m
Sonstige
Bank <500m
Geldautomat <500m
Post <1.000m
Polizei <7.000m
Verkehr
Bus <500m
Bahnhof <1.000m
Autobahnanschluss <9.500m
Angaben Entfernung Luftlinie / Quelle: OpenStreetMap
Eckdaten
| Objektnr: | 1937/7645922 |
| Art: | Wohnung |
| Land: | Österreich |
| Alter: | Altbau |
| Gesamtmiete: | 924,71 € |
| Kaltmiete (netto): | 520,00 € |
| Kaltmiete: | 759,04 € |
| Provision: | Gemäß Erstauftraggeberprinzip bezahlt der Abgeber die Provision. |
| Betriebskosten: | 209,04 € |
| Heizkosten: | 72,31 € |
| MwSt Gesamt: | 93,36 € |
| Wohnfläche: | 88,03 m² |
| Nutzfläche: | 88,03 m² |
| Heizwärmebedarf: | 65,00 kWh/m²a |
| fGEE: | 1,50 |
Internet und TV
Information zur Internet und TV Versorgung hier
Ihre persönliche Beratung
Gerlinde Zwirzitz
AREV Immobilien GmbH
gerlinde.zwirzitz@arev.at
0724222110 - 502
0664- 81 85 393
