Lage der Immobilie
Das Geschäftslokal in Ried im Innkreis überzeugt durch seine zentrale Lage und optimale Erreichbarkeit. In unmittelbarer Nähe befinden sich wichtige Einrichtungen wie Arztpraxen, Apotheken, Schulen und Kindergärten, die eine hohe Frequentierung garantieren. Einkaufsmöglichkeiten wie Supermärkte, Bäckereien und ein Einkaufszentrum runden das Angebot ab. Verkehrsanbindungen durch Bus und Bahnhof sind ebenfalls gegeben, was die Erreichbarkeit für Kunden und Mitarbeiter erleichtert.Beschreibung der Immobilie
Willkommen in Ihrem neuen Geschäftslokal im Herzen von Ried im Innkreis! Diese erstklassige Einzelhandelsimmobilie bietet Ihnen die perfekte Gelegenheit, Ihre Geschäftsideen in einer dynamischen Stadt zu verwirklichen.
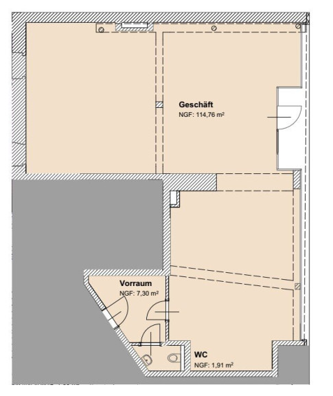
Mit einer großzügigen Fläche von 124 m² im Erdgeschoss haben Sie ausreichend Platz, um Ihre Visionen zu realisieren. Die Räumlichkeiten sind flexibel gestaltbar, sodass Sie Ihre Verkaufsfläche ganz nach Ihren Bedürfnissen anpassen können. Ob Sie ein trendiges Modegeschäft oder ein innovatives Dienstleistungsangebot planen – hier sind Ihrer Kreativität keine Grenzen gesetzt!
Die Immobilie ist massiv gebaut und bietet Ihnen nicht nur eine hohe Qualität, sondern auch eine hervorragende Energieeffizienz dank der modernen Luftwärmepumpe. Um Ihren Kunden den Besuch so angenehm wie möglich zu gestalten, verfügt das Lokal über eine Garage sowie eine Tiefgarage. Dies sorgt für eine optimale Erreichbarkeit und zusätzlichen Komfort – sowohl für Sie als auch für Ihre Kunden.
Die Lage könnte nicht besser sein: Ried im Innkreis ist eine attraktive Stadt mit einer hervorragenden Verkehrsanbindung. Die Haltestelle für Bus und Bahn befindet sich in der Nähe, was die Erreichbarkeit für Ihre Kunden erleichtert.
Darüber hinaus profitieren Sie von einer hervorragenden Infrastruktur in der Umgebung. In nur wenigen Gehminuten erreichen Sie wichtige Einrichtungen wie Arztpraxen, Apotheken,etc. Ob Kindergarten, höhere Schule oder das Einkaufszentrum – hier haben Ihre Kunden alles in der Nähe, was sie benötigen. Dies ist ein entscheidender Vorteil für Ihr Geschäft, da die Kundenfrequenz in solchen Lagen sehr hoch ist.
Die monatliche Miete ist angesichts der hervorragenden Lage und der vielfältigen Möglichkeiten, die Ihnen diese Immobilie bietet, mehr als gerechtfertigt.
Nutzen Sie die Chance, Teil der lebendigen Geschäftswelt von Ried im Innkreis zu werden! Vereinbaren Sie noch heute einen Besichtigungstermin und entdecken Sie, wie dieses Geschäftslokal Ihren Traum vom eigenen Unternehmen Wirklichkeit werden lassen kann. Lassen Sie sich von der Vielseitigkeit und den Möglichkeiten dieser Immobilie begeistern – wir freuen uns auf Ihre Anfrage!
Der Vermittler ist als Doppelmakler tätig.
Infrastruktur / Entfernungen
Gesundheit
Arzt <500m
Apotheke <500m
Klinik <500m
Krankenhaus <1.000m
Kinder & Schulen
Schule <500m
Kindergarten <500m
Höhere Schule <1.000m
Nahversorgung
Supermarkt <500m
Bäckerei <500m
Einkaufszentrum <500m
Sonstige
Bank <500m
Geldautomat <500m
Polizei <500m
Post <500m
Verkehr
Bus <500m
Bahnhof <1.000m
Autobahnanschluss <5.500m
Angaben Entfernung Luftlinie / Quelle: OpenStreetMap
Eckdaten
| Kaltmiete (netto): | 1.682,27 € |
| Fläche: | 124,00 m² |
Basisdaten zur Immobilie
| Objektnr: | 1937/7645912 |
| Art: | Einzelhandel |
| Land: | Österreich |
| Kaltmiete (netto): | 1.682,27 € |
| Kaltmiete: | 2.017,09 € |
| Provision: | 7.663,39 € inkl. 20% USt. |
| Betriebskosten: | 334,82 € |
| Heizkosten: | 111,63 € |
| MwSt Gesamt: | 425,74 € |
| Gesamtfläche: | 124,00 m² |
| Heizwärmebedarf: | 23,50 kWh/m²a |
Ausstattung
Tiefgarage
Internet und TV
Information zur Internet und TV Versorgung hier
Ihre persönliche Beratung
Mathilde Feichtenschlager
AREV Immobilien GmbH
mathilde.feichtenschlager@arev.at
+43 7752 85885 305
+43 6648185369
