GROSSZÜGIGES GASTROMIEPROJEKT MÖGLICH IN FAVORITEN

Gastgewerbe - Gastronomie/Restaurant, 1100 Wien , Quellenstraße

Lage der Immobilie

Mitten in Favoriten

Beschreibung der Immobilie

RESTAURANT UND IMBISS NEBENEINANDER
ZUSAMMENLEGBAR ODER SEPARAT NUTZBAR

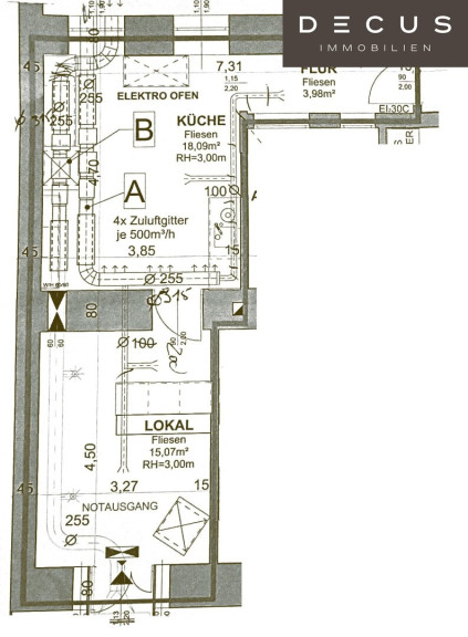
Zwei Lokale in der Quellenstraße
(Nähe Absberggasse)

suchen ambitionierten Nachfolger

Es ist ein gewisser Investitionsbedarf gegeben.
- Lüftung für das kleine Lokal und für die Küche dort ( 10.000 - 15.000)
- ev. Zusammenkegung und Umbau der Lokale
. Neugestaltung des Schanigartens,
- Antrag auf Vergößerung des Schanigartens. ( dzt sind's 2 Parkplätze)
- Komplettierung der Küchenasstattung
- Komplettierung der Vorbereitungsraumausstattung
- Einrichtung erneuern
- Ausmalen
- Firmenschilder neu schaffen


Objekt und Ausstattung
Das Restaurant bietet dzt. Platz für ca 40 Personen + Schanigarten ca 10 Pers.
Der Imbiss verfügt über 8 Plätze.
Ein Schanigarten dazu ist beantragbar,
wenn eine eigene Firma für den Imbiss gegründet wird.

Da das Lokal schon früher zusammengelegt war, gibt es dzt.
- einen Durchgang  dieser ist im Grundriss nicht eingetragen!)
- eine geminsame Heizung und Warrmasserbereitung
- eine Küche ist im Imbissbereich
. eine Teeköche im Restaurantbereich.

Das Lokal wird aus privaten Gründen gegen eine angemessene Investitionsablöse weitergegeben.
Es ist eine Betriebsübernahme. Die Nettomiete erhöht sich um 25%.
Die Ablöse ist VB. € 110.000. 

Es ist kein Bier- oder Lieferantenvertrag zu übernehmen!
Es ist eine aufrechte Betriebstättengenehmigung selbstverständlich vorhanden.

Die Bar ist mit Barpult und großartiger Kaffeemaschune und allen Schikanen zur Verfügung.
Die Küche hat einige Gerätschaft.
Es gibt einen separaten Zugang - ideal ür Lieferungen.  dieser ist im Grundriss nicht eingetragen!)

Die Heizung ist eine Gasetagenheizung.
Eine Lüftungsanlage ist selbstverständlich vorhanden.
(alledings dzt. nicht für das kleine Lokal und nicht für die Küche)
Zwei trockenr Kellerabteile mit je ca.4m" sind mit dem Lift erreichbar.

Der große Schirm des Schanigartens und ein Bierzapfgerät
sind im Besitz einer Bierlieiferfirma.
Der Vertrag kann behalten oder aufgekündigt werden.

Miete
Die Miete wird um 20% oder 25 % anlässlich der Weitergabe angehoben.
Nettomiete dzt    € 2.000 + BK + USt
zukünftige Nettomiete: € 2.500 + BK + USt
Kaution 3 BMM
angemessene Ablöse 

Provision       
3 BMM inkl 20% USt
 

Lage und Umgebung

Mitten im Zehnten! :)
Die infrastrukturelle Versorgung ist gut.
Die Verkehrsanbindung ist auch gut.

Der Vermittler ist als Doppelmakler tätig.

DECUS Immobilien GmbH – Wir beleben Räume

Für weitere Informationen und Besichtigungen steht Ihnen gerne Herr  Elemér Szüts unter der Mobilnummer +43 664 11 888 16und per E-Mail unter szuets@decus.at persönlich zur Verfügung.

www.decus.at | office@decus.at 

Wichtige Informationen

Bitte beachten Sie, dass per 13.06.2014 eine neue Richtlinie für Fernabsatz- und Auswärtsgeschäfte in Kraft getreten ist.

Ab 1.4.2024 entfallen die Grundbuchs- und Pfandrechtseintragungsgebühren vorübergehend für Eigenheime bis zu einer Bemessungsgrundlage von EUR 500.000,-. Voraussetzung ist das dringende Wohnbedürfnis, ausgenommen davon sind vererbte oder geschenkte Immobilien. Die Befreiung ist jedoch für den Einzelfall zu prüfen, DECUS Immobilien übernimmt hierzu keine Haftung.

Ab 01.07.2023 gilt das Erstauftraggeber-Prinzip bei Wohnungsmietverträgen, ausgenommen davon sind Dienst-/Natural-/Werkswohnungen. Wir dürfen gem. § 17 Maklergesetz darauf hinweisen, dass wir auf die Doppelmaklertätigkeit gem. § 5 Maklergesetz bei Wohnungsmietverträgen verzichten und nur noch einseitig tätig sind (bei den restlichen Vermittlungsarten nicht) und ein wirtschaftliches Naheverhältnis zu unseren Auftraggebern besteht. 

Im Falle eines Abschlusses mit Ihnen oder einem von Ihnen namhaft gemachten Dritten bzw. bei beidseitiger Willensübereinstimmung beträgt unser Honorar (lt. Honorarverordnung für Immobilienmakler) 2 Bruttomonatsmieten (BMM) bei Dienst-/Natural-/Werkwohnungen sowie Suchaufträgen, 3 BMM bei Gewerbe-, PKW-, Keller- und Lagermietverträgen sowie bei Kaufobjekten 3 % des Kaufpreises, zuzüglich der gesetzlichen Umsatzsteuer.

Dieses Objekt wird Ihnen unverbindlich und freibleibend angeboten. Oben angeführte Angaben basieren auf Informationen und Unterlagen des Eigentümers und sind unsererseits ohne Gewähr.

Nähere Informationen sowie unsere AGBs und die Nebenkostenübersichtsblatt finden Sie auf unserer Homepage www.decus.at unter "Service" - "Rechtliches zum FAGG" sowie im Anhang der zugesendeten Objekt-Exposés!

Infrastruktur / Entfernungen

Gesundheit
Arzt <750m
Apotheke <250m
Klinik <1.000m
Krankenhaus <2.500m

Kinder & Schulen
Schule <250m
Kindergarten <250m
Universität <250m
Höhere Schule <2.000m

Nahversorgung
Supermarkt <250m
Bäckerei <250m
Einkaufszentrum <1.500m

Sonstige
Geldautomat <250m
Bank <250m
Post <500m
Polizei <1.250m

Verkehr
Bus <250m
U-Bahn <1.000m
Straßenbahn <250m
Bahnhof <500m
Autobahnanschluss <500m

Angaben Entfernung Luftlinie / Quelle: OpenStreetMap

Eckdaten

Objektnr: 1151595
Art: Gastgewerbe - Gastronomie/Restaurant
Land: Österreich
Baujahr: 1900
Möbliert: Voll
Alter: Altbau
Kaltmiete (netto): 2.500,00 €
Kaltmiete: 2.750,00 €
Provision: 3 Bruttomonatsmieten zzgl. 20% USt.
Betriebskosten: 250,00 €
MwSt Gesamt: 550,00 €
Wohnfläche: 125,00 m²
Nutzfläche: 125,00 m²
Gesamtfläche: 125,00 m²
WC: 3
Keller: 8,00 m²
Heizwärmebedarf:  D  127,00 kWh/m²a
fGEE:  D  2,35
Immobilie merken Exposé

Ausstattung

Elektro, Gas, Etagenheizung, Einbauküche, Personenaufzug, Angeschl. Bar, Kabel/Satelliten-TV, Gastterrasse, Swimmingpool


Internet und TV

Information zur Internet und TV Versorgung hier


Immobilie anfragen


Ihre persönliche Beratung

DECUS Immobilien GmbH

Elemér Szüts

DECUS Immobilien GmbH

E szuets@decus.at

T +43 664 11 888 16

H +43 664 11 888 16

F +43 1 35 600 10