PRODUKTIVES ABREITSKLIMA - JETZT FÜR SIE BEREIT - TOP 06
Büro / Praxis
- Bürofläche,
4040
Linz
,
Rudolfstraße 55
Lage der Immobilie
Stadtrand/Ortsrand, Toplage, Ebene Lage, Nähe öffentliche VerkehrsmittelBeschreibung der Immobilie
Willkommen in Ihrem neuen produktiven Workspace - sofort starklar für Sie und Ihr Team.
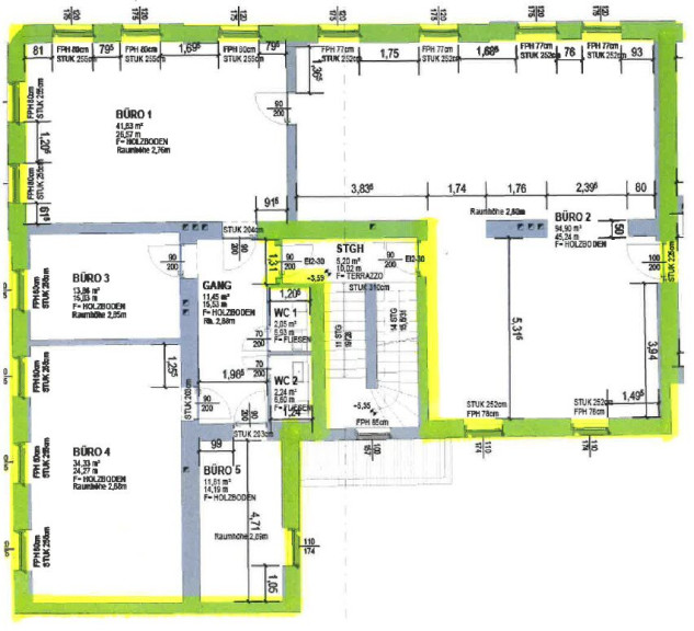
Diese großzügige Bürofläche in der 1. Etage bietet Ihnen eine beeindruckende Fläche von 212,49 m², die sich perfekt für unterschiedlichste Nutzungsmöglichkeiten eignet.
Sie profitieren von einer zentralen Lage, die sich durch eine exzellente Verkehrsanbindungen auszeichnet. Die nahegelegenen Bus- und Straßenbahnhaltestellen ermöglichen eine unkomplizierte Erreichbarkeit für Ihre Mitarbeiter und Kunden. Auch der Bahnhof ist in ca 20 Minuten zu erreichen, sodass Sie von einer optimalen Anbindung an die umliegenden Städte profitieren können. Zudem sorgt der Autobahnanschluss dafür, dass Sie auch mit dem Auto schnell und bequem unterwegs sind.
Die Infrastruktur rund um die Immobilie ist hervorragend. In unmittelbarer Nähe finden Sie alles, was Sie für den täglichen Bedarf benötigen. Ob Arzt, Apotheke, Schule oder Kindergarten – die wichtigsten Einrichtungen sind fußläufig erreichbar. Auch Supermärkte, Bäckereien und ein Einkaufszentrum befinden sich in der Nachbarschaft, was die Lage nicht nur für Ihr Unternehmen, sondern auch für Ihre Mitarbeiter äußerst attraktiv macht.
Die Bürofläche selbst besticht durch ihre Helligkeit und Offenheit, die eine angenehme Arbeitsatmosphäre schafft. Große Fensterfronten sorgen für ausreichend Tageslicht und ein modernes Ambiente, eine Teeküche wird zur Verfügung gestellt.
Nutzen Sie die Chance, an einem der besten Standorte in Linz Fuß zu fassen. Diese Immobilie bietet Ihnen nicht nur eine hervorragende Lage, sondern auch die Möglichkeit, ganz in der Nähe Ihrer Zielgruppe zu sein. Überzeugen Sie sich selbst von den unzähligen Vorteilen, die diese Bürofläche zu bieten hat!
Vereinbaren Sie noch heute einen Besichtigungstermin und lassen Sie sich von den Möglichkeiten dieser Immobilie inspirieren. Ihr neuer Standort wartet auf Sie!
Wir weisen darauf hin, dass zwischen dem Vermittler und dem zu vermittelnden Dritten ein familiäres oder wirtschaftliches Naheverhältnis besteht.
Der Vermittler ist als Doppelmakler tätig.
Infrastruktur / Entfernungen
Gesundheit
Arzt <150m
Apotheke <450m
Klinik <925m
Krankenhaus <1.350m
Kinder & Schulen
Kindergarten <200m
Schule <200m
Universität <575m
Höhere Schule <1.400m
Nahversorgung
Supermarkt <500m
Bäckerei <450m
Einkaufszentrum <850m
Sonstige
Bank <475m
Geldautomat <475m
Post <650m
Polizei <450m
Verkehr
Bus <250m
Straßenbahn <200m
Bahnhof <475m
Autobahnanschluss <500m
Flughafen <4.525m
Angaben Entfernung Luftlinie / Quelle: OpenStreetMap
Eckdaten
| Objektnr: | 1937/7645880 |
| Art: | Büro / Praxis - Bürofläche |
| Land: | Österreich |
| Kaltmiete (netto): | 1.593,68 € |
| Kaltmiete: | 1.967,52 € |
| Miete / m²: | 7,50 € |
| Provision: | EUR 6.693,47 plus 20.0% USt. |
| Betriebskosten: | 373,84 € |
| Heizkosten: | 207,69 € |
| MwSt Gesamt: | 435,05 € |
| Nutzfläche: | 212,49 m² |
| Heizwärmebedarf: | 133,00 kWh/m²a |
Ausstattung
Teeküche
Internet und TV
Information zur Internet und TV Versorgung hier
Ihre persönliche Beratung
Silvia Loizenbauer
AREV Immobilien GmbH
E silvia.loizenbauer@arev.at
T 0732/ 60 55 33 - 364
H 0664/ 81 85 330
