Kröpfelsteigstraße - exklusives Anwesen mit einem 11.045m2 großem Grundstück zu vermieten
Haus
- Villa,
2371
Hinterbrühl
Beschreibung der Immobilie
2371 Hinterbrühl - Kröpfelsteigstraße
exklusives Anwesen mit 13 Zimmern, Outdoor-Swimmingpool, Biotop, privatem Spabereich und Fitnessraum, zwei Garagen, einem Spielplatz und charmantem Weinkeller,
Grundstücksfläche: 11.045,00m2,
die Liegenschaft teilt sich auf insgesamt 4 Gebäude auf (Haupthaus, Gästehaus Fitnessraum, Garage)
ca. 569,00m2 Wohnfläche (Haupthaus und Gästehaus) zzgl. 3 Terrassen und 2 Balkonen mit insgesamt ca. 185m2 Nutzfläche,
Haupthaus:
ca. 516,00m2 Wohnfläche zzgl. insgesamt ca. 185,00m2 Freifläche (3 Terrassen und 2 Balkone) teilen sich auf 4 Etagen und den Keller auf:
EG: ca. 210,00m2 Wohnfläche zzgl. 1 Terrasse mit ca. 93,00m2 Nutzfläche,
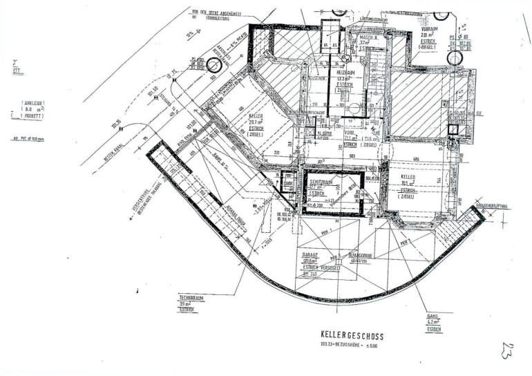
ca. 39,00m2 großes Wohnzimmer mit Zugang zur Terrasse (93,10m2) und dem Garten, ein 38,50 großes Zimmer/Wintergarten mit ebenfalls Zugang zur Terrasse und dem Garten, 1 Zimmer (26,60m2), separate Einbauküche (28,30m2) mit Speiselift, Empfangshalle (24,80m2), Windfang, Vorzimmer mit Waschraum, Ankleide, 1 Bad, 2 separate WC´s, Zugang zum KG und der Garage, Heizraum, Waschraum, Bowlingbahn, Schutzraum,
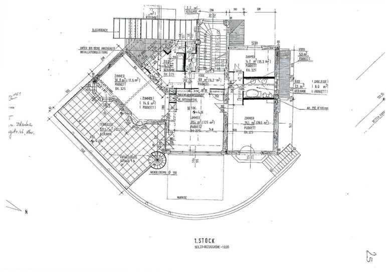
OG: ca. 147,00m2 Wohnfläche zzgl. 1 Terrasse mit insgesamt ca. 69,00m2 Nutzfläche,
4 separat begehbare Zimmer, Terrasse (ca. 69,00m2), 2 Bäder, separates WC, Vorzimmer,
DG: ca. 116,00m2 Wohnfläche zzgl. 1 Balkon mit ca. 5,00m2 Nutzfläche,
Wohnraum mit Kamin (57,90m2), 2 Schlafzimmer (23,20m2 und 16,90m2), Küche, Vorzimmer, 2 Bäder, 2 WC, Zugang und zur Dachgeschoss Galerie,
DG Galerie: ca. 43,00m2 Wohnfläche zzgl. 1 Terrasse mit ca. 14,00m2 und 1 Balkon ca. 5,00m2 Nutzfläche,
Keller: ca. 124m2 Nutzfläche zzgl. ca. 121,00m2 Garage,
Gästehaus:
ca. 52,00m2 Wohnfläche (aufgeteilt auf EG) zzgl. ca. 13,00m2 Keller,
3 Zimmer, Küche, Bad, separates WC, Vorzimmer und Keller,
zusätzlich verfügt die Liegenschaft über:
- eine zweite, separate Garage/Abstellraum mit einer Nutzfläche von ca. 221,00m2
- einen Fitnessraum mit ca. 128,00m2 Nutzfläche
- ein Gerätehaus mit einer Nutzfläche von ca. 177,00m2
- ein Glashaus mit ca. 80,00m2 Nutzfläche
die Liegenschaft wird mit einer Gasetagenheizung beheizt,
Mietdauer: 10 Jahre,
der Mietbeginn ist ab sofort möglich,
BMM: € 13.475,00 (inkl. BK und 10% USt.)
Nebenkosten bei Anmietung:
Kaution: 6BMM
Hinweis gemäß Energieausweisvorlagegesetz: Ein Energieausweis wurde vom Eigentümer bzw. Verkäufer, nach unserer Aufklärung über die generell geltende Vorlagepflicht, sowie Aufforderung zu seiner Erstellung noch nicht vorgelegt. Daher gilt zumindest eine dem Alter und der Art des Gebäudes entsprechende Gesamtenergieeffizienz als vereinbart. Wir übernehmen keinerlei Gewähr oder Haftung für die tatsächliche Energieeffizienz der angebotenen Immobilie.
Der Immobilienmakler erklärt, dass er – entgegen dem in der Immobilienwirtschaft üblichen Geschäftsgebrauch des Doppelmaklers – einseitig nur für den Vermieter tätig ist.
Infrastruktur / Entfernungen
Gesundheit
Arzt <1.000m
Apotheke <2.000m
Klinik <4.500m
Krankenhaus <2.500m
Kinder & Schulen
Schule <500m
Kindergarten <1.000m
Höhere Schule <4.500m
Universität <8.000m
Nahversorgung
Supermarkt <500m
Bäckerei <1.500m
Einkaufszentrum <5.000m
Sonstige
Bank <1.500m
Geldautomat <1.500m
Post <1.500m
Polizei <1.000m
Verkehr
Bus <500m
Bahnhof <5.000m
U-Bahn <8.000m
Straßenbahn <6.500m
Autobahnanschluss <2.500m
Angaben Entfernung Luftlinie / Quelle: OpenStreetMap
Eckdaten
| Objektnr: | 6876/1569 |
| Art: | Haus - Villa |
| Land: | Österreich |
| Alter: | Neubau |
| Gesamtmiete: | 13.475,00 € |
| Kaltmiete (netto): | 11.000,00 € |
| Kaltmiete: | 12.250,00 € |
| Provision: | Gemäß Erstauftraggeberprinzip bezahlt der Abgeber die Provision. |
| Betriebskosten: | 1.250,00 € |
| MwSt Gesamt: | 1.225,00 € |
| Wohnfläche: | 569,00 m² |
| Nutzfläche: | 615,00 m² |
| Grundstücksfl.: | 11.045,00 m² |
| Gesamtfläche: | 615,00 m² |
| Zimmer: | 13 |
| Bäder: | 6 |
| WC: | 7 |
| Balkone: | 2 |
| Terrassen: | 3 |
Ausstattung
Parkett, Fliesen, Gas, Etagenheizung, Einbauküche, Dusche, Bad mit Fenster, Badewanne, Garage, Sauna, Sporteinrichtungen, Swimmingpool
Internet und TV
Information zur Internet und TV Versorgung hier
Ihre persönliche Beratung
Michael Wagner, MSc
BRI Immobilienmakler GmbH
E mw@brichard.at
T +43 664 417 417 9
