Das Hochrindl - Wohnanlage mit Panoramablick und Zweitwohnsitzwidmung
Wohnung
- Penthouse,
9571
Hochrindl
Lage der Immobilie
Zweitwohnsitz. Rückzugsort. Inmitten der atemberaubenden Kärntner Nockberge, auf der sonnigen Hochrindl, entstehen drei Häuser, mit je 8 Wohnungen. Mit dem Neubauprojekt "Das Hochrindl" wird in einer der schönsten Alpenregionen Österreichs - der Hochrindl - eine Wohnanlage verwirklicht, welche sich sanft und optimal in die umliegende Berglandschaft einfügt. Natur pur genießen direkt vor der Haustür - beim Wandern oder Skifahren. Hier findet Ruhe und Sport in voller Vielfalt statt. Wohnungsgrößen von 40 m² bis 88 m² Verkaufspreise ab 318.000 EURBeschreibung der Immobilie
Highlights
-
Traumhafter Panoramablick
-
Zweitwohnsitzwidmung
-
Schneesicherheit aufgrund der Höhenlage
-
4 weitere Skigebiete in 25 Autominuten erreichbar
-
Kosteneffizienz aufgrund Erdwärmepumpe und Photovoltaik
-
Solides Investmentpotenzial durch touristische Vermietung mit maximaler Freiheit
-
Private Sauna und Jacuzzi planbar
Mehr Informationen auf: dashochrindl.madile.at
Infrastruktur / Entfernungen
Kinder & Schulen
Schule <6.500m
Nahversorgung
Supermarkt <1.000m
Sonstige
Geldautomat <6.500m
Bank <6.500m
Post <7.500m
Verkehr
Bus <1.500m
Angaben Entfernung Luftlinie / Quelle: OpenStreetMap
Eckdaten
| Kaufpreis: | auf Anfrage |
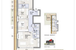
| Fläche: | 88,46 m² |
| Zimmer: | 4 |
Basisdaten zur Immobilie
| Objektnr: | 238 |
| Art: | Wohnung - Penthouse |
| Land: | Österreich |
| Alter: | Neubau |
| Kaufpreis: | auf Anfrage |
| Kaufpreis / m²: | auf Anfrage |
| Wohnfläche: | 88,46 m² |
| Zimmer: | 4 |
| Heizwärmebedarf: | C 59,00 kWh/m²a |
| fGEE: | A+ 0,68 |
Internet und TV
Information zur Internet und TV Versorgung hier
Ihre persönliche Beratung
Andreas Binder
Madile Wohnbau GmbH
office@madile.at
+43 664 8282 969
