Lichtdurchflutete 2-Zimmer-Wohnung in Margareten | ZELLMANN IMMOBILIEN

Wohnung , 1050 Wien

Lage der Immobilie

Die Lage in Margareten bietet eine ausgezeichnete Infrastruktur mit zahlreichen Einkaufsmöglichkeiten, gastronomischen Betrieben und kulturellen Einrichtungen. Die Anbindung an den öffentlichen Nahverkehr ist hervorragend, sodass das Stadtzentrum und andere Bezirke schnell erreichbar sind.​ Zusammenfassend bietet die Obere Amtshausgasse eine attraktive Wohnlage in einem lebendigen und kulturell vielfältigen Bezirk Wiens.​

Beschreibung der Immobilie

Helle, generalsanierte 3-Zimmer-Wohnung mit Lift und moderner Ausstattung

Diese ansprechende, generalsanierte Wohnung bietet auf ca. 64 m² Nutzfläche ein komfortables Wohnambiente mit durchdachter Raumaufteilung. Sie befindet sich im 3. Stock eines gepflegten Mehrparteienhauses und ist bequem über einen Lift erreichbar.

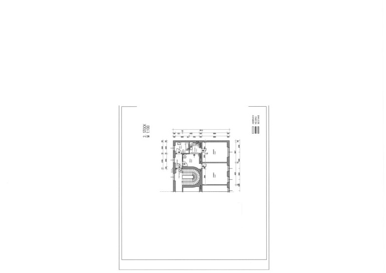
Raumaufteilung

  • Vorzimmer

  • Badezimmer mit WC

  • Wohnküche

  • Zwei separat begehbare Zimmer

  • Lagerraum im 3. Stock

  • Kellerabteil

Der Grundriss (siehe Plan) zeigt die ideale Aufteilung der Räume mit großzügigem Wohn-/Essbereich und klar getrennten Rückzugszonen.

Ausstattung & Highlights

Die Wohnung wurde komplett generalsaniert und überzeugt durch eine hochwertige Ausstattung:

  • Moderne Einbauküche mit Kühl-GefrierkombinationGeschirrspüler und Backrohr

  • Innenplissees und Beleuchtungskörper in allen Räumen

  • BadezimmermöbelDuschkabine und Waschmaschinenanschluss

  • Gasetagenheizung

  • Neuwertige Kunststoff-Isolierglasfenster

  • Sicherheitstür für zusätzlichen Schutz

Dank der hellen Räume und der modernen Ausstattung bietet diese Wohnung ein behagliches Wohngefühl – ideal für Singles, Paare oder kleine Familien.

Zusätzliche Informationen

  • Nutzfläche: ca. 64 m²

  • Stockwerk: 3. OG (mit Lift)

  • Kellerabteil vorhanden

  • Lagerraum im selben Stockwerk

Zusätzliche Hinweise

Bitte beachten Sie, dass in diesem Objekt keine Hunde oder Katzen erlaubt sind. Die Vermietung bevorzugt Berufstätige und keine Studenten - vielen Dank für Ihr Verständnis!

Interesse geweckt?

Wir freuen uns über Ihre Anfrage über dieses Webportal. Gerne senden wir Ihnen daraufhin sämtliche Unterlagen und weitere Informationen zur Wohnung zu.

_______

WICHTIG:

Da e-mails leider manchmal in SPAM oder WERBE Ordnern landen, ersuchen wir Sie diese zu kontrollieren. Wir antworten in der Regel binnen weniger Stunden. Auch am Wochenende! Teilen Sie uns bitte auch Ihre Telefonnummer mit, da wir Sie per SMS über die Versendung des Exposés verständigen können! Dieses Objekt wird Ihnen unverbindlich und freibleibend zur Miete angeboten. Oben angeführte Angaben basieren auf Informationen und Unterlagen des Eigentümers und sind unsererseits ohne Gewähr. 

Noch nichts gefunden? Wir informieren Sie über geeignete Immobilienangebote noch vor allen anderen.
Legen Sie jetzt Ihren individuellen Suchagenten unter folgendem Link an. Wir schicken Ihnen passende Immobilien exklusiv vorab zu. 

-> Suchagent anlegen

Der Immobilienmakler erklärt, dass er – entgegen dem in der Immobilienwirtschaft üblichen Geschäftsgebrauch des Doppelmaklers – einseitig nur für den Vermieter tätig ist.

ZELLMANN IMMOBILIEN GmbH
Vertrauen. Service. Qualität.

Infrastruktur / Entfernungen

Gesundheit
Arzt <500m
Apotheke <500m
Klinik <1.000m
Krankenhaus <1.000m

Kinder & Schulen
Schule <500m
Kindergarten <500m
Universität <1.000m
Höhere Schule <1.500m

Nahversorgung
Supermarkt <500m
Bäckerei <500m
Einkaufszentrum <1.500m

Sonstige
Geldautomat <500m
Bank <500m
Post <500m
Polizei <1.000m

Verkehr
Bus <500m
U-Bahn <500m
Straßenbahn <500m
Bahnhof <500m
Autobahnanschluss <3.500m

Angaben Entfernung Luftlinie / Quelle: OpenStreetMap

Eckdaten

Objektnr: 24190
Art: Wohnung
Land: Österreich
Zustand: Gepflegt
Alter: Altbau
Gesamtmiete: 999,60
Kaltmiete (netto): 607,00 €
Kaltmiete: 902,46 €
Provision: Gemäß Erstauftraggeberprinzip bezahlt der Abgeber die Provision.
Betriebskosten: 234,41 €
MwSt Gesamt: 97,14 €
Wohnfläche: 64,00 m²
Zimmer: 2,50
Bäder: 1
WC: 1
Keller: 3,00 m²
Heizwärmebedarf:  E  189,50 kWh/m²a
fGEE:  E  2,87
Immobilie merken Exposé

Ausstattung

Parkett, Fliesen, Gas, Etagenheizung, Wohnküche / offene Küche, Personenaufzug, Bad mit Fenster, Dusche, Kabel/Satelliten-TV


Internet und TV

Information zur Internet und TV Versorgung hier


Immobilie anfragen


Ihre persönliche Beratung

ZELLMANN IMMOBILIEN GmbH | Vertrauen. Service. Qualität.

Nicole Zellmann

ZELLMANN IMMOBILIEN GmbH | Vertrauen. Service. Qualität.

E nicole@zellmann.at

T +43 699 15 15 22 01

H +43 699 15 15 22 01