PLATZ FÜR 2 WOHNEINHEITEN

Haus - Mehrfamilienhaus, 3100 Sankt Pölten

Beschreibung der Immobilie

Mehrfamilienhaus mit zwei getrennten Wohneinheiten in St. Pölten

Innenfotos (DG) werden nach Übersiedlung nachgereicht.

Lage

Die Liegenschaft befindet sich in südlicher Ausrichtung mit schöner Aussichtslage am Stadtrand von St. Pölten.

  • Nähe Alpenbahnhof
  • Gute Infrastruktur (Einkaufsmöglichkeiten, Schulen, öffentliche Verkehrsanbindung)
  • Rasche Erreichbarkeit der Stadtmitte
  • Nähe Stadtwald - lädt zu Sport- und Freizeitaktivitäten ein

Objektbeschreibung

Zum Verkauf gelangt ein gepflegtes Mehrfamilienhaus in Massivbauweise mit zwei getrennten Wohneinheiten am Stadtrand von St. Pölten. Die Immobilie überzeugt durch ihre ruhige, sonnige Lage in der Nähe des Alpenbahnhofs sowie durch eine gute Infrastruktur.

Das Gebäude wurde ursprünglich 1949 errichtet und im Jahr 1977 durch einen Zubau erweitert. Es bietet vielseitige Nutzungsmöglichkeiten – ideal für Familienverband oder Wohnen und Arbeiten unter einem Dach.

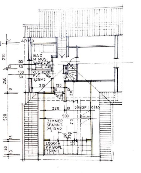
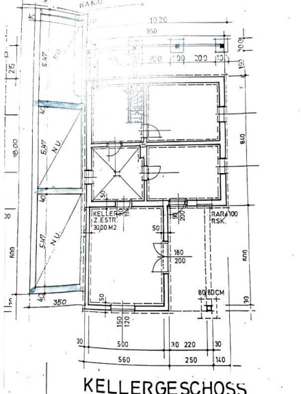
Flächen & Raumaufteilung

  • Erdgeschoss (EG): ca. 100 m²
  • Kellergeschoss (KG): ca. 96,6 m²
  • Dachgeschoss (DG): ca. 60 m²
  • Garage: ca. 17 m²
  • Freistellplätze: 2–3 PKW-Stellplätze auf dem Grundstück

Anbotspreis: € 285.000,-

Besichtigungen sind nach Terminvereinbarung jederzeit möglich.

Kontakt

Exklusiv beauftragt:

Thomas Plesiutschnig

📞 0664 6051751764

📧 thomas.plesiutschnig@riv.at

Eckdaten

Objektnr: 0001011053
Art: Haus - Mehrfamilienhaus
Land: Österreich
Baujahr: 1949/1977
Kaufpreis: 285.000,00
Provision: 3% des Kaufpreises plus 20% USt.
Wohnfläche: 172,00 m²
Grundstücksfl.: 712,00 m²
Zimmer: 5
Bäder: 2
WC: 3
Balkone: 1
Garten: 552,00 m²
Keller: 96,60 m²
Heizwärmebedarf:  F  249,00 kWh/m²a
fGEE:  E  3,20
Immobilie merken Exposé

Ausstattung

Zentralheizung, Einbauküche, Kabel/Satelliten-TV


Internet und TV

Information zur Internet und TV Versorgung hier


Immobilie anfragen


Ihre persönliche Beratung

Raiffeisen Immobilien Vermittlung Ges.m.b.H

Thomas Plesiutschnig

Raiffeisen Immobilien Vermittlung

E thomas.plesiutschnig@riv.at

T +43517517

H +43 664 60 517 517 64