Loggia-Familien-Wohnung nahe U6 und Brunnenmarkt

Wohnung , 1160 Wien

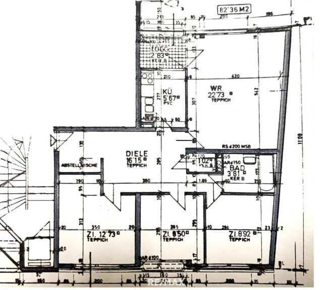
Beschreibung der Immobilie

Zum Verkauf gelangt diese Loggia-Wohnung im 1. Liftstock nahe Brunnenmarkt und U6 Josefstädter Straße

Aktuell verfügt die Wohnung über drei Zimmer, lt. Bauplan ist es eine Vier-Zimmer-Wohnung; ein Umbau ist daher recht einfach möglich.

Aus dem zentralen, ca. 16 m² großen Vorraum gelangen Sie in alle Räume:
- in das hofseitige ca. 23 m² große Wohnzimmer mit Ausgang auf die ca. 3 m² große Loggia
- die separate Küche (ca. 6 m²) mit Durchreiche ins Wohnzimmer
- ein ca. 13 m² großes Zimmer
- ein ca. 18 m² großes Zimmer (welches in zwei kleiner Zimmer getrennt werden könnte)
- das ca. 4 m² große Bad mit Badewann
- das separate WC

Die Wohnung verfügt auch über ein Kellerabteil.


Highlights
alle Räume zentral begehbar
dzt. drei Zimmer - Umbau auf vier Zimmer gut möglich
hofseitige Loggia
hofseitiges Wohnzimmer mit Loggia-Zugang
separate Küche mit Fenster und mit Durchreiche ins Wohnzimmer
sanierungsbedürftig - tolle Möglichkeit zur Realisierung eigener Gestaltungsideen

U6 Josefstädter Straße sowie Straßenbahnlinien 2 (Richtung Innenstadt) und 12 quasi vor der Haustüre
Brunnermarkt vor der Haustüre
gute Infrastruktur durch die nahegelegene Ottakringer Straße und Neulerchenfelder Straße
gute Anbindung ans Radverkehrsnetz



Monatsvorschreibung
Betriebskosten EUR 193,38
Lift EUR 19,11
Reparaturfonds EUR 72,73
Heizung EUR 193,19
Benützungsentgelt Box4 EUR 34,88
Gesamtvorschreibung EUR 513,29



Infrastruktur / Entfernungen

Gesundheit
Arzt <500m
Apotheke <500m
Klinik <1.000m
Krankenhaus <1.000m

Kinder & Schulen
Schule <500m
Kindergarten <500m
Universität <1.500m
Höhere Schule <1.000m

Nahversorgung
Supermarkt <500m
Bäckerei <500m
Einkaufszentrum <1.000m

Sonstige
Geldautomat <500m
Bank <500m
Post <500m
Polizei <500m

Verkehr
Bus <500m
U-Bahn <500m
Straßenbahn <500m
Bahnhof <500m
Autobahnanschluss <4.000m

Angaben Entfernung Luftlinie / Quelle: OpenStreetMap

Eckdaten

Objektnr: 1619/7875
Art: Wohnung
Land: Österreich
Baujahr: 1980
Zustand: Gepflegt
Kaufpreis: 330.000,00
Provision: 3% des Kaufpreises zzgl. 20% USt.
Wohnfläche: 82,00 m²
Zimmer: 4
Bäder: 1
WC: 1
Heizwärmebedarf:  C  58,00 kWh/m²a
fGEE:  C  1,19
Immobilie merken Exposé

Ausstattung

Zentralheizung, Personenaufzug


Internet und TV

Information zur Internet und TV Versorgung hier


Immobilie anfragen


Ihre persönliche Beratung

RE/MAX Real Experts Immobilien lifetime GmbH

Peter Grand (Team Hubert Koller)

RE/MAX Real Experts Immobilien lifetime GmbH

E p.grand@remax-real-experts.at

H +43 699 1317 3366