Herrliche DG-Maisonette mit 2 Hof-Terrassen bei der Volksoper, Währinger Straße

Wohnung - Dachgeschoß, 1180 Wien

Beschreibung der Immobilie

Zum Verkauf gelangt diese 4-Zimmer-Dachgeschoß-Terrassen-Maisonette auf einem Stilaltbau-Haus in unmittelbarer Nähe zur U6 Währinger Straße/Volksoper


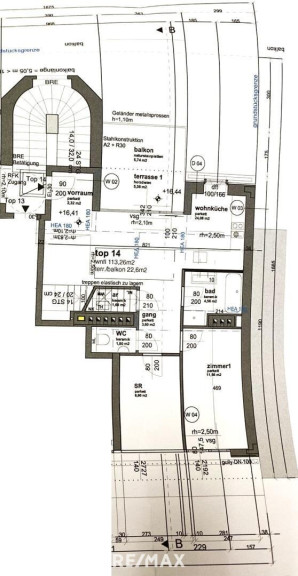
Der Vorraum führt Sie in die ca. 30 m² große, hofseitige Wohnküche mit Zugang zur ca. 11 m² großen, hof- und südseitigen Terrasse.
Aus der Wohnküche gelangen Sie weiters in zwei Zimmer (ca. 9 m² bzw. 12 m²), ein Bad und ein separates WC.
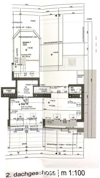
Die Stiege bringt Sie in die 2. Ebene, wo Sie ein ca. 42 m² großes, helles Wohnzimmer mit kompletter Fensterfront und mit Zugang zu einer weiteren ca. 11 m² großen, hof- und südseitigen Terrasse erwartet. Auch auf dieser Ebene finden Sie ein Bad und ein separates WC vor.


Wohnungs-Highlights:
- Top Lage
- pro Ebene eine ca. 11 m² große, hof- und südseitige Terrasse
- Wohnküche mit Terrassenzugang
- 2. Ebene mit Loftcharakter mit kompletter Fensterfront
- Klimaanlage, Fußbodenheizung, elektrische Außenjalousien
- sehr gute öffentliche Anbindung
- sämtliche Einkaufsmöglichkeiten durch Währinger Einkaufsstraße und Kutschkermarkt in der Nähe


Highlights von Lage und Umgebung
- U6 Währinger Straße/Volksoper vor der Haustüre
- Straßenbahnlinien 40, 41 und 42 sowie Buslinie 40A Richtung Schottentor vor der Haustüre
- Währinger Einkaufsstraße vor der Haustüre
- Kutschkermarkt wenige Gehminuten entfernt
- gute Anbindung ans Radverkehrsnetz (Gürtelradweg)
- AKH und Evangelisches Krankenhaus in der Nähe


Monatliche Aufwendungen:
Betriebskostenakonto EUR 280,95
Liftkostenakonto EUR 135,80
Instandhaltungs-Rücklage EUR 143,52
Monatsvorschreibung EUR 560,27



Infrastruktur / Entfernungen

Gesundheit
Arzt <500m
Apotheke <500m
Klinik <500m
Krankenhaus <500m

Kinder & Schulen
Schule <500m
Kindergarten <500m
Universität <500m
Höhere Schule <500m

Nahversorgung
Supermarkt <500m
Bäckerei <500m
Einkaufszentrum <1.500m

Sonstige
Geldautomat <500m
Bank <500m
Post <500m
Polizei <1.000m

Verkehr
Bus <500m
U-Bahn <500m
Straßenbahn <500m
Bahnhof <500m
Autobahnanschluss <2.000m

Angaben Entfernung Luftlinie / Quelle: OpenStreetMap

Eckdaten

Objektnr: 1619/7825
Art: Wohnung - Dachgeschoß
Land: Österreich
Baujahr: 2018
Zustand: Neuwertig
Kaufpreis: 948.000,00
Provision: 3% des Kaufpreises zzgl. 20% USt.
Wohnfläche: 113,00 m²
Zimmer: 4
Bäder: 2
WC: 2
Terrassen: 2
Heizwärmebedarf:  B  48,70 kWh/m²a
Immobilie merken Exposé

Ausstattung

Fußbodenheizung, Personenaufzug


Internet und TV

Information zur Internet und TV Versorgung hier


Immobilie anfragen


Ihre persönliche Beratung

RE/MAX Real Experts Immobilien lifetime GmbH

Hubert Koller

RE/MAX Real Experts Immobilien lifetime GmbH

E h.koller@remax-real-experts.at

T +43 (0)1/ 470 25 00

H +43 (0)699/ 189 28 281