NEUBAUBÜRO nahe PRATERSTERN
Büro / Praxis
,
1020
Wien
Beschreibung der Immobilie
Zur Vermietung gelangen moderne Büroräumlichkeiten in zentraler Lage des 2.Bezirks mit gutem U-Bahnanschluß.
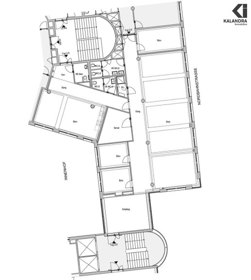
Raumaufteilung:
Vorraum, großer Empfang, 4-8 Büroräume, Küche, Badezimmer, 4 WC, ein Duschbad, Lager-/ Serverraum.
Ausstattung:
- die Räumlichkeiten werden neu adaptiert und ausgemalt übergeben
- Fensterbank-Kabelkanäle
- Raster-Deckenleuchten sind vorhanden
- Hauszentralheizung (Fernwärme)
Zusätzlich zu den oa. Betriebskosten wird ein monatliches Heizkosten-Akonto von Euro 329,- + 20% USt. vorgeschrieben, einmal jährlich findet eine verbrauchsabhängige Abrechnung statt.
Die bestehende Raumaufteilung (siehe Plan) ist abänderbar (Gipskarton-Leichtbauwände).
Die Durchführung kann vom Vermieter organisiert werden, die Kosten für entsprechende Umbauarbeiten müsste der Mieter tragen.
Garagenplätze sind im Haus ab Euro 98,- + 20% USt./ Monat anmietbar.
Angeboten wird ein auf bis zu 10 Jahre befristetes Mietverhältnis mit dreijährigem, mieterseitgen Kündigungsverzicht.
Es werden 6 Bruttomonatsmieten (Bankgarantie möglich) als Kaution verlangt.
Infrastruktur / Entfernungen
Gesundheit
Arzt <500m
Apotheke <500m
Klinik <500m
Krankenhaus <1.500m
Kinder & Schulen
Schule <500m
Kindergarten <500m
Universität <1.500m
Höhere Schule <1.500m
Nahversorgung
Supermarkt <500m
Bäckerei <500m
Einkaufszentrum <2.000m
Sonstige
Geldautomat <500m
Bank <500m
Post <500m
Polizei <500m
Verkehr
Bus <500m
U-Bahn <500m
Straßenbahn <500m
Bahnhof <500m
Autobahnanschluss <2.000m
Angaben Entfernung Luftlinie / Quelle: OpenStreetMap
Eckdaten
| Kaltmiete (netto): | 3.445,91 € |
| Fläche: | 265,07 m² |
| Zimmer: | 8 |
Basisdaten zur Immobilie
| Objektnr: | 18549 |
| Art: | Büro / Praxis |
| Land: | Österreich |
| Baujahr: | 1996 |
| Zustand: | Gepflegt |
| Kaltmiete (netto): | 3.445,91 € |
| Kaltmiete: | 4.299,44 € |
| Provision: | 3 Bruttomonatsmieten zzgl. 20% USt. |
| Betriebskosten: | 853,53 € |
| MwSt Gesamt: | 859,89 € |
| Nutzfläche: | 265,07 m² |
| Zimmer: | 8 |
| WC: | 4 |
| Heizwärmebedarf: | B 49,00 kWh/m²a |
Ausstattung
Zentralheizung, Personenaufzug
Internet und TV
Information zur Internet und TV Versorgung hier
Ihre persönliche Beratung
Mag. Robin Kalandra
robin@kalandra.at
+43-1533326913
+43-69911804004
F +43-1-533-32-69-20

