Traumlage bei der UNO-City – moderne Wohnung mit Loggia

Wohnung - Etage, 1220 Wien , Leonard-Bernstein-Straße

Lage der Immobilie

UNO-City, Vienna International Center, Donau City

Beschreibung der Immobilie

Willkommen in der Leonard-Bernstein-Straße 4–6 – einer der exklusivsten Adressen Wiens!

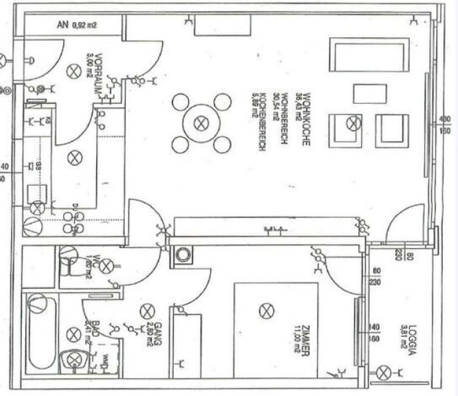
Diese stilvolle, rund 64 m² große Wohnung überzeugt durch ihre außergewöhnliche Lage direkt gegenüber der UNO-City und dem Business District Donau City. Sie befindet sich im 9. Stock eines gepflegten Neubaus mit Lift und bietet einen fantastischen Ausblick sowie ein helles, offenes Wohnambiente.

Die Wohnung wurde kürzlich umfassend modernisiert – Bad, Küche und Böden sind vollständig erneuert. Der großzügige Wohn- und Essbereich mit etwa 36 m² ist lichtdurchflutet und führt direkt auf die Loggia. Die moderne Einbauküche ist mit hochwertigen Markengeräten ausgestattet und bietet reichlich Stauraum. Auch das Schlafzimmer verfügt über einen direkten Zugang zur Loggia.
Das Badezimmer präsentiert sich elegant mit neuer Verfliesung und Badewanne, das WC ist separat.

In allen Wohnräumen wurde ein hochwertiger Vinylboden verlegt, während Bad und WC mit modernen Fliesen ausgestattet sind. Die Wohnung ist barrierefrei zugänglich, verfügt über ein Kellerabteil, und im Haus steht selbstverständlich ein Lift zur Verfügung.

Ein Garagenplatz in der hauseigenen Tiefgarage kann bei Bedarf zusätzlich angemietet werden.

Die Lage zählt zu den begehrtesten in Wien: direkt vis-à-vis der UNO-City, nur wenige Schritte von der U1-Station „VIC“ entfernt – mit direkter Verbindung ins Stadtzentrum und zum Hauptbahnhof. Der Donaupark und die Donauinsel bieten ideale Freizeitmöglichkeiten direkt vor der Haustür.
Im Umfeld des DC Towers sorgen Geschäfte, Cafés und Restaurants für urbanen Komfort und eine ausgezeichnete Infrastruktur.


Lage und Umgebung: 

Diese Wohnung befindet sich im pulsierenden Zentrum der Donau City, direkt gegenüber der UNO-City (Vienna International Centre), die nur rund 300 Meter entfernt liegt und in wenigen Gehminuten erreichbar ist.

Die U-Bahn-Linie U1 (Station VIC – Vienna International Centre) befindet sich ebenfalls in unmittelbarer Nähe und bringt Sie in kürzester Zeit bequem ins Stadtzentrum oder zum Hauptbahnhof. Auch der Vienna Airport Bus ist in wenigen Minuten erreichbar – perfekt für Vielflieger und internationale Berufstätige.

Die Lage besticht durch ihre unmittelbare Nähe zu Wiens bedeutendsten Business-Hotspots:

  • Saturn Tower – ca. 2 Gehminuten

  • Andromeda Tower – ca. 3 Gehminuten

  • Ares Tower – ca. 3 Gehminuten

  • DC Tower – ca. 4 Gehminuten

Diese herausragende Infrastruktur macht den Standort ideal für Berufstätige, die urbanes Wohnen mit internationaler Vernetzung kombinieren möchten.

Auch für Freizeit und Erholung ist bestens gesorgt: Der weitläufige Donaupark lädt zum Spazieren, Sporteln und Entspannen ein, während die beliebte Donauinsel ideale Möglichkeiten zum Radfahren, Laufen oder Erholen am Wasser bietet – alles bequem zu Fuß erreichbar.

Noch nichts gefunden? Wir informieren Sie über geeignete Immobilienangebote noch vor allen anderen.
Legen Sie jetzt Ihren individuellen Suchagenten unter folgendem Link an. Wir schicken Ihnen passende Immobilien exklusiv vorab zu.
Suchagent anlegen - https://accenta-immobilien.service.immo/registrieren/de

Der Immobilienmakler erklärt, dass er – entgegen dem in der Immobilienwirtschaft üblichen Geschäftsgebrauch des Doppelmaklers – einseitig nur für den Vermieter tätig ist.

Sie wollen auch Ihre Immobilien Verkaufen oder Vermieten?

Accenta Immobilien - Ihr Partner für Immobilienvermittlung
www.accenta-immo.at
01/997 12 93
 

Infrastruktur / Entfernungen

Gesundheit
Arzt <750m
Apotheke <500m
Klinik <1.500m
Krankenhaus <2.250m

Kinder & Schulen
Schule <250m
Kindergarten <500m
Universität <2.000m
Höhere Schule <2.750m

Nahversorgung
Supermarkt <250m
Bäckerei <500m
Einkaufszentrum <2.000m

Sonstige
Geldautomat <500m
Bank <500m
Post <250m
Polizei <750m

Verkehr
Bus <250m
U-Bahn <500m
Straßenbahn <1.500m
Bahnhof <500m
Autobahnanschluss <250m

Angaben Entfernung Luftlinie / Quelle: OpenStreetMap

Eckdaten

Objektnr: 11446
Art: Wohnung - Etage
Land: Österreich
Alter: Neubau
Gesamtmiete: 1.384,00
Kaltmiete (netto): 1.384,00 €
Kaltmiete: 1.384,00 €
Provision: Gemäß Erstauftraggeberprinzip bezahlt der Abgeber die Provision.
Wohnfläche: 64,00 m²
Zimmer: 2
Bäder: 1
WC: 1
Immobilie merken Exposé

Ausstattung

Wohnküche / offene Küche, Personenaufzug, Badewanne


Internet und TV

Information zur Internet und TV Versorgung hier


Immobilie anfragen


Ihre persönliche Beratung

Accenta Immobilien e.U.

Martina Schütz

Accenta Immobilien e.U.

E martina.schuetz@accenta-immo.at

T +43 1 9971293

H +43 699 17089345

F +43 1 997129310