Moderene Büro / Kanzlei / Praxisfläche in Ried im Innkreis - flexibele und helle Räume
Büro / Praxis
- Bürofläche,
4910
Ried im Innkreis
,
Weberzeile 20-22
Lage der Immobilie
Die Mietimmobilie in Ried im Innkreis überzeugt durch seine zentrale Lage und optimale Erreichbarkeit. In unmittelbarer Nähe befinden sich wichtige Einrichtungen wie Arztpraxen, Apotheken, die eine hohe Frequentierung garantieren. Einkaufsmöglichkeiten wie Supermärkte, Bäckereien und ein Einkaufszentrum runden das Angebot ab. Verkehrsanbindungen durch Bus und Bahnhof sind ebenfalls gegeben, was die Erreichbarkeit für Kunden und Mitarbeiter erleichtert.Beschreibung der Immobilie
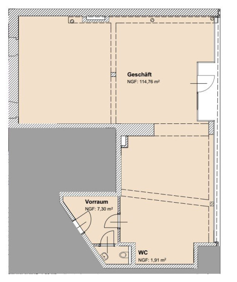
Entdecken Sie die ideale Gelegenheit für Ihr Gewerbe im Herzen von Ried im Innkreis! Dieses attraktive Mietfläche im Erdgeschoss bietet Ihnen eine großzügige 124 m² und ist perfekt geeignet für Büro / Kanzlei / Praxis oder Dienstleistungsangebote.
Sie erhalten hier nicht nur eine erstklassige Lage, sondern auch eine unschlagbare Sichtbarkeit. Nutzten Sie diese die zentrale Position in einer stark frequentierten Umgebung.
Darüber hinaus profitieren Sie von einer hervorragenden Infrastruktur in der Umgebung. In nur wenigen Gehminuten erreichen Sie wichtige Einrichtungen wie Arztpraxen oder Apotheken.
Die Verkehrsanbindung könnte nicht besser sein: Profitieren Sie von einer gute Anbindungen an den öffentlichen Nahverkehr, sei es mit dem Bus oder dem Bahnhof in der Nähe.
Nutzen Sie diese einmalige Chance, um sich in einer lebendigen und dynamischen Umgebung zu etablieren. Die Kombination aus hervorragender Erreichbarkeit, einer Vielzahl an Dienstleister in der Nähe und einer ansprechenden Fläche macht diese Immobilie zu einem perfekten Standort für Ihre unternehmerischen Visionen.
Lassen Sie sich diese Chance nicht entgehen! Kontaktieren Sie uns noch heute, um weitere Informationen zu erhalten oder einen Besichtigungstermin zu vereinbaren. Ihr neues Geschäftslokal in Ried im Innkreis wartet auf Sie!
Hauptmietzins 1.682,27 €
Betriebskosten 322,49 €
Heizkosten 99,22 €
Umsatzsteuer 20% 420,80 €
Gesamtmietzins 2.524,77 €/Monat / brutto
optional: PKW-Stellplatz in der Tiefgarage € 90,00 / Monat / brutto
Mietbeginn: Bezug ab sofort möglich
Kaution: drei Bruttomonatsmieten mittels Überweisung oder in Form einer Bankgarantie
Vergebührung: Die Kosten der Vergebührung sind vom Mieter zu tragen.
Energiekennzahl: HWB-ref 23,5 kWh/m²
Wertsicherung: Verbraucherpreisindex 2020
Vermittlungsprovision: Das Erfolgshonorar der Firma AREV Immobilien GmbH für die Vermittlungstätigkeit sowie aller damit zusammenhängenden Tätigkeiten beträgt bei Zustandekommen eines gültigen Rechtsgeschäftes drei Bruttomonatsmieten zzgl. 20 % USt.
Rechtsgrundlage der Vermittlungstätigkeit sowie der in diesem Zusammenhang stehenden Provision ist die Immobilienmaklerverordnung 1996 idgF. Auf die Funktion als Doppelmakler sowie der Fa. AREV als Hausverwalter wurde hingewiesen.
Der Vermittler ist als Doppelmakler tätig.
Infrastruktur / Entfernungen
Gesundheit
Arzt <200m
Apotheke <225m
Klinik <200m
Krankenhaus <675m
Kinder & Schulen
Schule <300m
Kindergarten <325m
Höhere Schule <675m
Nahversorgung
Supermarkt <75m
Bäckerei <75m
Einkaufszentrum <25m
Sonstige
Bank <200m
Geldautomat <250m
Polizei <400m
Post <375m
Verkehr
Bus <100m
Bahnhof <750m
Autobahnanschluss <5.300m
Angaben Entfernung Luftlinie / Quelle: OpenStreetMap
Eckdaten
| Kaltmiete (netto): | 1.682,27 € |
| Fläche: | 124,00 m² |
Basisdaten zur Immobilie
| Objektnr: | 1937/7645915 |
| Art: | Büro / Praxis - Bürofläche |
| Land: | Österreich |
| Kaltmiete (netto): | 1.682,27 € |
| Kaltmiete: | 2.017,09 € |
| Provision: | 7.261,52 € inkl. 20% USt. |
| Betriebskosten: | 334,82 € |
| Heizkosten: | 111,63 € |
| MwSt Gesamt: | 425,74 € |
| Gesamtfläche: | 124,00 m² |
| Heizwärmebedarf: | 23,50 kWh/m²a |
Ausstattung
Tiefgarage
Internet und TV
Information zur Internet und TV Versorgung hier
Ihre persönliche Beratung
Mathilde Feichtenschlager
AREV Immobilien GmbH
mathilde.feichtenschlager@arev.at
+43 7752 85885 305
+43 6648185369
