Immobilie merken

ERSTBEZUG in sanierten Altau | Sonnige 3-Zimmerwohnung an der U1

Wohnung , 1100 Wien

Beschreibung der Immobilie

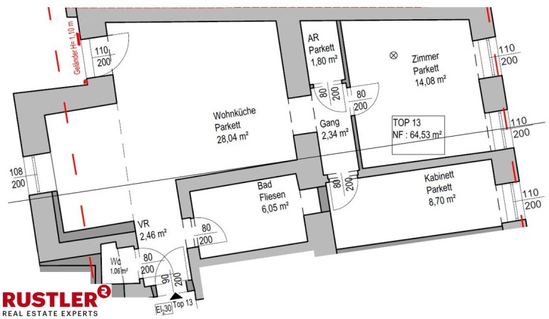
Objektbeschreibung In einer ruhigen Seitengasse, und doch mitten im Leben, erwartet Sie ein liebevoll saniertes Gründerzeitwohnhaus mit Geschichte und Charakter. Die Liegenschaft in der Senefeldergasse wurde umfassend saniert und überzeugt durch stilvolle Details und moderner Infrastruktur. Im neu ausgebauten Dachgeschoss befindet sich das absolute Highlight - 4 Maisonettewohnungen mit einladenden Terrassenflächen, sowie eine kompakte moderne 3-Zimmerwohnung. Das Gebäude wurde von Grund auf saniert - verfügt nun über neu geschaffene Kellerabteile, Aufzug, ein einladendes Stiegenhaus sowie einer wunderschönen Hausfassade. Dabei wurde großer Wert darauf gelegt, den authentischen Altbaucharme zu bewahren und mit zeitgemäßer Wohnqualität zu verbinden. Die Wohnung Top 13 verfügt über 64,53 m² und teilt sich wie folgt auf: - Vorraum - Wohnküche - Zimmer - Kabinett - Gang - Abstellraum - Bad - WC Zum Verkauf stehen 13 sanierte Altbauwohnungen in den Regelgeschossen, sowie 5 neu geschaffenen Dachgeschosswohnungen. Exklusive Wohneinheiten mit Größen von ca. 40m² bis 105m² und 2 bis 4 Zimmern - jede einzelne mit einem klaren Fokus auf Qualität, Design und Wohngefühl. Ausstattung Alle Wohnungen befinden sich im Erstbezug. Die Ausstattung lässt keine Wünsche offen: - Wärmeversorgung durch Fernwärme - komfortables Heizen durch Fußbodenheizung - elektrischer Wandheizkörper in den Badezimmern - exklusive Parkettböden in allen Wohn- und Schlafräumen - großformatige Fliesen in den Sanitärbereichen - Badewannen oder bodenbündige Duschen mit - qualitativ hochwertigen Armaturen - massive Wohnungseingangstüren mit Einbruchsschutz - hochwertige Fenster und Fenstertüren - Kabel-TV sowie Internet-Anschlüsse - Fahrradabstellraum - Großzügige Grundrisse mit viel Licht und wohlfühlender Raumhöhe Lage Die Senefeldergasse ist eine beruhigte Seitengasse inmitten des traditionellen Favoritenviertels. Die Umgebung bietet eine ausgezeichnete Mischung aus urbanem Lebensgefühl und Naherholung: In Gehweite befinden sich zahlreiche Einkaufsmöglichkeiten, gemütliche Cafés, Restaurants, Schulen und Kindergärten. Die nahegelegene Favoritenstraße bietet eine Vielzahl an Geschäften und eine direkte Anbindung an das öffentliche Verkehrsnetz - die U1-Station "Reumannplatz" sowie mehrere Straßenbahn- und Buslinien sind rasch fußläufig erreichbar. In wenigen Minuten gelangt man so sowohl in die Wiener Innenstadt als auch zum Erholungsgebiet Wienerberg und Oberlaa.

Eckdaten

Objektnr: 141/84233
Art: Wohnung
Land: Österreich
Alter: Altbau
Kaufpreis: 319.000,00
Provision: 3%
Wohnfläche: 64,53 m²
Zimmer: 2
Bäder: 1
WC: 1
Heizwärmebedarf:  C  54,35 kWh/m²a
fGEE:  B  0,90

Ausstattung

Fernwärme, Personenaufzug



Internet und TV

Information zur Internet und TV Versorgung hier




Immobilie anfragen




Ihre persönliche Beratung

Rustler Immobilientreuhand

Timo Kohlweiss

Rustler Immobilientreuhand

kohlweiss@rustler.eu

+43 1 8949749683

+43 676 834 34 683


Rustler Immobilientreuhand - Immobilen Makler

Mariahilfer Straße 196/Eingang Lehnergasse 3, 1150 Wien

https://www.rustler.eu