Beschreibung der Immobilie
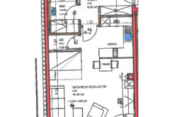
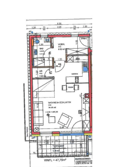
Diese moderne Einheit im Erdgeschoss bietet Ihnen auf 47m² Fläche alles, was Sie für ein komfortables und stilvolles Büro oder Praxis benötigen.
Beim Betreten des Mietobjekts werden Sie sofort von einem hellen und freundlichen Ambiente empfangen. Die hochwertigen Fliesen- und Parkettböden verleihen ein modernes und edles Design. Die im Mietpreis inkludierte Fußbodenheizung (Luftwärmepumpe) sorgt das ganze Jahr über für ein angenehmes Raumklima und lässt Sie die kalten Wintermonate vergessen.
Ein besonderes Highlight ist der Garten welcher Sie und Ihre Kunden in Pausen zum Entspannen und Genießen einlädt.
Die Einbauküche lässt keine Wünsche offen und ist mit modernsten Geräten ausgestattet.
Der Personenaufzug ermöglicht Ihnen und Ihren Kunden ein bequemes Erreichen, der Zugang ist barrierefrei von allen Stellplatzmöglichkeiten erreichbar.
Jeder Mieteinheit ist ein Kellerabteil zugeordnet. Ein Stellplatz im Freien kann kostenlos benutzt werden. Die überdachten Stellplätze werden vermietet und fix zugewiesen, bei Interesse sprechen Sie uns gerne darauf an.
Eckdaten
| Gesamtmiete: | 811,93 € |
| Fläche: | 47,75 m² |
Basisdaten zur Immobilie
| Objektnr: | 4166 |
| Art: | Wohnung |
| Land: | Österreich |
| Baujahr: | 2019 |
| Zustand: | Gepflegt |
| Alter: | Neubau |
| Gesamtmiete: | 811,93 € |
| Kaltmiete (netto): | 574,57 € |
| Kaltmiete: | 676,61 € |
| Betriebskosten: | 102,04 € |
| MwSt Gesamt: | 135,32 € |
| Wohnfläche: | 47,75 m² |
| Bäder: | 1 |
| WC: | 1 |
| Garten: | 45,00 m² |
| Keller: | 5,00 m² |
| Heizwärmebedarf: | B 43,90 kWh/m²a |
| fGEE: | A 0,74 |
Ausstattung
Parkett, Fliesen, Fußbodenheizung, Einbauküche, Personenaufzug, Dusche, Reinigungsservice, Kabel/Satelliten-TV, Parkplatz
Internet und TV
Information zur Internet und TV Versorgung hier
Ihre persönliche Beratung
Verena Kolm
J. u. E. Wild Immobilientreuhänder GmbH
vk@immobilienwild.at
+43 1/6163277-248
+43 664/88223773
F +43 1/616 32 77-216
