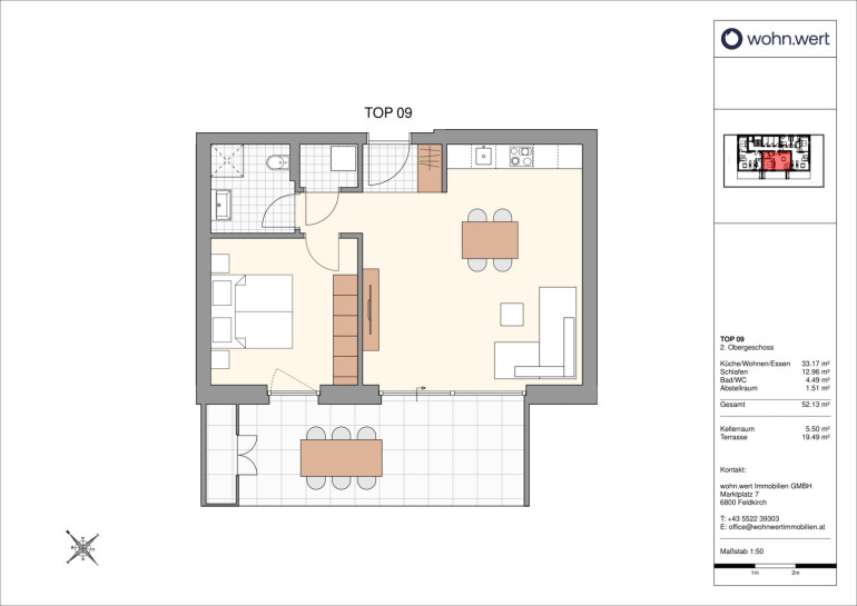
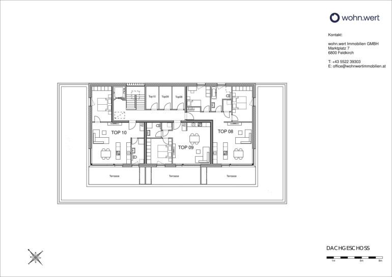
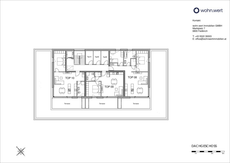
Wohnanlage "Glattenstein" - Geräumige 2-Zimmer-Dachgeschosswohnung - Top 9
Wohnung
- Dachgeschoß,
6840
Götzis
,
Kalkofenweg 24 B+C
Lage der Immobilie
Die Wohnanlage "Glattenstein" am Kalkofenweg in Götzis bietet eine hervorragende Lage für Familien und Pendler. In unmittelbarer Nähe finden Sie alles, was Sie für den Alltag benötigen: Arzt, Apotheke, Schule und Kindergarten sind bequem erreichbar. Supermärkte, Bäckereien und Banken sorgen für eine optimale Versorgung. Auch die Anbindung an den öffentlichen Nahverkehr sowie die Autobahn ist ideal, was die Erreichbarkeit der Umgebung erleichtert. Ein perfekter Ort zum Leben!Beschreibung der Immobilie
Wohnbauförderung möglich!
In Götzis entsteht eine moderne Kleinwohnanlage mit insgesamt nur zehn Wohneinheiten – ideal für all jene, die ein hochwertiges, ruhiges und zugleich nachhaltiges Zuhause suchen.
Die gut geschnittenen 2- bis 5-Zimmer-Wohnungen überzeugen durch funktionale Grundrisse, eine hochwertige Ausstattung sowie helle, einladende Wohnräume. Die Lage verbindet angenehme Wohnruhe mit einer schnellen Anbindung an das Zentrum – perfekt für alle, die Wert auf Komfort und Alltagstauglichkeit legen.
Besondere Highlights:
🏡 Attraktive 2- bis 5-Zimmer-Wohnungen – passend für Paare, Singles und Familien
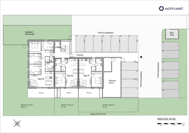
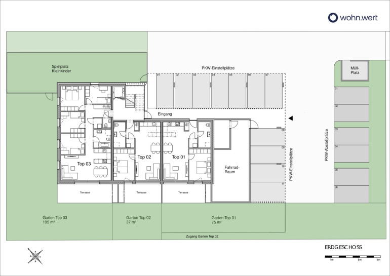
🚗 11 überdachte KFZ-Abstellplätze und 2 Aussenabstellplätze direkt bei der Wohnanlage
🚗 4 Besucherparkplätze für Ihre Gäste
📦 Praktische Terrassenboxen für zusätzlichen Stauraum
🌱 Effiziente Luftwärmepumpe und Photovoltaikanlage für nachhaltiges Wohnen
🔥 Behagliche Fußbodenheizung für ein angenehmes Wohnklima
🌐 Glasfaseranschluss – ideal für Homeoffice, Arbeiten und Streaming
Dieses Projekt vereint moderne Architektur, umweltbewusste Technik und eine wohldurchdachte Wohnqualität – ein langlebiges Zuhause zum Wohlfühlen und Ankommen.
Sonderwünsche noch leicht umsetzbar.
In dieser Phase haben Sie die seltene Gelegenheit, aktiv an der Gestaltung Ihres künftigen Zuhauses teilzunehmen. Gemeinsam mit dem erfahrenen Team von der wohn.wert Immobilien GmbH können Sie Sonderwünsche und Anpassungen einbringen, um sicherzustellen, dass Ihr neues Zuhause Ihren ganz persönlichen Lebensstil widerspiegelt.
Fazit:
Dieses Neubauprojekt verbindet klare Architektur, Wohnkomfort und nachhaltige Bauweise zu einem stimmigen Gesamtkonzept. Durchdachte Grundrisse, moderne Technik und eine ruhige Lage mit guter Erreichbarkeit schaffen ein Wohnumfeld, das gleichermaßen Entspannung wie Alltagstauglichkeit bietet.
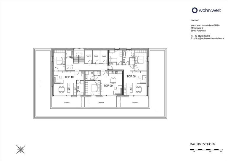
Insgesamt entstehen zehn hochwertige Eigentumswohnungen, die ein anspruchsvolles Zuhause für unterschiedliche Lebenssituationen bieten.
Jetzt melden – und schon bald Ihr neues Zuhause in Götzis entdecken!
Unsere Angaben beziehen sich auf die Auskünfte des Eigentümers. Irrtum und Änderungen vorbehalten.
Noch nichts gefunden? Wir informieren Sie über geeignete Immobilienangebote noch vor allen anderen.
Legen Sie jetzt kostenlos Ihren individuellen Suchagenten unter folgendem Link an. Wir schicken Ihnen passende Immobilien exklusiv vorab zu.
Suchagent anlegen
Wir weisen darauf hin, dass zwischen dem Vermittler und dem zu vermittelnden Dritten ein familiäres oder wirtschaftliches Naheverhältnis besteht.
Infrastruktur / Entfernungen
Gesundheit
Arzt <850m
Apotheke <700m
Krankenhaus <5.000m
Kinder & Schulen
Schule <825m
Kindergarten <625m
Höhere Schule <1.075m
Nahversorgung
Supermarkt <300m
Bäckerei <400m
Einkaufszentrum <5.825m
Sonstige
Bank <550m
Geldautomat <550m
Post <1.025m
Polizei <1.025m
Verkehr
Bus <350m
Bahnhof <1.025m
Autobahnanschluss <950m
Flughafen <7.750m
Angaben Entfernung Luftlinie / Quelle: OpenStreetMap
Eckdaten
| Kaufpreis: | 375.000,00 € |
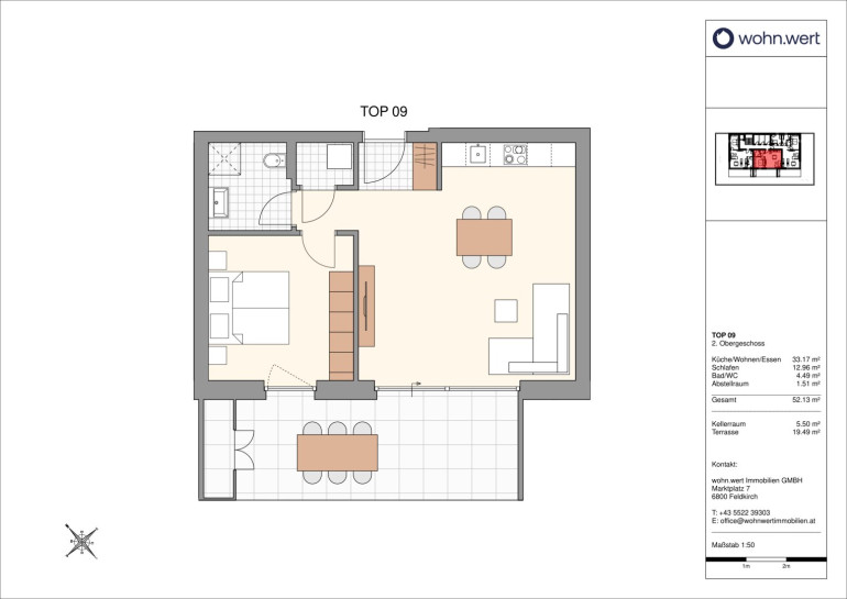
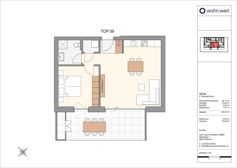
| Fläche: | 52,13 m² |
| Zimmer: | 2 |
Basisdaten zur Immobilie
| Objektnr: | 5681/594 |
| Art: | Wohnung - Dachgeschoß |
| Land: | Österreich |
| Baujahr: | 2026 |
| Zustand: | Erstbezug |
| Alter: | Neubau |
| Kaufpreis: | 375.000,00 € |
| Kaufpreis / m²: | auf Anfrage |
| Wohnfläche: | 52,13 m² |
| Zimmer: | 2 |
| Bäder: | 1 |
| WC: | 1 |
| Terrassen: | 1 |
| Stellplätze: | 1 |
| Keller: | 5,50 m² |
| Heizwärmebedarf: | B 31,16 kWh/m²a |
| fGEE: | A+ 0,63 |
Ausstattung
Fliesen, Parkett, Fußbodenheizung, Wohnküche / offene Küche, Personenaufzug, Dusche, Reinigungsservice, Kabel/Satelliten-TV, Parkplatz
Internet und TV
Information zur Internet und TV Versorgung hier
Ihre persönliche Beratung
Mag. Daniel Ströhle
Rimo Immobilien GmbH
info@rimo.at
+43 5522 39303 21
