Nahe Stephansplatz - ERSTBEZUG ab 15.1.2026 - erstklassig saniertes Büro mit untergeordneter Wohnungsnutzung - Altbau - Mezzanin

Büro / Praxis , 1010 Wien,Innere Stadt , Singerstraße 14

Beschreibung der Immobilie

Nahe Stephansplatz!

In einem prachtvollen Jahrhundertwendehaus liegt diese 65 m² große Bürofläche im Mezzanin.
Sie wurde komplett saniert.

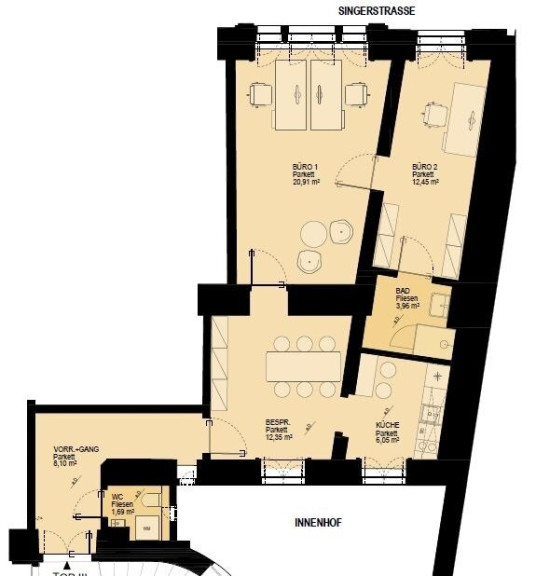
Bitte beachten Sie den Grundriss. Die 3 Zimmer sind nicht getrennt begehbar bzw. Durchgangszimmer.

Die Bürofläche bietet

  • zwei Zimmer (ca. 21,91 und 12,45 m²)
  • ein Besprechungszimmer (=Durchgangszimmer, ca. 12,35 m²)
  • ein attraktives Badezimmer mit Dusche
  • eine Gäste-Toilette
  • ein einladendes Vorzimmer

Die Fläche wird auf 5 Jahre befristet vermietet, die Miete beträgt € 1.918,12 und versteht sich inkl. BK und USt.:

Nettomiete:   € 1.441,22
Netto BK:      €  157,22
USt. 20%:     €  319,68 

Die Kaution beträgt € 5.754,00.

Die Lage ist sensationell. Sie wohnen nur 2 Gehminuten vom Stephansplatz und der U1 und U3 entfernt.
Genießen Sie die Geschäfte, Cafés, Museen und Theater der Wiener Innenstadt!

Wir verweisen auf ein wirtschaftliches Naheverhältnis zum Vermieter.

Wir weisen darauf hin, dass zwischen dem Vermittler und dem zu vermittelnden Dritten ein familiäres oder wirtschaftliches Naheverhältnis besteht.

Infrastruktur / Entfernungen

Gesundheit
Arzt <275m
Apotheke <100m
Klinik <625m
Krankenhaus <975m

Kinder & Schulen
Schule <100m
Kindergarten <700m
Universität <200m
Höhere Schule <325m

Nahversorgung
Supermarkt <100m
Bäckerei <100m
Einkaufszentrum <575m

Sonstige
Geldautomat <75m
Bank <25m
Post <350m
Polizei <300m

Verkehr
Bus <175m
U-Bahn <150m
Straßenbahn <425m
Bahnhof <150m
Autobahnanschluss <3.200m

Angaben Entfernung Luftlinie / Quelle: OpenStreetMap

Eckdaten

Objektnr: 960/73262
Art: Büro / Praxis
Land: Österreich
Alter: Altbau
Kaltmiete (netto): 1.441,22 €
Kaltmiete: 1.598,44 €
Miete / m²: 22,00 €
Provision: 3 Bruttomonatsmieten
Betriebskosten: 157,22 €
MwSt Gesamt: 319,68 €
Nutzfläche: 65,51 m²
Bürofläche: 65,51 m²
Zimmer: 3
Bäder: 1
WC: 1
Heizwärmebedarf:  C  95,20 kWh/m²a
fGEE:  D  1,82
Immobilie merken Exposé

Ausstattung

Fliesen, Parkettboden, Gas, Etagenheizung, Einbauküche, Personenaufzug, Dusche


Internet und TV

Information zur Internet und TV Versorgung hier


Immobilie anfragen


Ihre persönliche Beratung

Region Wien & NÖ Ost

Mag. Alexander Kepka

s REAL Immobilienvermittlung GmbH

E alexander.kepka@sreal.at

T +43 (0)5 0100 - 26330

H +43 664 8181970