FERTIGSTELLUNG 12/2026 - Top Wohnung mit VIER SCHLAFZIMMER plus TOLLER TERRASSE!

Wohnung - Etage, 8962 Gröbming

Beschreibung der Immobilie

Von RE/MAX Nature zum Kauf angeboten wird eine tolle und sehr großzügige Neubauwohnung in Gröbming im Ortsteil Winkl.
Die Lage etwas außerhalb von Gröbming (vier Autominuten vom Zentrum entfernt), in Richtung Stoderzinken, ist eine Ruheoase und bietet eine wundervolle Basis zum Wohlfühlen.

Das Haus umfasst gesamt nur 5 Einheiten - alle mit durchdachten Grundrissen geplant - und wird in massiver Holzbauweise errichtet.
Unzählige Sonnenstunden und eine angenehme Umgebung, verbunden mit den Gröbminger Bergen - das garantiert absolute Lebensqualität!
Heimische Firmen und Professionisten werden dafür Sorge tragen, dass alles in feinster Manier ausgeführt wird und Sie als künftiger Eigentümer dauerhaft eine Freude mit der Immobilie haben werden.

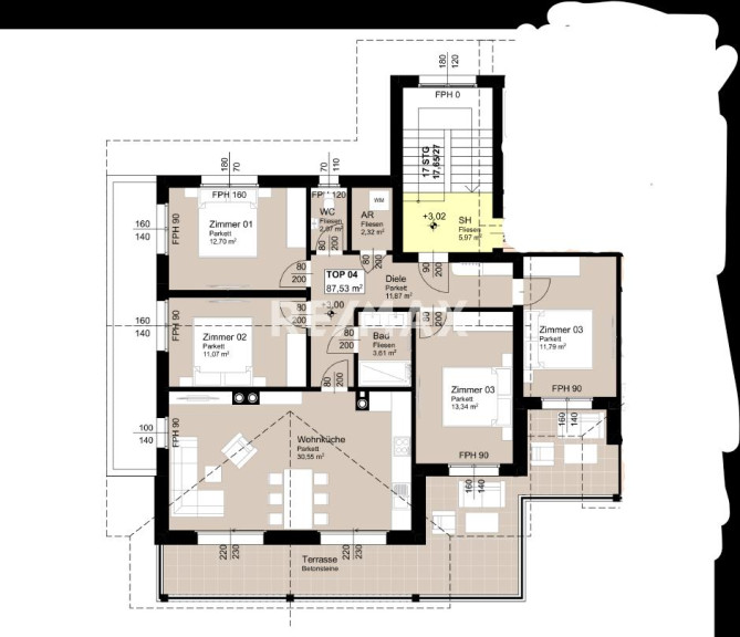
Die gegenständliche Wohnung TOP 4/2 ist im OG angesiedelt und hat bei einer Gesamtfläche von ca. 99,32m² folgende Raumaufteilung vorzuweisen:
Diele ca. 11,87m²
Abstellraum ca. 2,32m²
WC ca. 2,07m²
Bad ca. 3,61m²
Zimmer 1 ca. 12,70m²
Zimmer 2 ca. 11,07m²
Zimmer 3 ca. 13,34m²
Zimmer 4 ca. 11,79m²
Wohnküche ca. 30,55m²

Terrasse ca. 27,00m²
Keller ca. 6,85m²

Anpassungen des Grundrisses sind derzeit grundsätzlich noch möglich und können mit dem Bauträger bezüglich Machbarkeit und Kosten besprochen werden.

HINWEIS: NETTOKAUF für Anleger (Vermietung, touristische Vermietung) ist möglich, der NETTOKAUFPREIS beträgt € 455.000.-

Ein Carport-Stellplatz muss gegen den Aufpreis von € 16.000.- dazu gekauft werden; ein Freiparker ist im Aufpreis mit inkludiert
Ein Kaminanschluss ist gegen den Aufpreis von € 4.500.- möglich.

Erfüllen Sie sich Ihren Traum von einer tollen Wohnung im wunderschönen Gröbming!
Ein Zweit-, Neben- oder Ferienwohnsitz wird vonseiten der Gemeinde ausdrücklich nicht gestattet!

Auf ein wirtschaftliches Naheverhältnis von RE/MAX Nature zum Abgeber wird ausdrücklich hingewiesen!

Die Marktgemeinde Gröbming ist nicht umsonst der Ort mit einem der größten Bevölkerungszuwächse im Ennstal: eine ausgezeichnete Infrastruktur, ein umfangreiches Vereins- und Freizeitangebot, aber nicht zuletzt die zentrale Lage im Tal machen es zu einem besonders lebenswerten Fleckchen.
Folgende Einrichtungen/ Angebote sind geboten:
katholische und evangelische Kirche
Einkaufszentrum (Pizzeria, Frisör, Bäckerei, Post, Florist, Supermarkt etc.)
Kindergarten, Volksschule, Mittelschule, Fachschule für Land- und Ernährungswirtschaft
ausgezeichnete Speiserestaurants
hauseigener Abenteuerberg (Stoderzinken) mit Zipline
im Winter Langlaufloipe
im Sommer unzählige Wander- und Radwege

Wenn Sie Fragen haben oder eine Besichtigung machen möchten, rufen Sie bitte einfach an oder schreiben uns eine E-Mail.
PS BITTE BEACHTEN SIE, DASS WIR AUFGRUND DER NACHWEISPFLICHT GEGENÜBER DEM EIGENTÜMER NUR ANFRAGEN UNTER ANGABE DER VOLLSTÄNDIGEN ANSCHRIFT SAMT TELEFONNUMMER BEARBEITEN KÖNNEN, DIESEN ANFORDERUNGEN NICHT GERECHT WERDENDE ANFRAGEN MÜSSEN LEIDER UNBEANTWORTET BLEIBEN!
Angaben gemäß gesetzlichem Erfordernis:
Heizwärmebedarf:55.9 kWh/(m²a)
Klasse Heizwärmebedarf:C
Faktor Gesamtenergieeffizienz:0.58
Klasse Faktor Gesamtenergieeffizienz:A+

Eckdaten

Objektnr: 2445_3050
Art: Wohnung - Etage
Land: Österreich
Baujahr: 2026
Zustand: Erstbezug
Alter: Neubau
Kaufpreis: 499.000,00
Provision: 3.00 %
Wohnfläche: 100,00 m²
Zimmer: 5
Bäder: 1
WC: 2
Terrassen: 1
Stellplätze: 1
Keller: 6,85 m²
Heizwärmebedarf:  C  55,90 kWh/m²a
fGEE:  A+  0,58
Immobilie merken Exposé

Ausstattung

Erdwärme, Zentralheizung, Parkplatz


Internet und TV

Information zur Internet und TV Versorgung hier


Immobilie anfragen


Ihre persönliche Beratung

RE/MAX Nature 1 in Liezen

Marco Schwab

RE/MAX Nature 1 in Liezen

E m.schwab@remax-nature.at

T +4336123026241