Ertrag ab dem ersten Tag: Bereits vermietete 2-Zimmer-Anlegerwohnung mit Garten im Wohnpark Neulengbach
Wohnung
,
3040
Neulengbach
,
Kabanenweg
Beschreibung der Immobilie
Das Wichtigste auf einen Blick
- Bereits vermietet & sofort ertragsstark – perfektes Anlageobjekt
- Neubau 2024: hochwertige Bauweise & moderne Ausstattung für niedrige Betriebskosten
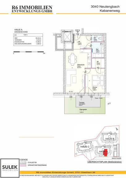
- 2-Zimmer-Wohnung mit 56,2 m², begehbare Garderobe, Abstellraum, Bad & WC getrennt, Terrasse und Garten
- Kaufpreis für Anleger: EUR 220.365,– zzgl. 20 % USt
Die ausführliche Beschreibung:
Am Kabanenweg in Neulengbach, nahe dem Freibad und nur wenige Minuten vom Bahnhof entfernt, entstand 2024 eine moderne Wohnhausanlage mit 30 Wohnungen in drei Baukörpern mit gemeinsamer Tiefgarage. Die nachhaltige Haustechnik – Erdwärme-Fußbodenheizung mit Kühlfunktion, außenliegender Sonnenschutz und Photovoltaik – sorgt für langfristige Wertbeständigkeit.
Die Wohnung Top 3 im Erdgeschoß von Haus 1 wird bereits vermietet übergeben – und ermöglicht damit Ertrag ab dem ersten Tag. Die moderne, energieeffiziente Bauweise schafft eine solide Grundlage für nachhaltige Vermietbarkeit. Das durchdachte Raumprogramm mit 56,2 m², zwei Zimmern, Vorraum, begehbare Garderobe, Badezimmer und separatem WC sowie die rund 8 m² große Terrasse und dem daran anschließenden Garten bieten zeitgemäßen Wohnkomfort, ein Kellerabteil ist inkludiert. Die hochwertige Ausstattung reduziert den laufenden Instandhaltungsaufwand – ein wesentlicher Vorteil für Anleger.
Die Stadtgemeinde Neulengbach überzeugt mit hoher Lebensqualität: viel Grün zum Laufen, Radfahren und Wandern sowie das Freibad mit Tennisplätzen direkt nebenan. Eine sehr gute Infrastruktur mit Nahversorgern, Schulen und Freizeitangeboten ergänzt das Angebot. Der Bahnhof ist nur 900 Meter entfernt – mit ca. 35 Minuten nach Wien und rund 20 Minuten nach St. Pölten. Dank der Nähe zur Westautobahn (A1) ist die Lage besonders attraktiv für Pendler und Familien – ein zusätzlicher Vorteil für die Vermietbarkeit.
Auf ein wirtschaftliches Naheverhältnis zum Auftraggeber sowie die Doppelmaklertätigkeit wird ausdrücklich hingewiesen.
Noch nichts gefunden? Wir informieren Sie über geeignete Immobilienangebote noch vor allen anderen.
Legen Sie jetzt Ihren individuellen Suchagenten unter folgendem Link an. Wir schicken Ihnen passende Immobilien exklusiv vorab zu.
Suchagent anlegen - https://sulek-immobilien.service.immo/registrieren/de
Infrastruktur / Entfernungen
Gesundheit
Arzt <1.250m
Apotheke <1.000m
Klinik <9.750m
Kinder & Schulen
Schule <750m
Kindergarten <1.250m
Nahversorgung
Supermarkt <500m
Bäckerei <1.000m
Sonstige
Bank <1.000m
Geldautomat <1.000m
Post <1.000m
Polizei <750m
Verkehr
Bus <250m
Autobahnanschluss <4.250m
Bahnhof <1.000m
Angaben Entfernung Luftlinie / Quelle: OpenStreetMap
Eckdaten
| Objektnr: | 26143 |
| Art: | Wohnung |
| Land: | Österreich |
| Baujahr: | 2024 |
| Zustand: | Erstbezug |
| Alter: | Neubau |
| Kaufpreis: | 220.365,00 € |
| Kaufpreis / m²: | 3.918,30 € |
| Provision: | 3% des Kaufpreises zzgl. 20% USt. |
| Betriebskosten: | 97,58 € |
| Heizkosten: | 10,97 € |
| MwSt Gesamt: | 16,17 € |
| Wohnfläche: | 56,24 m² |
| Zimmer: | 2 |
| Bäder: | 1 |
| WC: | 1 |
| Terrassen: | 1 |
| Garten: | 12,09 m² |
| Heizwärmebedarf: | A 25,00 kWh/m²a |
| fGEE: | A++ 0,39 |
Ausstattung
Parkett, Fliesen, Erdwärme, Solarenergie, Fußbodenheizung, Zentralheizung, Personenaufzug, Tiefgarage
Internet und TV
Information zur Internet und TV Versorgung hier
Ihre persönliche Beratung
Ing. Michael Resch
Mittelsmann Philipp Sulek GmbH
mr@sulek-immobilien.at
+43 699 122 93 262
