| 4 ZIMMER | GROSSER GARTEN | ST. VEIT GASSE 25 | ERSTBEZUG IN HIETZING | MIETBEGINN PER 01. DEZEMBER 2025

Wohnung - Erdgeschoß, 1130 Wien , Sankt Veit-Gasse

Beschreibung der Immobilie

ST. VEIT GASSE 25

Lage:

Die Wohnhausanlage befindet sich in der begehrten St. Veit-Gasse im 13. Wiener Gemeindebezirk Hietzing – einer der grünsten und ruhigsten Lagen Wiens. Die Umgebung zeichnet sich durch ihre hohe Lebensqualität und die Nähe zu zahlreichen Naherholungsgebieten aus.​

Öffentliche Verkehrsanbindung:

  • U-Bahn U4: Die U4-Station Unter St. Veit ist in etwa 7 Gehminuten erreichbar und bietet eine direkte Verbindung ins Stadtzentrum.

  • Buslinien 53A: In unmittelbarer Nähe verkehren mehrere Buslinien, die eine schnelle Anbindung an umliegende Bezirke und Verkehrsknotenpunkte gewährleisten.​

  • Straßenbahn: Die Straßenbahnlinie 10 und 60 ist ebenfalls gut erreichbar und ergänzt das öffentliche Verkehrsangebot optimal.​

Individualverkehr:

  • Autobahnanschluss: Die A1 Westautobahn ist in ca. 10 Minuten mit dem Auto erreichbar und ermöglicht eine zügige Anbindung an das überregionale Straßennetz.​

Einkaufsmöglichkeiten, Bildungseinrichtungen in Form von Kindergärten, Schulen und höheren Bildungseinrichtungen sowie Ärzte, Apotheken und Krankenhäuser sind in der Umgebung vorhanden und gut erreichbar.

Objekt:

Ein neues Projekt für den Westen Wiens! In der idyllischen St. Veit Gasse im 13. Bezirk entsteht eine moderne, familienfreundliche Wohnhausanlage mit 164 Wohnungen.

Das Projekt St. Veit Gasse 25 vereint naturnahes Wohnen mit urbanem Komfort – für alle, die eine ruhige Lage schätzen und dennoch nicht auf die Vorteile der Stadt verzichten möchten.

Verteilt auf drei Stiegen entstehen 1- bis 4-Zimmer-Wohnungen mit privaten Gärten, großzügigen Balkonen und sonnigen Dachterrassen. Umgeben von Grünflächen und Naherholungsgebieten bietet "St. Veit-Gasse" eine ausgeglichene Balance zwischen Naturverbundenheit und städtischer Lebensqualität.

Eine hauseigene Tiefgarage, durchdachte Grundrisse sowie Gemeinschaftsflächen für Jung und Alt runden das ganzheitliche Wohnerlebnis ab.

Die Fertigstellung ist im Herbst 2025 geplant - Mietbeginne per 01.12.2025 somit möglich.

Ausstattung: 

  • Fußbodenheizung mittels Fernwärme oder alternativen Heizsystemen (Wärmepumpe/Bauteilaktivierung) beheizt
  • Personenaufzug in allen Stiegen
  • Hauseigene Tiefgarage mit zusätzlichen E-Stellplätzen + Ladestationen (Einfahrtshöhe 2,10m)
  • Einlagerungsräume, Kinderwagen- und Fahrradabstellraum sowie eine Waschküche mit Trockenraum
  • Außenliegender Sonnenschutz in Form von Rollladen auf allen Fenstern (auch Dachflächenfenster)
  • Photovoltaikanlage am Dach
  • Kabelanschluss an vorhandenes TV-Netz
  • Automatische Belüftung und Abluft in Badezimmer und WC
  • Eichen-Parkett in Wohnräumen und Fliesen in Nassräumen
  • Sicherheitswohnungseingangstüren (Widerstandsklasse WK3/RC3)
  • Einbauküchen mit Markengeräten 

Besichtigungen

Gerne laden wir zu einer Besichtigung der Musterwohnung auf der Baustelle ein. Wir bitten Sie, baustellengerechtes Schuhwerk zu tragen. Des weiteren werden aus Sicherheitsgründen keine Kinder oder Haustiere mit auf die Baustelle genommen. 

Zur Anmietung wird das 2,5-fache der Miete als Nettoeinkommen vorausgesetzt. AMS-Gelder, Sozialhilfen und sonstige soziale Leistungen dürfen nicht angerechnet werden.

Bei den veröffentlichten Renderings handelt es sich um Beispiele und Musterbilder!

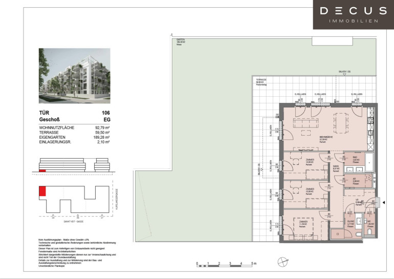
Top 106 befindet sich im Erdgeschoß, ist südlich ausgerichtet und teilt sich wie folgt auf:

  • Vorraum
  • WC mit Handwaschbecken
  • Bad mit Badewanne
  • Bad mit Dusche mit WC
  • Abstellraum mit Waschmaschinenanschluss
  • Zimmer 1
  • Zimmer 2
  • Zimmer 3
  • Wohnküche mit Essbereich
  • Terrasse und Garten

Besichtigungen sind aktuell ausschließlich in der Musterwohnung möglich - die Anmietung erfolgt vom Plan weg.

Hinweis gemäß Energieausweisvorlagegesetz: Ein Energieausweis wurde vom Eigentümer bzw. Verkäufer, nach unserer Aufklärung über die generell geltende Vorlagepflicht, sowie Aufforderung zu seiner Erstellung noch nicht vorgelegt. Daher gilt zumindest eine dem Alter und der Art des Gebäudes entsprechende Gesamtenergieeffizienz als vereinbart. Wir übernehmen keinerlei Gewähr oder Haftung für die tatsächliche Energieeffizienz der angebotenen Immobilie.

Wir weisen darauf hin, dass zwischen dem Vermittler und dem zu vermittelnden Dritten ein familiäres oder wirtschaftliches Naheverhältnis besteht.

Der Immobilienmakler erklärt, dass er – entgegen dem in der Immobilienwirtschaft üblichen Geschäftsgebrauch des Doppelmaklers – einseitig nur für den Vermieter tätig ist.

DECUS Immobilien GmbH – Wir beleben Räume

Für weitere Informationen und Besichtigungen steht Ihnen gerne Frau  Jasmin Heida unter der Mobilnummer +43 660 850 78 07und per E-Mail unter heida@decus.at persönlich zur Verfügung.

www.decus.at | office@decus.at 

Wichtige Informationen

Bitte beachten Sie, dass per 13.06.2014 eine neue Richtlinie für Fernabsatz- und Auswärtsgeschäfte in Kraft getreten ist.

Ab 1.4.2024 entfallen die Grundbuchs- und Pfandrechtseintragungsgebühren vorübergehend für Eigenheime bis zu einer Bemessungsgrundlage von EUR 500.000,-. Voraussetzung ist das dringende Wohnbedürfnis, ausgenommen davon sind vererbte oder geschenkte Immobilien. Die Befreiung ist jedoch für den Einzelfall zu prüfen, DECUS Immobilien übernimmt hierzu keine Haftung.

Ab 01.07.2023 gilt das Erstauftraggeber-Prinzip bei Wohnungsmietverträgen, ausgenommen davon sind Dienst-/Natural-/Werkswohnungen. Wir dürfen gem. § 17 Maklergesetz darauf hinweisen, dass wir auf die Doppelmaklertätigkeit gem. § 5 Maklergesetz bei Wohnungsmietverträgen verzichten und nur noch einseitig tätig sind (bei den restlichen Vermittlungsarten nicht) und ein wirtschaftliches Naheverhältnis zu unseren Auftraggebern besteht. 

Im Falle eines Abschlusses mit Ihnen oder einem von Ihnen namhaft gemachten Dritten bzw. bei beidseitiger Willensübereinstimmung beträgt unser Honorar (lt. Honorarverordnung für Immobilienmakler) 2 Bruttomonatsmieten (BMM) bei Dienst-/Natural-/Werkwohnungen sowie Suchaufträgen, 3 BMM bei Gewerbe-, PKW-, Keller- und Lagermietverträgen sowie bei Kaufobjekten 3 % des Kaufpreises, zuzüglich der gesetzlichen Umsatzsteuer.

Dieses Objekt wird Ihnen unverbindlich und freibleibend angeboten. Oben angeführte Angaben basieren auf Informationen und Unterlagen des Eigentümers und sind unsererseits ohne Gewähr.

Nähere Informationen sowie unsere AGBs und die Nebenkostenübersichtsblatt finden Sie auf unserer Homepage www.decus.at unter "Service" - "Rechtliches zum FAGG" sowie im Anhang der zugesendeten Objekt-Exposés!

Infrastruktur / Entfernungen

Gesundheit
Arzt <250m
Apotheke <250m
Klinik <1.250m
Krankenhaus <1.750m

Kinder & Schulen
Schule <500m
Kindergarten <250m
Universität <1.500m
Höhere Schule <3.500m

Nahversorgung
Supermarkt <250m
Bäckerei <250m
Einkaufszentrum <3.000m

Sonstige
Geldautomat <250m
Bank <250m
Post <250m
Polizei <750m

Verkehr
Bus <250m
U-Bahn <750m
Straßenbahn <250m
Bahnhof <750m
Autobahnanschluss <4.250m

Angaben Entfernung Luftlinie / Quelle: OpenStreetMap

Eckdaten

Objektnr: 1151666
Art: Wohnung - Erdgeschoß
Land: Österreich
Zustand: Erstbezug
Gesamtmiete: 2.499,00
Kaltmiete (netto): 2.104,80 €
Kaltmiete: 2.271,82 €
Provision: Gemäß Erstauftraggeberprinzip bezahlt der Abgeber die Provision.
Betriebskosten: 167,02 €
MwSt Gesamt: 227,18 €
Wohnfläche: 92,79 m²
Zimmer: 4
Bäder: 1
WC: 1
Terrassen: 1
Garten: 189,28 m²
Keller: 2,10 m²
Immobilie merken Exposé

Ausstattung

Parkett, Fliesen, Fußbodenheizung, Einbauküche, Wohnküche / offene Küche, Personenaufzug, Kabel/Satelliten-TV, Tiefgarage, Wasch/Trockenraum


Internet und TV

Information zur Internet und TV Versorgung hier


Immobilie anfragen


Ihre persönliche Beratung

DECUS Immobilien GmbH

Jasmin Heida

DECUS Immobilien GmbH

E heida@decus.at

T +43 660 850 78 07

H +43 660 850 78 07

F +43 1 35 600 10