Traumhafte Wohnungen beim Neusiedler See PROVISIONSFREI+ FRÜHJAHRSAKTION!!!
Wohnung
- Erdgeschoß,
7141
Podersdorf am See
Lage der Immobilie
Die Pannonia Seeblick Appartements in 7141 Podersdorf am See bestechen durch ihre zentrale Lage im malerischen Burgenland. Nur ein paar Meter entfernt befinden Sie sich direkt am See und zugleich im Urlaubstraum. Sowohl Cafés, Gasthäuser oder Heurigen aber auch praktische Dienstleistungen sind ebenfalls in der Nähe. Hier genießen Sie eine perfekte Mischung aus Ruhe und Lebensqualität!Beschreibung der Immobilie
AKTION: Bei einem Kauf bis 31.12 ist die Klimaanlage im Preis inkludiert!!!
Entdecken Sie das fantastische Projekt in Podersdorf!
Podersdorf am See, ein malerischer Ort am Neusiedler See, bietet nicht nur eine atemberaubende Landschaft, sondern auch zahlreiche Vorteile für zukünftige Bewohner und Investoren. Das aktuelle Projekt in dieser charmanten Gemeinde vereint moderne Wohnkultur mit der idyllischen Natur dieser Region.
- Wunderschöne Lage: Podersdorf besticht durch seine Lage am Neusiedler See, der nicht nur für sein angenehmes Klima bekannt ist, sondern auch zahlreiche Freizeitmöglichkeiten bietet, wie Schwimmen, Segeln Kite- Surfen und Radfahren.
- Exklusives Swimmingpool:
Ein privater Swimmingpool lässt sie die warmen Sommertage in Ruhe genießen. - Private Garage: Jeder Einheit ist ein Garagenplatz zugeordnet für € 22.000.
- Hohe Lebensqualität: Die Gemeinde bietet eine hohe Lebensqualität mit einer perfekten Mischung aus Natur und urbanem Leben. Die ruhige Umgebung und die freundliche Nachbarschaft machen Podersdorf zu einem idealen Wohnort.
- Tourismus und Veranstaltungen: Podersdorf zieht das ganze Jahr über Touristen an. Mit über 400.000 Nächtigungen pro Jahr ist dieser der stärkste Ort in der Region und ein wahrlicher Touristenmagnet. Tendenz übrigens steigend! Die Saison beginnt schon im März und zieht sich das restliche Jahr. Egal ob das traditionelle Seefest, das Kite-Event und zahlreiche Veranstaltungen sorgen für ein lebhaftes Treiben. Im Herbst glänzt der Ort durch das Martiniloben oder diverse Weinverkostungen. Aber auch im Winter kommt man nicht zu kurz beim schönen Weihnachtsmarkt oder einer Runde Eislaufen am Neusiedler See. Zudem verzeichnet die Region hohe Nächtigungszahlen, was die Anziehungskraft und Beliebtheit des Ortes unterstreicht.
- Sportevents: Die Gemeinde ist bekannt für ihre zahlreichen Sportveranstaltungen, darunter Windsurf- und Kitesurf-Wettkämpfe sowie Triathlons, die Sportler aus der ganzen Welt anziehen. Diese Events fördern nicht nur den Sport, sondern auch die Gemeinschaft und das Miteinander.
- Investitionsmöglichkeiten: Die Entwicklung der Region und das aktuelle Bauprojekt versprechen eine wertsteigernde Investition. Immer mehr Menschen entdecken die Vorzüge dieses charmanten Ortes. Das besondere bei diesem Projekt ist, dass man jede Wohnung als Anleger erwerben kann und es vor Ort einen Betreiber für Kurzzeitvermietung gibt. Dieser muss nur durch eine sogenannte Managementfee bezahlt werden und Sie müssen sich um nichts mehr kümmern. Aber auch in diesem Fall können und dürfen Sie ihre Wohnung nach eigenen Wünschen benützen.
- Nachhaltigkeit: In der Planung des Projekts wird großer Wert auf nachhaltige Bauweisen und umweltfreundliche Materialien gelegt, um den ökologischen Fußabdruck zu minimieren.
- Urlaubsgefühle und trotzdem in kurzer Zeit in der Großstadt: Egal ob ein Besuch beim Heurigen, eine Runde schwimmen im Neusiedler See oder ein Ausflug mit dem Rad. Hier bleibt kein Wunsch offen um sich richtig zu entspannen. Trotzdem sind Sie aufgrund der Nähe zur Autobahn in kürzester Zeit am Flughafen oder in Wien und können hier das Großstadtfeeling aufsaugen.
Podersdorf am See ist der perfekte Ort, um Ihr neues Zuhause zu finden oder eine wertvolle Investition zu tätigen. Lassen Sie sich von der Schönheit, der lebendigen Tourismus- und Veranstaltungslandschaft sowie den Vorteilen dieser einzigartigen Gemeinde verzaubern!
Wir weisen darauf hin, dass zwischen dem Vermittler und dem zu vermittelnden Dritten ein familiäres oder wirtschaftliches Naheverhältnis besteht.
Der Vermittler ist als Doppelmakler tätig.
Infrastruktur / Entfernungen
Gesundheit
Arzt <500m
Apotheke <7.000m
Klinik <7.000m
Krankenhaus <7.000m
Kinder & Schulen
Schule <1.000m
Kindergarten <8.000m
Nahversorgung
Supermarkt <1.000m
Bäckerei <1.000m
Sonstige
Geldautomat <500m
Bank <500m
Post <1.000m
Polizei <7.500m
Verkehr
Bus <500m
Bahnhof <6.500m
Angaben Entfernung Luftlinie / Quelle: OpenStreetMap
Eckdaten
| Kaufpreis: | 345.000,00 € |
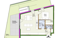
| Fläche: | 58,25 m² |
| Zimmer: | 2 |
Basisdaten zur Immobilie
| Objektnr: | 206 |
| Art: | Wohnung - Erdgeschoß |
| Land: | Österreich |
| Baujahr: | 2025 |
| Zustand: | Erstbezug |
| Alter: | Neubau |
| Kaufpreis: | 345.000,00 € |
| Betriebskosten: | 169,00 € |
| MwSt Gesamt: | 16,90 € |
| Wohnfläche: | 58,25 m² |
| Zimmer: | 2 |
| Bäder: | 1 |
| WC: | 1 |
| Terrassen: | 1 |
| Garten: | 40,31 m² |
| Heizwärmebedarf: | B 32,00 kWh/m²a |
| fGEE: | A 0,75 |
Ausstattung
Parkett, Fußbodenheizung, Personenaufzug, Dusche, Garage, Swimmingpool
Internet und TV
Information zur Internet und TV Versorgung hier
Ihre persönliche Beratung
Daniel Madile- Daschütz
Madile Wohnbau GmbH
office@madile.at
069917556634
