Ideal für Familien: Moderne Erstbezugswohnung mit Freifläche

Wohnung , 1140 Wien , Breitenseer Straße

Beschreibung der Immobilie

Das Erstbezugsprojekt in der Breitenseer Straße 28 überzeugt durch seine ausgewogene Kombination aus urbaner Lage und angenehmem Wohnkomfort. Inmitten des 14. Bezirks gelegen, profitieren zukünftige Bewohner von einer hervorragenden Nahversorgung: Supermärkte, Bäckereien, Cafés, Apotheken sowie diverse Geschäfte des täglichen Bedarfs befinden sich nur wenige Schritte entfernt. Gleichzeitig lädt die grüne Umgebung mit nahegelegenen Parks zu entspannenden Spaziergängen, sportlichen Aktivitäten und erholsamen Stunden im Freien ein. Die öffentliche Verkehrsanbindung ist ausgezeichnet – die U-Bahnlinie U3, die Straßenbahnlinien 10 und 49 sowie die S-Bahn S45 sorgen für eine rasche Erreichbarkeit der Innenstadt und anderer Stadtteile. Das Neubauprojekt mit 19 modernen Wohnungen verbindet somit ideale Infrastruktur mit einem ruhigen, naturnahen Wohnambiente.
 

Das Haus präsentiert sich als moderne Wohnanlage mit insgesamt 19 hochwertig ausgestatteten Wohnungen, die zeitgemäßen Wohnkomfort mit durchdachter Funktionalität verbindet. Für zusätzlichen Komfort sorgen Einlagerungsräume im Kellergeschoss für jede Wohnung, ein Fahrradraum, Fahrradstellplätze im Innenhof sowie ein Kleinkinderspielplatz für die jüngsten Bewohner. Die Kombination aus Luftwärmepumpe und Photovoltaikanlage sorgt für eine nachhaltige Energieversorgung, während die Wärme gleichmäßig über die Fußbodenheizung abgegeben wird. Ein außenliegender Sonnenschutz und die Fußbodenkühlung sorgen für ein angenehmes Wohnklima; in den Dach- und Erdgeschosswohnungen ergänzt eine Klimaanlage den Komfort. – ideal für warme Sommertage. Das Projekt vereint moderne Technik, nachhaltige Energieeffizienz und hochwertige Ausstattung zu einem stimmigen, zukunftsorientierten Wohnkonzept.
 

Ausstattung:

  • Fußbodenheizung & Fußbodenkühlung mittels Luftwärmepumpe
  • Klimaanlage in den Wohnungen im Erdgeschoss & in den Dachgeschossen
  • Eichenparkettboden
  • Italienisches Feinsteinzeug von Marazzi
  • Holz-Alu-Fenster mit außenliegendem Sonnenschutz
  • Kinderwagen/ Fahrradabstellraum
     

Öffentliche Verkehrsanbindung:

  • U3-Station „Hütteldorfer Straße
  • Straßenbahnlinien 10 und 49
  • S-Bahn-Station „Breitensee“


Beziehbar ab: 01.07.2026
Befristung: 5 Jahre, 1 Jahr Kündigungsverzicht, 3 Monate Kündigungsverzicht
Nebenkosten: 3 BMM Kaution, Vertragserrichtungsgebühr

Wir weisen darauf hin, dass zwischen dem Vermittler und dem zu vermittelnden Dritten ein familiäres oder wirtschaftliches Naheverhältnis besteht.

Der Immobilienmakler erklärt, dass er – entgegen dem in der Immobilienwirtschaft üblichen Geschäftsgebrauch des Doppelmaklers – einseitig nur für den Vermieter tätig ist.

Infrastruktur / Entfernungen

Gesundheit
Arzt <250m
Apotheke <250m
Klinik <1.250m
Krankenhaus <1.500m

Kinder & Schulen
Schule <250m
Kindergarten <250m
Universität <750m
Höhere Schule <1.000m

Nahversorgung
Supermarkt <250m
Bäckerei <250m
Einkaufszentrum <750m

Sonstige
Geldautomat <250m
Bank <250m
Post <250m
Polizei <750m

Verkehr
Bus <250m
U-Bahn <250m
Straßenbahn <250m
Bahnhof <250m
Autobahnanschluss <5.000m

Angaben Entfernung Luftlinie / Quelle: OpenStreetMap

Eckdaten

Objektnr: 91014
Art: Wohnung
Land: Österreich
Baujahr: 2026
Zustand: Erstbezug
Alter: Neubau
Gesamtmiete: 1.489,00
Kaltmiete (netto): 1.207,03 €
Kaltmiete: 1.353,64 €
Provision: Gemäß Erstauftraggeberprinzip bezahlt der Abgeber die Provision.
Betriebskosten: 146,61 €
MwSt Gesamt: 135,36 €
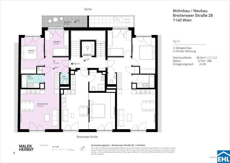
Wohnfläche: 66,34 m²
Zimmer: 3
Bäder: 1
WC: 1
Balkone: 1
Immobilie merken Exposé

Ausstattung

Parkett, Fliesen, Fußbodenheizung, Einbauküche, Wohnküche / offene Küche, Personenaufzug, Dusche


Internet und TV

Information zur Internet und TV Versorgung hier


Immobilie anfragen


Ihre persönliche Beratung

EHL Wohnen GmbH

Leo Idinger

EHL Immobilien GmbH

E l.idinger@ehl.at

T +43-1-512 76 90-407

H +43 664 78015352